LOOSDRECHT
Nieuw-loosdrechtsedijk 60 - 1231 KZ
Nederland

 profile image

 
€895.000 k.k.
Woonoppervlakte
138m2
Perceeloppervlakte
559m2
Slaapkamers
5

Omschrijving

Vrijstaand en karakteristiek wonen in een rustige, groene omgeving, terwijl alle voorzieningen van Nieuw-Loosdrecht op zicht op steenworp afstand bevinden!
De woning is gelegen op een riant en zonnig perceel met plek voor het parkeren van meerdere auto's en heeft 5 (slaap)kamers waarvan 2 zich bevinden op de begane grond.

Op korte afstand bevinden zich diverse basisscholen, sportvelden en het winkelcentrum van Nieuw-Loosdrecht met o.a. een Jumbo, Hema en Kruidvat. Binnen een paar minuten fietst/wandelt u naar het fraaie Landgoed Zonnestraal, de Hoorneboegse heide en bossen. Daarnaast bieden ook de Loosdrechtse Plassen en het omliggende natuurschoon u uitgebreide mogelijkheden om te sporten en recreëren. Voor meer stadse faciliteiten zoals winkels, (internationale) scholen en een NS station kunt u terecht in Hilversum welke zich op nog geen 10 autominuten van de woning bevinden. Grote steden als Utrecht en Amsterdam zijn binnen ca. 30 autominuten bereikbaar.

Indeling
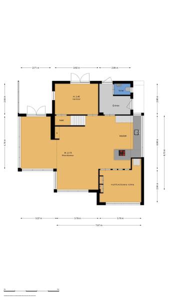
Begane grond: Bij binnenkomst word je verwelkomd in een ruime hal met garderobe en een toilet met fontein. De royale woonkamer, voorzien van een sfeervolle houtkachel, sluit aan op een lichte open keuken. De gezellige zitkamer heeft openslaande deuren naar een terras, terwijl de aparte werkkamer eveneens via openslaande deuren toegang biedt tot de tuin. Aan de voorzijde van de woning bevindt zich een aparte werk- of televisiekamer.

Eerste verdieping: Via een fraaie bordestrap bereik je de overloop. Aan de voorzijde bevinden zich twee slaapkamers met twee dakkapellen en een vaste kast. De slaapkamer aan de achterzijde is eveneens ruim en beschikt over een dakkapel en vaste kastruimte. De moderne badkamer is voorzien van een ligbad, een aparte douche en een wastafel. Een apart toilet completeert deze verdieping.

Tweede verdieping: de vliering is voorzien van dakramen en een nette laminaat vloer. Ideaal voor opslag. Tuin en schuur: De rondom gelegen tuin biedt volop privacy en beschikt over diverse terrassen, overkapping, een oprit en een ruime schuur van 14 m². men en een nette laminaat vloer. Ideaal voor opslag.

Tuin en schuur: De rondom gelegen tuin biedt volop privacy en beschikt over diverse terrassen, overkapping, een oprit en een ruime schuur van 14 m².

Bijzonderheden:
- Vrijstaand, goed onderhouden woonhuis in een landelijke omgeving;
- Compleet gerenoveerd (met nieuwe keuken);
- Zonnig perceel met veel privacy;
- Licht en sfeervol dankzij de vele raampartijen;
- Energielabel D geldig t/m 4 december 2034 ;
- Volledig voorzien van dubbel glas;
- Geïsoleerd pannendak, vernieuwd tijdens de renovatie;
- Voorzien van 2 airco's;
- Bouwjaar: 1930; - Inhoud: 514 m³;
- Woonoppervlakte 138 m² NEN gemeten;
- Perceeloppervlakte: 559 m²;
- Oplevering in overleg.

Kortom, een uniek, stijlvol en ruim woonhuis waar je kunt genieten van rust, ruimte en een prachtige omgeving!

Kenmerken

Zonnepanelen
Air conditioning
Overdracht
Vraagprijs
€ 895.000 k.k.
Status
verkocht onder voorbehoud
Aanvaarding
in overleg
Bouw
Soort woonhuis
Villa
Soort bouw
vrijstaande woning
Bouwjaar
1930
Energieklasse
D
Soort dak
samengesteld dak
Slaapkamers
5
Badkamers
1
Oppervlakten en inhoud
Woonoppervlakte
138 m2
Overige inpandige ruimte
5 m2
Externe bergruimte
14 m2
Inhoud
527 m3
Perceeloppervlakte
559 m2
faciliteiten
Mechanische ventilatie
Airconditioning
Rookkanaal
Dakraam
Glasvezel kabel
Zonnepanelen
Natuurlijke ventilatie
Baerz & Co Property Brochure

Brochure

Video’s

Plattegronden

Informatie / bezichtigingsaanvraag

 profile image

Een luxe woning kopen in Loosdrecht

Loosdrecht biedt een zeldzaam samenspel van rust aan het water, een hechte gemeenschap en verfijnde voorzieningen. Een ideale plek voor wie internationale connecties zoekt, onopvallende service waardeert en een stijlvol, natuurinspirerend leven nastreeft.