VEENENDAAL
Zandstraat 35 - 3901 CJ
Нидерланды

Wistik Zonnenberg profile image
Wistik Zonnenberg
Register Makelaar Taxateur/ Eigenaar
€894,500 k.k.
Жилая площадь
180m2
Размер участка
340m2
Спальни
4

Описание

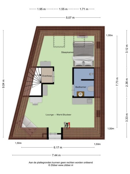
Отдельно стоящий дом в Вейнедаале приглашает вас по адресу, где история гармонирует с комфортом. Основанный в 1908 году, этот памятник архитектуры площадью 180 м² расположен тихо на улице Zandstraat на границе центра города. С первых мгновений дом впечатляет присутствием и теплотой. Оригинальные детали — декоративные карнизы, индивидуально изготовленные шкафы, массивный дубовый паркет елочкой и высокие, гостеприимные потолки — органично сочетаются с актуальной отделкой. Планировка включает шесть помещений: четыре спальни и две элегантных ванные комнаты, где равновесие приватности и пространства для общения ощущается в каждом решении.

Первый этаж начинается с просторного холла, который ведет в гостиную и столовую с каминами в стиле эпохи, высоким проемам с оригинальными ставнями, обилием солнечного света и современной техникой — от встроенной бытовой техники до гармоничного расширения пространства. Классическая и функциональная кухня ориентирована на сад и выходит на широкую, солнечную южную террасу, где царит тишина среди лип на шпалерах и орехового дерева. Несколько зон отдыха приглашают на долгие вечера и минуты уединения; двойные задние ворота и парковка на участке придают объекту редкое для города удобство.

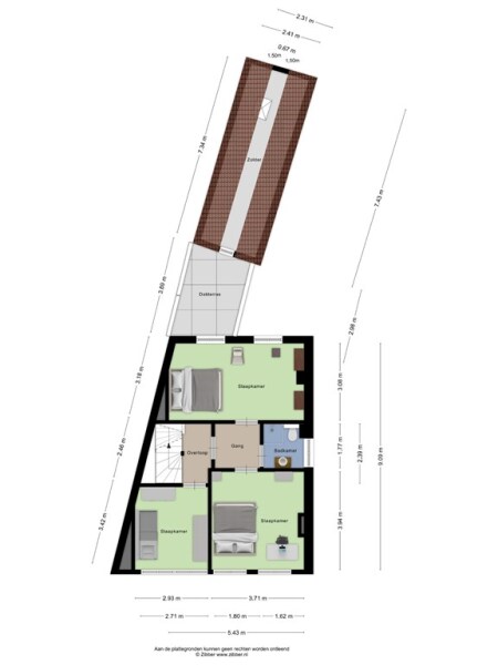
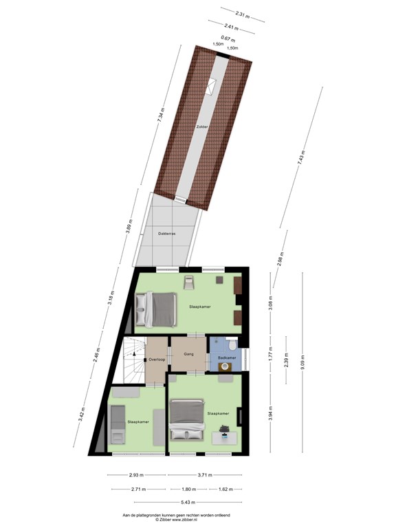
На верхних этажах спальни наполнены светом и продуманно расположены. Прекрасные бонусы — терраса на крыше и просторная мансарда с отдельной мини-кухней и ванной. Массив дуба и натуральная плитка подчеркивают открытые балки, а современные инженерные решения — высокоэффективное центральное отопление и оптоволоконный интернет — незаметно сочетаются с историческим шармом. На участке 340 м² предусмотрена парковка минимум на две машины; все городские удобства, кафе, школы и зеленые просторы национального парка Utrechtse Heuvelrug — в непосредственной близости.

Тем, кто ищет элитный таунхаус на продажу в Вейнедаале, представленное предложение — это редкое сочетание вневременной архитектуры и актуального комфорта в самом сердце Нидерландов.

Исследуйте Veenendaal с Baerz, вашим надежным личным консультантом по недвижимости

Взыскательные покупатели получают выгоду от персонализированного сопровождения экспертов, которые обеспечивают доступ к закрытым предложениям и тонкое ведение сделок под индивидуальные задачи. Глубокое знание рынка, умение вести переговоры и опыт позволяют минимизировать риски и максимально эффективно реализовывать цели клиента.

Избегайте распространенных ошибок

Международные покупатели часто тратят драгоценное время на дублирующиеся, устаревшие или вводящие в заблуждение онлайн-объявления, особенно учитывая, что почти 30% роскошных домов никогда не появляются на открытом рынке. Агенты продавца представляют интересы продавца, а не покупателя. Даже запрос информации о недвижимости может привести к тому, что агент продавца зарегистрирует вас как своего «клиента» без вашего согласия.
С Baerz Property Finders & Advisors вы полностью избегаете всех этих ошибок. Мы работаем исключительно в ваших интересах, предлагая независимое представительство, четкое руководство и доступ ко всем доступным объектам, включая возможности вне рынка, которые другие никогда не увидят.

Интересует Личный Консультант по Недвижимости?

Мы показываем вам все доступные дома в одном месте. Не стесняйтесь связаться с нами, чтобы узнать, как мы можем удовлетворить ваши потребности и защитить ваши интересы исключительно.

Особенности

Передача права собственности
Запрашиваемая цена
€ 894.500 k.k.
Статус
Available
Принятие
In Concert
Справка
08144
Строительство
Тип дома
Mansion
Тип здания
Detached House
Период строительства
1908
Тип крыши
composite
Спальни
4
Ванные комнаты
2
Площадь и объем
Жилая площадь
180 m2
Другое внутреннее пространство
5 m2
Внешнее пространство, прилегающее к зданию
10 m2
Внешнее складское пространство
5 m2
Объем в кубических метрах
654 m3
Размер участка
340 m2
Удобства
Cable Tv
Fluetube
Fibreopticcable
Not Furnished
Garden
Internetconnection
Phoneline
Skylight
Storageroom
Not Upholstered
Ventilation
Baerz & Co Property Brochure

Брошюра

Видео

Планы этажей

Zonnenberg Makelaardij

Kerkewijk 108
3904 JG Veenendaal

info@zonnenbergmakelaardij.nl
+31 318 559600

www.zonnenbergmakelaardij.nl

Запрос информации / просмотра

Wistik Zonnenberg profile image
Wistik Zonnenberg
Register Makelaar Taxateur/ Eigenaar