HARLINGEN
Franekereind 15 - 8861 AA
Нидерланды

Ellen Schoneveld profile image
Ellen Schoneveld
Real Estate Agent
€775,000 k.k.
Жилая площадь
469m2
Размер участка
210m2
Спальни
5

Описание

Этот каналный дом в Харлингене, являющийся национальным памятником архитектуры, служит редким напоминанием о морской истории города и его архитектурном наследии. Расположенный на одном из старейших каналов Харлингена, особняк «Het Tempelhuys» занимает центральное место среди богатых фасадов Franekereind и предлагает примерно 469 м² жилого пространства, распределенного по нескольким уровням. Пять спален и продуманная конфигурация помещений делают этот дом идеальным как для частной резиденции, так и для мастерской, галереи, кабинета или бутик-гостиницы типа B&B.

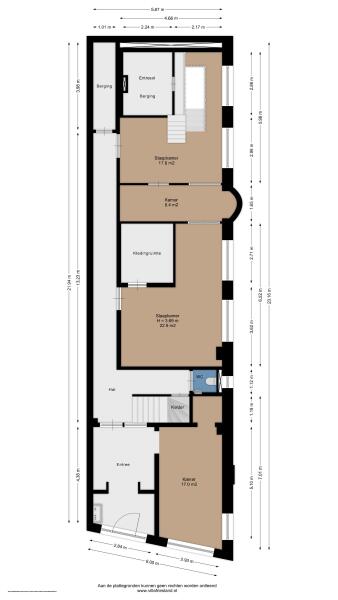
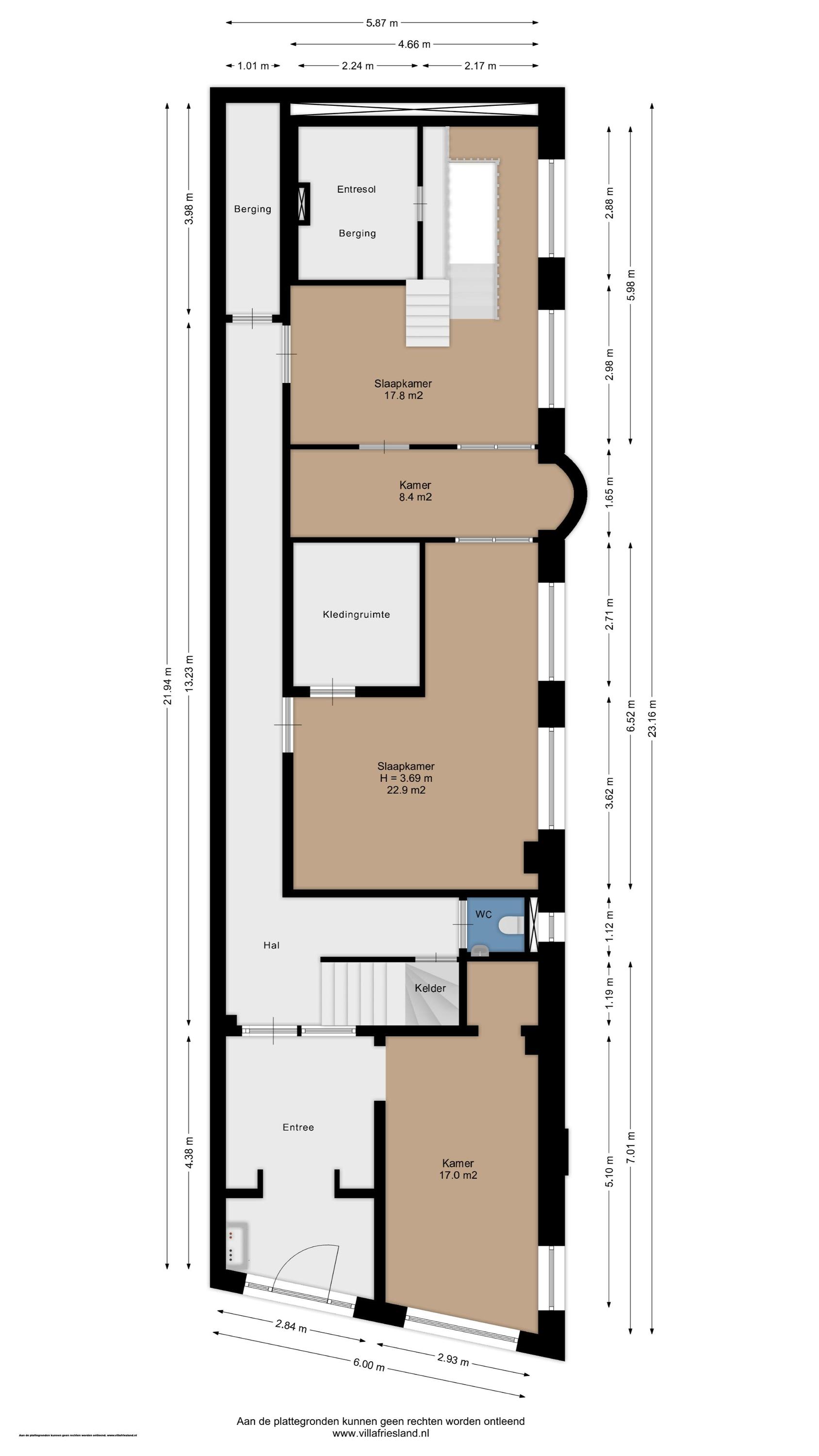
При входе внимание привлекает мраморный пол и просторный вестибюль, ведущий в три главные комнаты: галерея с видом на канал, уютная спальня с гардеробной и заднее помещение с мезонином и прямым доступом в историческую часовню. На первом этаже находится просторная кухня-гостиная с видом на воду, а примыкающий зал с арочным потолком отличается впечатляющей высотой и обилием дневного света—это универсальное помещение для встреч или экспозиций. На втором этаже расположены студия, техническое помещение и вместительная кладовая, все освещены большими окнами и естественной вентиляцией. Выше находится колоритный чердак площадью 106 м² с открытыми оригинальными балками, что открывает возможности для организации лофта, а также дополнительный чердак под коньком крыши. Подвал площадью 20 м² завершает функциональное наполнение. Объект оборудован вертикальной системой вентиляции, мансардными окнами, дымоходом и современной теплоизоляцией. Отопление осуществляется центральной системой с возможностью установки открытого камина.

Жизнь на Franekereind сочетает историческую глубину с повседневной энергией—все услуги в шаговой доступности, парковка прямо у входа. До Амстердама всего один час пути, однако Харлинген сохраняет свое уединенное очарование, определяемое более чем шестью веками морских традиций, гостеприимными ресторанами и удобным доступом к Северному морю и островам Вадден. Тем, кто ищет резиденцию с историей и многоуровневым потенциалом, этот монументальный дом у канала в Харлингене предлагает уникальную возможность, созвучную ритму побережья.

Исследуйте Harlingen вместе с Baerz — вашим надежным советником и личным поисковиком недвижимости

Элитный сегмент управляется частными сделками, сложными правилами и тонкой средой охраны наследия. Опытные эксперты по недвижимости открывают доступ к внебиржевым объектам и сопровождают на всех этапах сделки, обеспечивая максимальную рыночную ценность в рамках голландских правовых и культурных особенностей.

Избегайте распространённых ошибок

Международные покупатели часто тратят ценное время на изучение дублирующихся, устаревших или вводящих в заблуждение онлайн-объявлений, особенно учитывая, что почти 30% объектов элитной недвижимости вообще не появляются на открытом рынке.
Агенты продавца представляют интересы продавца, а не ваши, и даже простой запрос о недвижимости может привести к тому, что агентство зарегистрирует вас как своего “клиента” без вашего согласия.
С Baerz Property Finders & Advisors вы полностью избегаете этих подводных камней.
Мы действуем исключительно в ваших интересах, предоставляя независимое представительство, прозрачные рекомендации и доступ ко всем доступным объектам, включая частные и вне-рыночные предложения, которых другие никогда не увидят.

Хотите узнать, как получить собственного персонального консультанта по недвижимости? Свяжитесь с нами, чтобы узнать, как мы можем представлять ваши интересы и открыть вам весь рынок.

Особенности

Передача права собственности
Запрашиваемая цена
€ 775.000 k.k.
Статус
beschikbaar
Принятие
in overleg
Строительство
Тип дома
Grachtenpand
Тип здания
halfvrijstaande woning
Период строительства
1651
Тип крыши
schilddak
Спальни
5
Ванные комнаты
0
Площадь и объем
Жилая площадь
469 m2
Другое внутреннее пространство
22 m2
Объем в кубических метрах
2041 m3
Размер участка
210 m2
Удобства
Rookkanaal
Dakraam
Natuurlijke ventilatie
Aan water
Aan rustige weg
In centrum
Baerz & Co Property Brochure

Брошюра

Видео

Планы этажей

Villa Friesland Makelaardij

Lange Marktstraat 1
8911 AD Leeuwarden

info@villafriesland.nl
+31 (0)58 - 23 006 23

www.villafriesland.nl

Информация / Запрос на просмотр

Ellen Schoneveld profile image
Ellen Schoneveld
Real Estate Agent