HAAREN
Nieuwe Erven 12 - 5076 NP
Нидерланды

Marleen de Bekker profile image
Marleen de Bekker
Real Estate Agent
€1,250,000 k.k.
Жилая площадь
184m2
Размер участка
918m2
Спальни
5

Описание

Этот семейный дом в Хаарене сочетает редкую приватность и просторное проживание на участке площадью 918 м² на окраине деревни. Жилая площадь дома составляет 184 м², все четыре спальни расположены на одном уровне, что идеально подходит для комфортного семейного быта. Продуманная планировка становится заметна уже в переходе из солнечной гостиной—с большими окнами и камином в центре—в современную открытую кухню с глянцевыми белыми фасадами, композитной столешницей, системой Quooker и двумя духовками. Просторная подсобка соединяет гараж и сад, значительно повышая повседневное удобство.

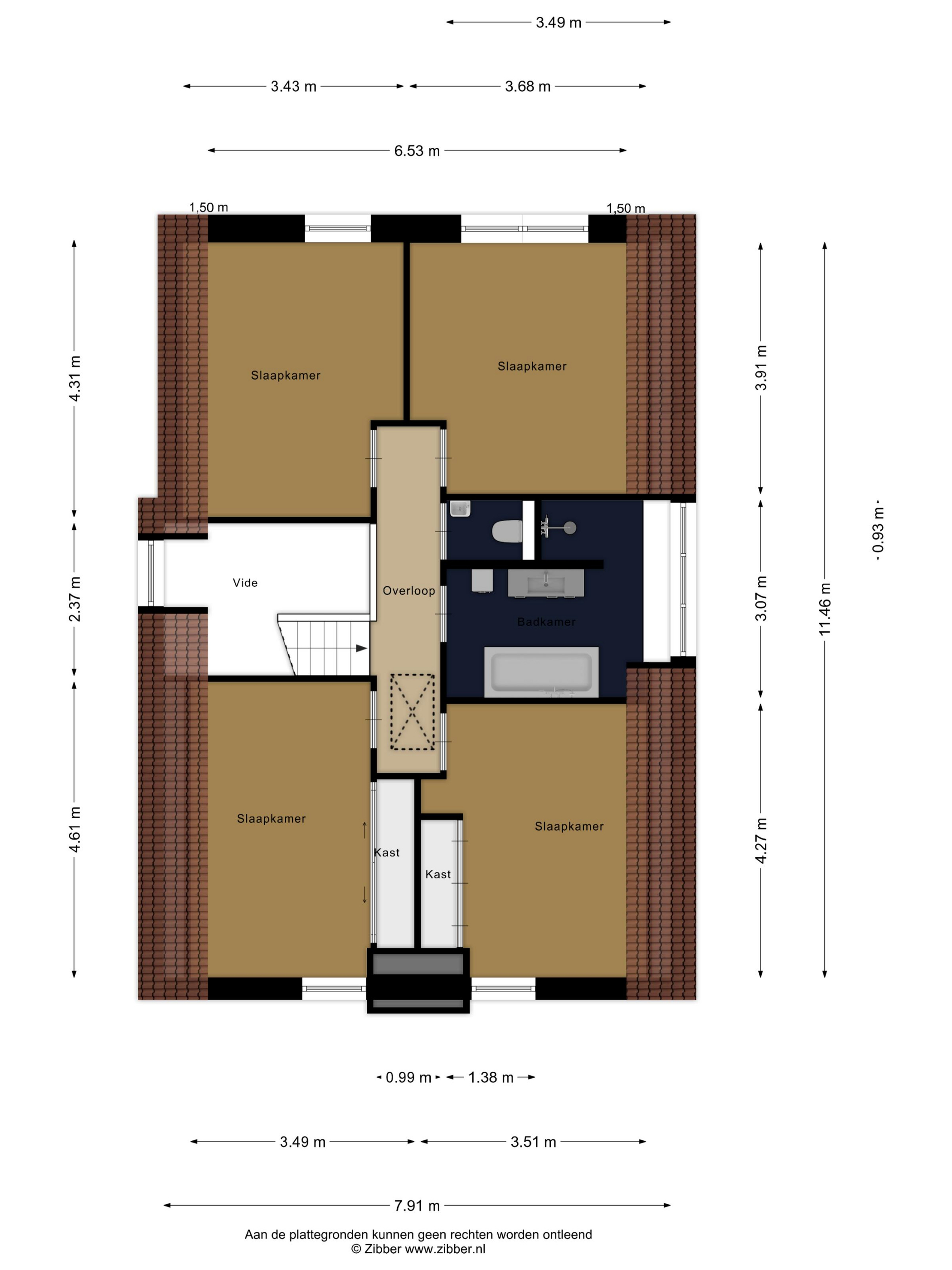
На верхнем этаже каждая спальня площадью около 15 м² становится уединённой зоной отдыха, а ванная комната оснащена душем с входом без порога, двойной раковиной, большой ванной, естественным освещением и тёплыми полами. Чердак вдоль всей длины дома позволяет хранить сезонные вещи без ограничений.

Внешнее пространство включает широкую солнечную террасу, крытое место с мансардой и отдельную сауну в уединении. Взрослые живые изгороди гарантируют приватность, а участок предоставляет достаточно места для игр и отдыха. Изолированный гараж 3,85 м на 6,30 м добавляет функциональности, а на подъездной дорожке можно разместить от четырёх до шести автомобилей. Восемнадцать солнечных панелей, полная теплоизоляция и класс энергоэффективности A+ обеспечивают долговременную экономичность.

Дом находится в тихом жилом районе Хаарена, рядом с кафе, ресторанами, велосипедными маршрутами, а также с обширным природным заповедником Кампина и национальным парком Лоонсе-эн-Дрюненсе-Дюйнен. Единство внутреннего и внешнего пространства, современные удобства и близость деревенской инфраструктуры делают эту недвижимость идеальным семейным убежищем в самом сердце Нидерландов.

Исследуйте Haaren с Baerz, вашим надежным личным консультантом по недвижимости

Изысканные клиенты ценят советников с глубоким знанием местного рынка, прочными связями с владельцами и опытами по международным сделкам. Многие лучшие объекты переходят из рук в руки приватно, необходимы специалисты, умеющие вести переговоры, проводить due diligence и предоставлять персонализированный сервис. Главная ценность консультанта — доступ к эксклюзивным предложениям и защита интересов клиента на всех этапах сделки.

Избегайте распространенных ошибок

Международные покупатели часто тратят драгоценное время на дублирующиеся, устаревшие или вводящие в заблуждение онлайн-объявления, особенно учитывая, что почти 30% роскошных домов никогда не появляются на открытом рынке. Агенты продавца представляют интересы продавца, а не покупателя. Даже запрос информации о недвижимости может привести к тому, что агент продавца зарегистрирует вас как своего «клиента» без вашего согласия.
С Baerz Property Finders & Advisors вы полностью избегаете всех этих ошибок. Мы работаем исключительно в ваших интересах, предлагая независимое представительство, четкое руководство и доступ ко всем доступным объектам, включая возможности вне рынка, которые другие никогда не увидят.

Интересует Личный Консультант по Недвижимости?

Мы показываем вам все доступные дома в одном месте. Не стесняйтесь связаться с нами, чтобы узнать, как мы можем удовлетворить ваши потребности и защитить ваши интересы исключительно.

Особенности

Солнечные панели
Передача права собственности
Запрашиваемая цена
€ 1.250.000 k.k.
Статус
onder bod
Принятие
in overleg
Строительство
Тип дома
Eengezinswoning
Тип здания
vrijstaande woning
Период строительства
2016
Энергетический рейтинг
A+
Тип крыши
zadeldak
Спальни
5
Ванные комнаты
1
Площадь и объем
Жилая площадь
184 m2
Другое внутреннее пространство
44 m2
Внешнее пространство, прилегающее к зданию
36 m2
Внешнее складское пространство
9 m2
Объем в кубических метрах
844 m3
Размер участка
918 m2
Удобства
Mechanische ventilatie
Tv kabel
Rookkanaal
Schuifpui
Sauna
Glasvezel kabel
Zonnepanelen
Aan rustige weg
In woonwijk
Baerz & Co Property Brochure

Брошюра

Видео

Планы этажей

Finesse Makelaardij

Groenstraat 31
5062 NA Oisterwijk

info@finesse-makelaardij.nl
+31 655757171

www.finesse-makelaardij.nl

Запрос информации / просмотра

Marleen de Bekker profile image
Marleen de Bekker
Real Estate Agent