BERGAMBACHT
Zuidbroek 145 - 2861 LL
Нидерланды

Xandra Bek profile image
Xandra Bek
Register makelaar - taxateur
€995,000 k.k.
Жилая площадь
156m2
Размер участка
3233m2
Спальни
5

Описание

Отдельно стоящий дом в Бергамбахте представляет собой редкое сочетание приватности и исторического наследия, расположенный в тихой сельской местности у самой окраины деревни. Этот дом, построенный в 1917 году и полностью отреставрированный с уважением к оригинальному стилю, предлагает пять спален и две ванные комнаты на 156 м² жилой площади. Участок площадью 3 233 м² окружён водой и открытыми лугами, благодаря чему ощущение простора здесь сохранится на поколения.

Качественная реставрация охватывает все: новый бетонный первый этаж, деревянные окна с двойным остеклением, продуманная перепланировка и новая крыша с мансардными окнами — всё выполнено на высоком уровне. Комнаты отличают тепло, обилие естественного света и безупречное мастерство — филенчатые двери, современные ванные комнаты, американская кухня с встроенной техникой и бережно восстановленные исторические элементы. Недавняя покраска экстерьера и новые деревянные ставни подчёркивают вне-временной сельский характер дома.

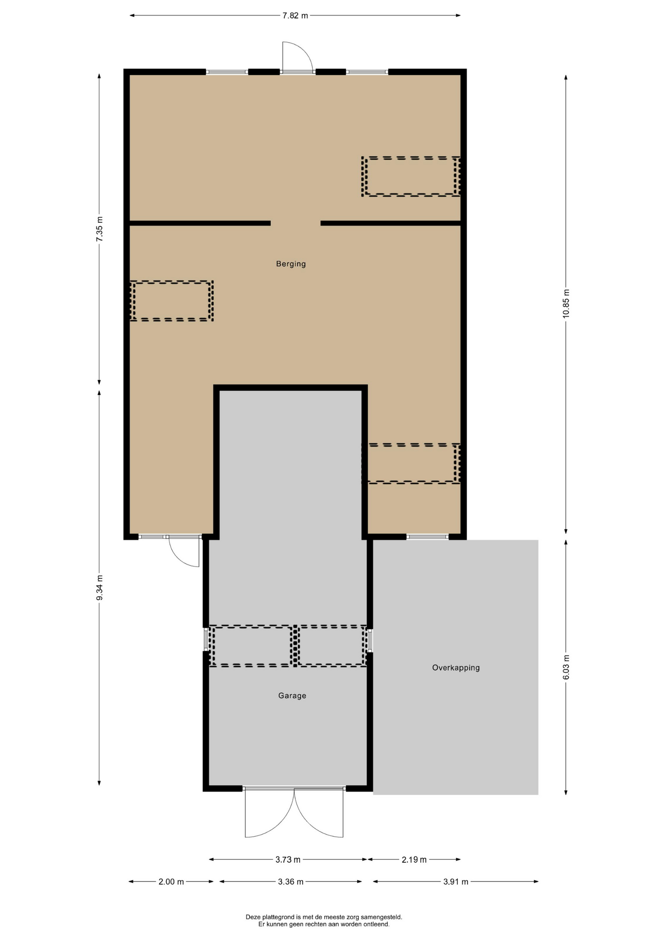
Снаружи ухоженный сад сочетает просторные газоны с уединёнными уголками, овощными грядками и тихими зонами отдыха. Благодаря защищённой восточной границе участок открывается беспрепятственным видом на воду и луга. Отдельный гараж, навес для автомобиля и амбар площадью 127 м² предлагают множество вариантов использования — для хранения либо творческих проектов. Для семей или ценящих гибкость предусмотрена жилая зона на первом этаже, обеспечивающая одноплановое проживание, которую дополняют четыре спальни на втором этаже, одна из которых прекрасно подходит для работы или учёбы. Энергетический класс D поддерживается утеплением крыши, стен и пола, высокоэффективным котлом и двойным остеклением.

Жизнь здесь, в отдельном доме в Бергамбахте, гарантирует уединённость без изоляции. Все удобства—магазины, рестораны, школы, клубы—расположены поблизости, а до Гауды и Роттердама можно доехать примерно за 30 минут. Для взыскательного покупателя это приглашение к мгновенному комфорту, архитектуре с характером и размеренному образу жизни, который формирует открытое небо и вода Зелёного Сердца.

Исследуйте Bergambacht вместе с Baerz — вашим надежным советником и личным поисковиком недвижимости

Успешное ведение дел на рынке недвижимости Бергамбахта требует знания местных тонкостей — от статуса зданий до особенностей «off-market» сделок. Надёжные советники обеспечивают доступ к редким объектам, ведут переговоры и компетентно управляют процессом приобретения и сохранения актива. Их опыт упрощает покупку и открывает уникальные возможности, недоступные публично.

Избегайте распространённых ошибок

Международные покупатели часто тратят ценное время на изучение дублирующихся, устаревших или вводящих в заблуждение онлайн-объявлений, особенно учитывая, что почти 30% объектов элитной недвижимости вообще не появляются на открытом рынке.
Агенты продавца представляют интересы продавца, а не ваши, и даже простой запрос о недвижимости может привести к тому, что агентство зарегистрирует вас как своего “клиента” без вашего согласия.
С Baerz Property Finders & Advisors вы полностью избегаете этих подводных камней.
Мы действуем исключительно в ваших интересах, предоставляя независимое представительство, прозрачные рекомендации и доступ ко всем доступным объектам, включая частные и вне-рыночные предложения, которых другие никогда не увидят.

Хотите узнать, как получить собственного персонального консультанта по недвижимости? Свяжитесь с нами, чтобы узнать, как мы можем представлять ваши интересы и открыть вам весь рынок.

Особенности

Передача права собственности
Запрашиваемая цена
€ 995.000 k.k.
Статус
beschikbaar
Принятие
in overleg
Строительство
Тип дома
Eengezinswoning
Тип здания
vrijstaande woning
Период строительства
1917
Энергетический рейтинг
D
Тип крыши
samengesteld dak
Спальни
5
Ванные комнаты
2
Площадь и объем
Жилая площадь
156 m2
Другое внутреннее пространство
0 m2
Внешнее складское помещение
127 m2
Объем в кубических метрах
556 m3
Размер участка
3233 m2
Удобства
Mechanische ventilatie
Rookkanaal
Dakraam
Glasvezel kabel
Aan rustige weg
Vrij uitzicht
Landelijk gelegen
Baerz & Co Property Brochure

Брошюра

Видео

Планы этажей

Van Herk Makelaars Excellent

Oudehoofdplein 4
3011 TM Rotterdam

xbek@vanherk.nl
+31 102581855

www.vanherk.nl/excellent/

Информация / Запрос на просмотр

Xandra Bek profile image
Xandra Bek
Register makelaar - taxateur