Ons kantoor is lid van Baerz & Co Luxury Homes; een internationaal platform dat exclusieve woningmakelaars met elkaar verbindt. Neem contact op met ons secretariaat voor meer informatie over het landelijke aanbod, waarvan u hieronder een selectie kunt bekijken.

Villa te koop in WASSENAAR

WASSENAAR Meijendelseweg 10 - 2243 GM Nederland


Sjoerd Bouma profile image
Sjoerd Bouma
Real Estate Agent
+31 6 55 78 20 36
info@beeuwkes.nl

Beeuwkes Makelaardij
Van Alkemadelaan 338
2597 AS Den Haag
NETHERLANDS
+31 703143000
www.beeuwkes.nl
info@beeuwkes.nl

Woonoppervlakte
237m2
Perceeloppervlakte
1000m2
Slaapkamers
6

Omschrijving

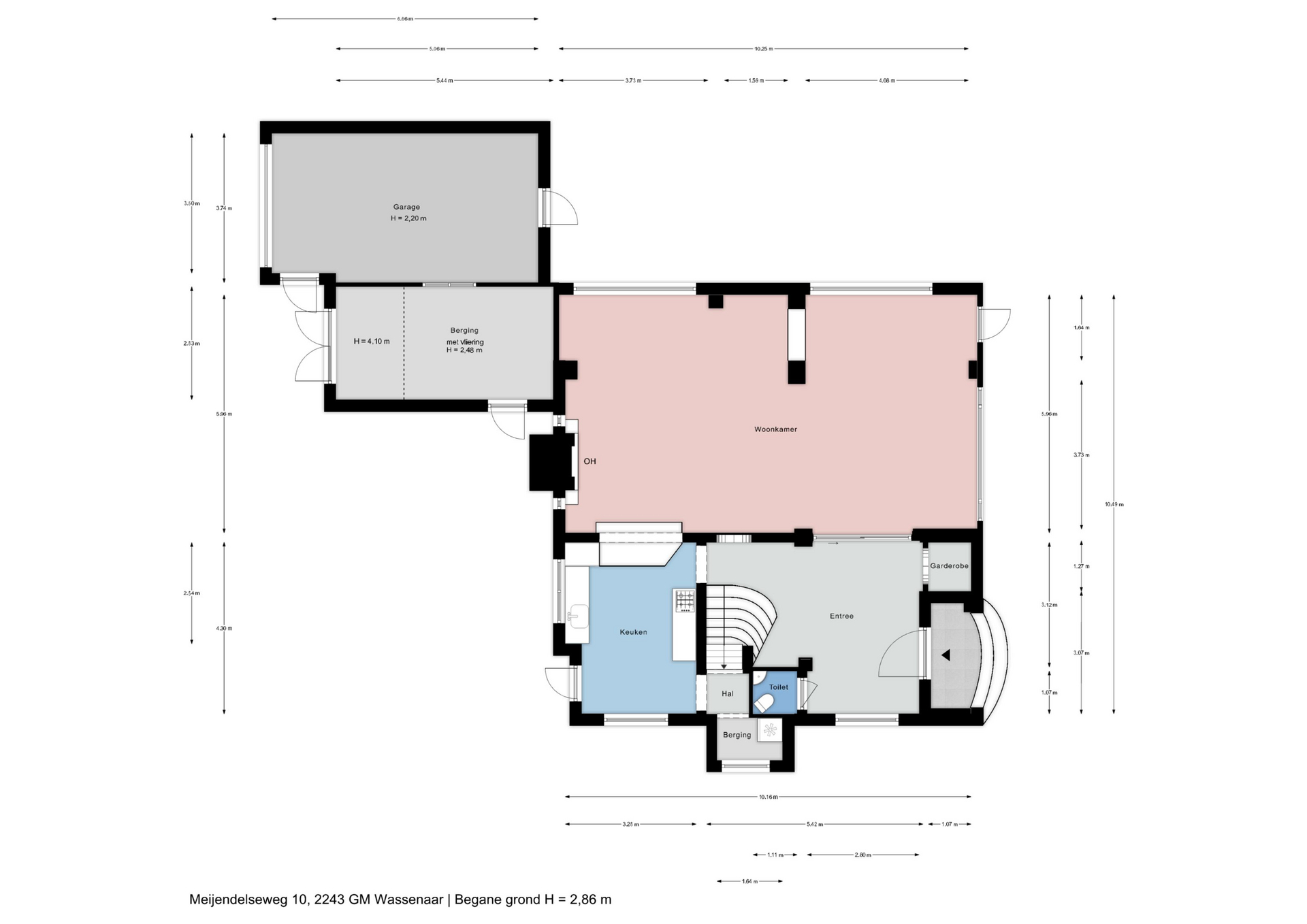
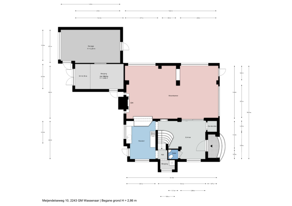
Op fraaie locatie zeer lichte charmante vrijstaande riet gedekte villa (ca. 237m2) op een zonnig vrij gelegen perceel van 1000m2. De woning barst van de fraaie stijlelementen zoals de massief eiken voordeur, eiken trapbekleding en eiken parketvloeren door de gehele woning. Fraaie ligging nabij natuurgebied Meijendel dus ideaal voor liefhebbers van het buitenleven.

Indeling: entree, royale ontvangsthal met fraaie in mozaïek gelegde vloer, riant trappenhuis, eenvoudige wc met fonteintje. Dubbele schuifdeuren met glas in lood ramen naar ruime lichte zit/eetkamer met eiken parketvloeren, open haard, marmeren vensterbanken en toegang tot de zonnige tuin. Vanuit de centrale hal is de ruime nette keuken bereikbaar die middels een halfopen verbinding in contact met eetkamer staat. De keuken heeft een achter entree en heeft een aangrenzende bijkeuken met toegang tot de kelder die uit drie praktische ruimtes bestaat.

Het fraaie lichte bordestrappenhuis met halverwege toegang tot een balkon leidt naar de 1e verdieping waar we naast een eenvoudige badkamer en een aparte douche een fraaie studeerkamer met toegang tot ruim balkon vinden en twee ruime slaapkamers. Zoals benoemd zijn alle vertrekken voorzien van eiken parketvloeren.

2e verdieping; lichte overloop, twee uitstekende slaapkamers en een derde wat kleinere slaapkamer waar desgewenst een goede badkamer kan worden gecreëerd. Veel kast ruimte en ook deze vertrekken zijn allen voorzien van eiken vloeren.

De tuin ligt half rondom de woning en is vrij gelegen en dus heel zonnig. Naast de oorspronkelijke garage die ooit verbonden was met de eetkamer en dus eenvoudig bij het huis zou kunnen worden getrokken is een nieuwere grote garage op het perceel aangebouwd die voor vele doeleinden geschikt is. Deze laatste heeft een automatische kanteldeur en heeft een doorloop naar de achtertuin.

Nadere gegevens:
- Eigen grond, perceel 1000m2
- Woonoppervlak ca. 237m2
- Kelder ca. 23m2
- Garages ca. 40m2
- CV Nefit topline 2016
- Bouwkundige keuring beschikbaar
- Ouderdom, milieu en niet bewoond clausule worden opgenomen

Kenmerken

Overdracht
Vraagprijs
€ 1.950.000 k.k.
Status
beschikbaar
Aanvaarding
in overleg
Bouw
Soort woonhuis
Villa
Soort bouw
vrijstaande woning
Bouwjaar
1928
Energieklasse
F
Slaapkamers
6
Badkamers
1
Oppervlakten en inhoud
Woonoppervlakte
237 m2
Overige inpandige ruimte
66 m2
Gebouwgebonden buitenruimte
12 m2
Inhoud
1128 m3
Perceeloppervlakte
1000 m2
Baerz & Co Property Brochure

Brochure

Informatie / bezichtigingsaanvraag

Video's

Foto's