Ons kantoor is lid van Baerz & Co Luxury Homes; een internationaal platform dat exclusieve woningmakelaars met elkaar verbindt. Neem contact op met ons secretariaat voor meer informatie over het landelijke aanbod, waarvan u hieronder een selectie kunt bekijken.

Villa te koop in ROERMOND

ROERMOND Roerderweg 34 - 6041 NS Nederland


Peet Donkers profile image
Peet Donkers
Real Estate Agent
+31 613786703
p.donkers@jackfrenken.nl

Jack Frenken Makelaars & adviseurs
Graaf Reinaldstraat 1
6041 XB Roermond
NETHERLANDS
+31 475335225
https://www.jackfrenken.nl/
info@jackfrenken.nl

Woonoppervlakte
159m2
Perceeloppervlakte
729m2
Slaapkamers
5

Omschrijving

Charmante villa in de geliefde wijk Roer-Zuid
Welkom in deze stijlvolle en uitstekend onderhouden villa, gelegen op een toplocatie in Roer-Zuid. Deze woning, in 2003 grondig gerenoveerd, verduurzaamd en uitgebouwd, biedt een comfortabele en luxueuze woonervaring voor wie gelijkvloers wil wonen, met extra ruimte op de verdieping is deze woning ook geschikt voor gezinnen. Dankzij de doordachte indeling en de hoogwaardige afwerking is dit een woning waar wooncomfort en elegantie samenkomen.

Een warm welkom
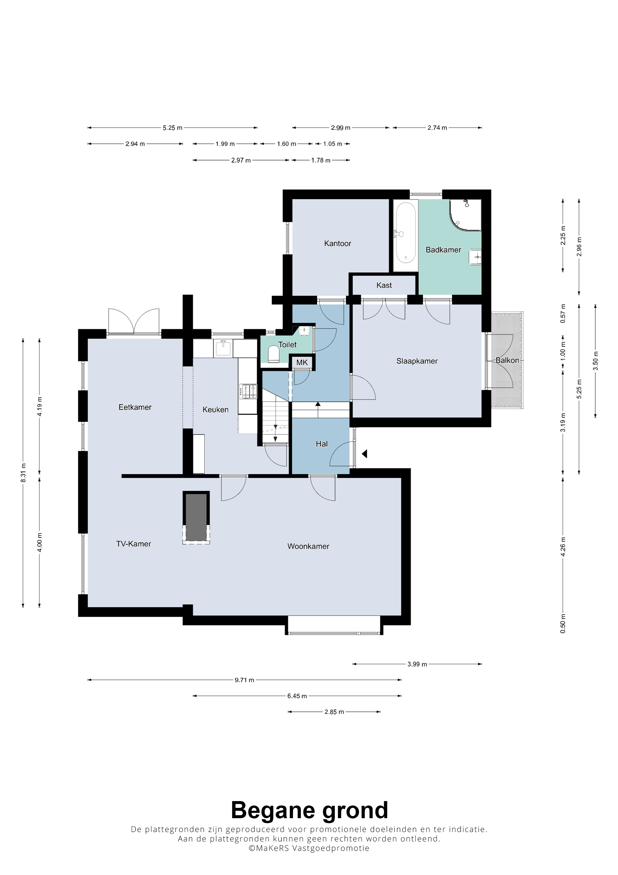
Bij binnenkomst in de ruime hal voelt u direct de sfeer van deze bijzondere woning. De lichte woonkamer is ingedeeld in drie sfeervolle ruimtes: een zitkamer, een tv-kamer en een eetkamer, die op harmonieuze wijze in elkaar overlopen. De grote raampartijen zorgen voor een prachtige lichtinval en een schitterend uitzicht op de fraai aangelegde tuin. Via de openslaande tuindeuren loopt u zo het terras op, waar u in alle rust en privacy kunt genieten.

De luxe Poggenpohl keuken is uitgerust met hoogwaardige inbouwapparatuur en biedt alle gemakken voor wie van koken houdt. De combinatie van een doordachte indeling en hoogwaardige materialen zorgt voor een heerlijke kookervaring. ’s Avonds ontspant u bij de sfeervolle gashaard met een goed boek of een glas wijn.

Comfortabel gelijkvloers wonen
De begane grond biedt een royale master bedroom met een eigen badkamer en balkon, een ideale privéruimte om tot rust te komen. De badkamer is voorzien van een ligbad, extra ruime douche, wastafelmeubel en behaaglijke vloerverwarming. Daarnaast zijn er op deze verdieping een praktische kantoorkamer en een toilet aanwezig. Dankzij deze indeling is de woning uitermate geschikt voor wie voornamelijk op de begane grond wil wonen, met de mogelijkheid om gasten een eigen ruimte op de verdieping te bieden.

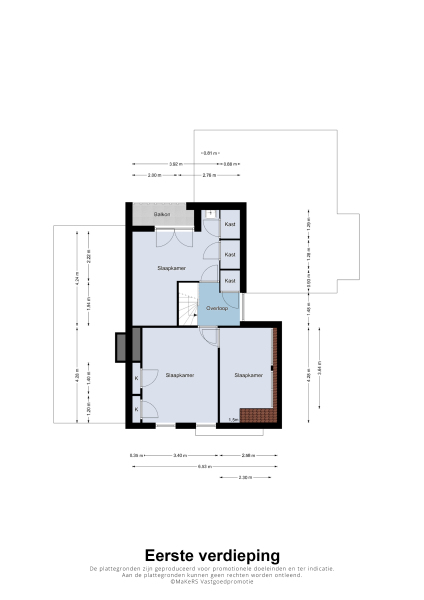
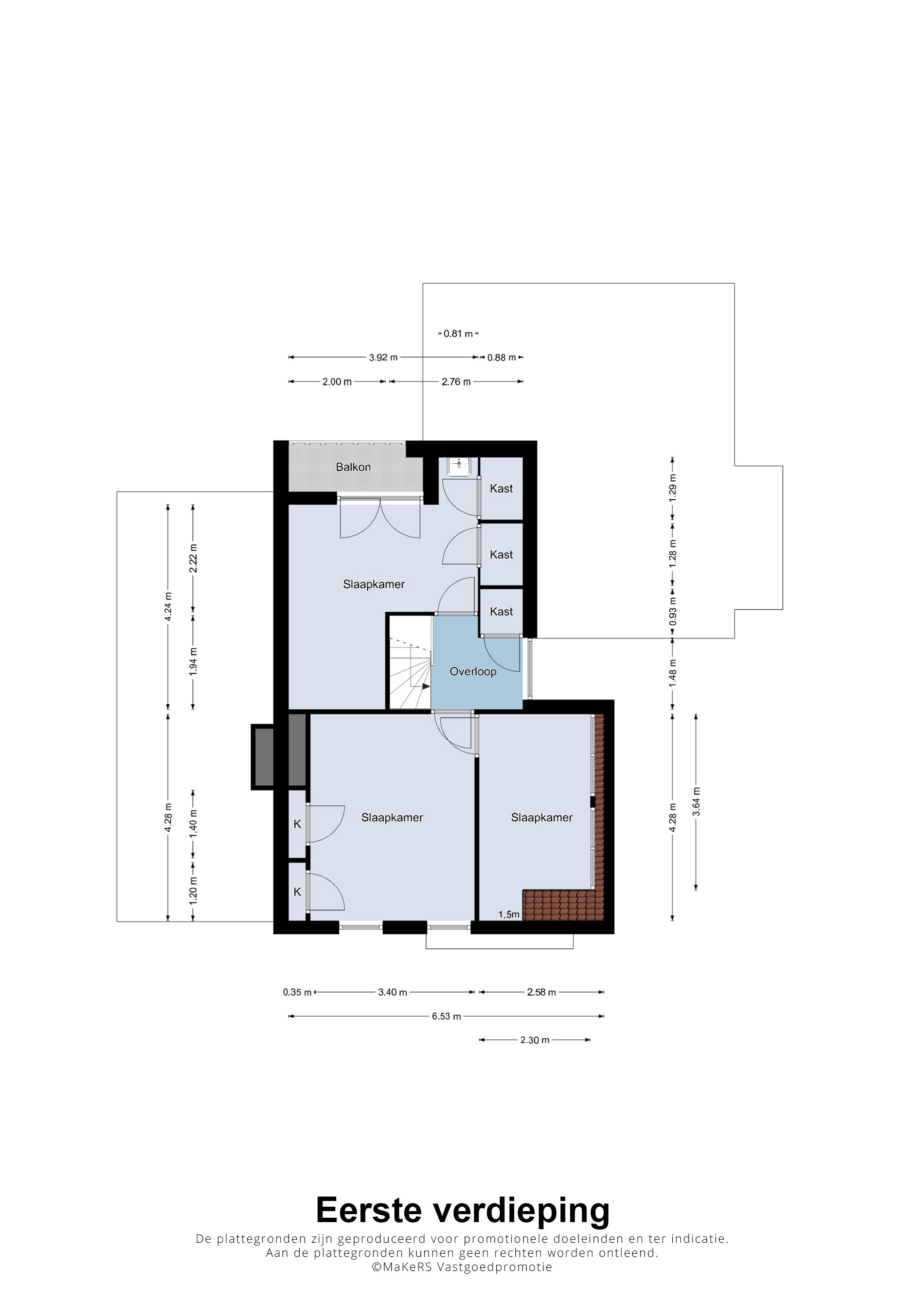
Extra slaapvertrekken op de eerste verdieping
Op de eerste verdieping bevinden zich nog drie slaapkamers, waarvan één is voorzien van een eigen wastafel en toegang tot een tweede balkon. De ingebouwde kasten bieden voldoende opbergruimte en maken de kamers praktisch en efficiënt in gebruik.

Souterrain: praktisch en veelzijdig
In het souterrain vindt u de inpandige garage, een sfeervolle wijnkelder en diverse provisieruimtes. Ook is hier een aparte ruimte voor witgoed en de cv-opstelling, wat extra gemak en bergruimte biedt.

Prachtige tuin met veel privacy
De fraai aangelegde tuin rondom de villa biedt volop rust en privacy. De zonnige ligging, het doordachte ontwerp en de luxe overkapping (2016) maken deze buitenruimte een heerlijke plek om te ontspannen en te genieten van het buitenleven. De afwerking met natuursteen, klinkers en grind sluit perfect aan bij de hoogwaardige uitstraling van de woning.

Duurzaam en energiezuinig wonen
Tijdens de renovatie in 2003 is de woning flink verduurzaamd, zonder concessies te doen aan wooncomfort. De belangrijkste energiebesparende maatregelen omvatten:

- Vernieuwd dak met hoogwaardige isolatie (2003)
- Spouwmuurisolatie en vloerisolatie (Tonzon)
- Hardhouten kozijnen met HR++ glas
- 18 zonnepanelen (opbrengst ca. 5200 kWh per jaar)
- Vloerverwarming in de woonkamer, badkamer en toilet
- Nefit cv-ketel Trendline HRC30CW6 (2023)

Dankzij energielabel B combineert deze woning luxe met een verantwoord energieverbruik, wat resulteert in een comfortabele en efficiënte woonomgeving.

Een unieke kans op een prachtige locatie
Deze sfeervolle villa biedt een zeldzame combinatie van luxe, comfort en privacy op een van de mooiste locaties van Roermond. Gelegen in de rustige en geliefde wijk Roer-Zuid, op korte afstand van het centrum en alle voorzieningen.

Bent u op zoek naar een stijlvolle woning die perfect geschikt is voor comfortabel wonen met ruimte voor gasten? Neem contact met ons op voor een bezichtiging en ontdek de charme en elegantie van deze villa!

Kenmerken

Overdracht
Vraagprijs
€ 750.000 k.k.
Status
verkocht onder voorbehoud
Aanvaarding
in overleg
Bouw
Soort woonhuis
Eengezinswoning
Soort bouw
vrijstaande woning
Bouwjaar
1955
Energieklasse
B
Soort dak
zadeldak
Slaapkamers
5
Badkamers
1
Oppervlakten en inhoud
Woonoppervlakte
159 m2
Overige inpandige ruimte
63 m2
Gebouwgebonden buitenruimte
6 m2
Inhoud
724 m3
Perceeloppervlakte
729 m2
faciliteiten
Rolluiken
Tv kabel
Buitenzonwering
In woonwijk
Baerz & Co Property Brochure

Brochure

Informatie / bezichtigingsaanvraag

Video's

Foto's

Plattegronden