Halfvrijstaande woning Kostrena met zeezicht en zwembad is een nieuw gebouwde residentie met 241 m² aan woonoppervlak, gelegen op een van de meest begeerde locaties aan de Kroatische kust. Verspreid over drie niveaus weerspiegelt deze woning het ritme van het Adriatische leven en combineert privacy met weidse uitzichten over zee en Kostrena.
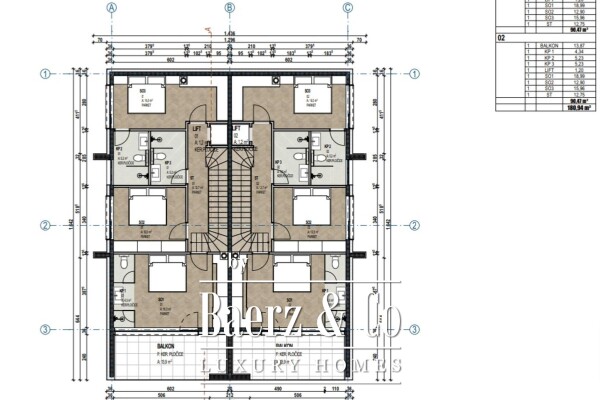
De entree begint via een privé garage van 32 m² en een taverne van 26 m² op het souterrain, aangevuld met een technische ruimte en lift. Op de begane grond openen de keuken, eetruimte en woonkamer naar een terras met zwembad, zonneterras, buiten toilet, pergola en een fraai aangelegde tuin. Iedere ruimte is afgestemd op comfort, natuurlijke looproutes en de mogelijkheid tot rust en afzondering.
Op de verdieping beschikken alle drie slaapkamers over een eigen badkamer, terwijl de master suite toegang heeft tot een balkon boven de zee. De aanwezigheid van een Daikin warmtepomp, plafondairconditioning en aluminium kozijnen onderstrepen het kwaliteits- en comfortniveau van de woning. Deze halfvrijstaande woning in Kostrena wordt eind 2024 opgeleverd en biedt een elegante, private uitvalsbasis om de Adriatische kust te beleven.
Ontdek Kostrena met Baerz, Uw Vertrouwde Personal Property Finder & Advisor
Het topsegment van de vastgoedmarkt in Kostrena kent veel nuances, waarbij strategische zoektochten en discrete onderhandeling samenkomen. Lokale adviseurs verschaffen unieke toegang tot off-marketobjecten en begeleiden klanten vakkundig door alle regelgeving en relatiegerichte transacties. Hun expertise waarborgt optimale condities voor zowel kopers als verkopers en beschermt vermogen en reputatie gedurende het hele proces.
Vermijd veelvoorkomende valkuilen
Internationale kopers verspillen vaak kostbare tijd aan dubbele, verouderde of misleidende online aanbiedingen, en ook omdat bijna 30% van de luxe woningen nooit openbaar op de markt verschijnt. Verkopersmakelaars behartigen de belangen van de verkoper, niet die van kopers. Alleen al het aanvragen van informatie over een woning kan ertoe leiden dat een verkoopmakelaar u zonder uw toestemming als “cliënt” registreert.
Met Baerz Property Finders & Advisors voorkomt u al deze valkuilen volledig. Wij werken uitsluitend in uw belang en bieden onafhankelijke vertegenwoordiging, heldere begeleiding en toegang tot alle beschikbare woningen, inclusief off-market aanbiedingen die anderen nooit te zien krijgen.
Interesse in een Personal Property Advisor?
Wij tonen u alle beschikbare woningen op één plek. Neem gerust contact met ons op om te zien hoe wij aan uw wensen kunnen voldoen en uitsluitend uw belangen zullen beschermen.