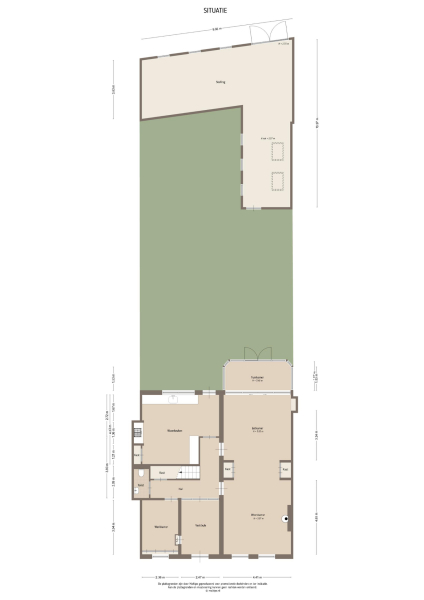
Op toplocatie in de Bovenstad, een geliefd deel van de historische binnenstad van Gorinchem, staat deze statige voormalige bovenmeesterswoning met een brede, zonnige tuin en een mooi bijgebouw annex stalling (59 m²) met achterom.
Imposante vestibule, hal met authentieke vloer- en wandtegels, woonkamer met rookkanaal, aangrenzende tuinkamer, tuingerichte Siematic woonkeuken en een werkkamer op de begane grond.
Lichte overloop, drie (tweepersoons)slaapkamers – waarvan één met garderobewand, schouw en balkon – een waskamer en een compleet ingerichte badkamer en separaat toilet op de eerste verdieping.
Bruto-inhoud: 880 m³
Gebruiksoppervlakte wonen: 215 m²
Perceelgrootte: 340 m²
Bouwperiode: 16e eeuw
Gemeentelijk monument
Wonen aan de Kalkhaven is wonen in de Bovenstad, binnen de vesting van Gorinchem. Alle dagelijkse voorzieningen, winkels, speciaalzaken, sfeervolle boetiekjes en uiteenlopende restaurants en cafés liggen op loopafstand, terwijl je ook in no time in de natuur bent. Gorinchem telt ongeveer 39.000 inwoners – groot genoeg voor een compleet voorzieningenaanbod en klein genoeg om intiem te blijven. Cultuurliefhebbers wandelen ’s avonds naar een van de twee theaters of het filmhuis, terwijl op fietsafstand een grote bioscoop ligt. Ook de sporter komt in Gorinchem ruimschoots aan zijn of haar trekken: naast clubs voor onder andere hockey, padel, voetbal, tennis en fitness is er ook een groot zwembad. Verder is Gorinchem een uitstekende uitvalsbasis voor hardlopers en wielrenners. De stad kent een ruim aanbod van scholen en kinderopvang in en rond de binnenstad. Ook middelbare scholen – tot en met gymnasium – zijn ruim vertegenwoordigd. Het NS-station ligt op acht fietsminuten en door de ligging nabij de A15 en A27 is de bereikbaarheid met de auto uitstekend.
Indeling begane grond
In de fraaie lijstgevel leidt de originele paneelvoordeur naar de vestibule. Deze ruimte heeft een ongekende grandeur, enerzijds door het hoge geornamenteerde stucplafond en anderzijds door het fraaie houtwerk met gaaf bewaard gebleven geëtst glas. De vloer is belegd met marmer en de facettegels op de wanden zijn intact gebleven. In de achtergelegen hal leidt een 19e-eeuwse trappartij naar de verdieping. Vanuit de hal geven prachtige paneeldeuren toegang tot de woonkamer, werkkamer, woonkeuken, kelderkast en het toilet. De vloer is hier belegd met authentieke patroontegels. De woonkeuken is een heerlijk lichte ruimte, ingericht met een Siematic keukenmeubel voorzien van diverse apparatuur en een diep natuurstenen werkblad uit één stuk.
Onder de originele schouw staat een RVS Boretti fornuis.
Vanaf het aanrecht is er mooi zicht op de tuin. Er is voldoende ruimte voor een grote eettafel en een brede deur opent naar buiten.
Rechts van de hal bevindt zich de woonkamer. Deze lichte ruimte heeft een plafond van ruim drie meter hoog, een schouw met goed werkend rookkanaal en vaste inbouwkasten op de plaats van de vroegere suitedeuren. In de achterkamer is in de voormalige doorgang naar de school een extra kast gemaakt. Aan de achterzijde bevindt zich een verwarmde tuinkamer met plavuizenvloer – ideaal als speelkamer, want de ruimte kan worden afgesloten met glazen schuifdeuren.
De werkkamer ligt aan de voorzijde en kijkt uit over de straat en het plantsoen. Onder de vensterbanken zijn vaste kasten gemaakt en op de vloer liggen eiken delen.
Vroeger diende deze kamer als wachtkamer voor de arts die op de eerste verdieping praktijk hield.
Indeling eerste verdieping
Boven gekomen baadt de overloop in een zee van licht, dankzij de lichtstraat in het platte dak. Prachtige drie-vaks paneeldeuren geven toegang tot de aangrenzende vertrekken. Twee slaapkamers bevinden zich aan de voorzijde en kijken uit over het plantsoen. In het voorportaal van één van deze slaapkamers aan de voorzijde is een trap voorbereid, omdat er in het verleden plannen waren om het pand met een extra verdieping te vergroten.
Aan de achterzijde ligt de grootste slaapkamer met antieke schouw, geornamenteerd stucplafond, garderobewand en balkon. Aangrenzend bevindt zich de wasruimte met aansluitingen voor wasmachine, droger en de cv-ketel. De badkamer is compleet ingericht met ligbad, inloopdouche, twee wastafels en vloerverwarming. De toiletruimte grenst aan de overloop.
Bijzonderheden
Achter de woning ligt een unieke, 9,5 meter brede en 15 meter diepe tuin op het oosten en zuiden. Er is altijd wel ergens een plekje in de zon of schaduw te vinden. In 2021 hebben de eigenaren het perceel kunnen uitbreiden, waardoor er ruimte ontstond om een groot pannengedekt bijgebouw te bouwen. Deze ruimte van 59 m² leent zich bij uitstek als stallingsruimte voor een oldtimer of boot, dan wel als atelier. De dubbele garagedeuren komen uit op de parkeerplaats direct achter de woning.
De woning is de afgelopen 25 jaar met zorg onderhouden.
De woning wordt verwarmd door een HR-ketel uit 2020 en op het geïsoleerde dak liggen twaalf zonnepanelen. Aan de voorzijde is op de begane grond isolerend monumentenglas geplaatst en op de verdieping HR++-beglazing. Zo’n 25 jaar geleden hebben de eigenaren onderzocht of uitbreiding van het pand tot de mogelijkheden behoorde. De gemeente stond destijds positief tegenover het plaatsen van een tweede verdieping. De tekeningen daarvan zijn desgewenst in te zien, zonder dat daaraan rechten kunnen worden ontleend. De voorbereide trap naar die extra verdieping is nog altijd aanwezig.
De Bovenstad is een hoger gelegen stadsuitbreiding, ontstaan in het laatste kwart van de 16e eeuw. Het gebied ontwikkelde zich tot een levendige buurt van handelaren, reders en ambachtslieden die profiteerden van de gunstige ligging nabij het water. Hier lagen scheepswerven, pakhuizen en werkplaatsen. De bedrijvigheid van de haven bracht welvaart én leven in de brouwerij.
De kern van de woning aan de Kalkhaven dateert uit 1580. Rond 1900 kreeg de haven zijn huidige vorm, zo ook nummer 23. Vandaag de dag is dit een van de meest geliefde plekken van Gorinchem: een historische woonomgeving met authentieke stadssfeer en alle voorzieningen binnen handbereik.
Wie hier gaat wonen, kiest voor het beste van twee werelden: de rust van een vestingstad aan de rivier en de levendigheid van een bruisend stadscentrum om de hoek.