Ons kantoor is lid van Baerz & Co Luxury Homes; een internationaal platform dat exclusieve woningmakelaars met elkaar verbindt. Neem contact op met ons secretariaat voor meer informatie over het landelijke aanbod, waarvan u hieronder een selectie kunt bekijken.

Herenhuis te koop in GEERTRUIDENBERG

GEERTRUIDENBERG Brandestraat 30 - 4931 AW Nederland


Lennart van Oosterhout profile image
Lennart van Oosterhout
Real Estate Agent
+31 6 22 97 21 99
lvanoosterhout@storimansenpartners.nl

Storimans en Partners
Ginnekenweg 161
4818 JD Breda
NETHERLANDS
+31 76 522 60 90
www.storimansenpartners.nl
info@storimansenpartners.nl

Woonoppervlakte
268m2
Perceeloppervlakte
374m2
Slaapkamers
5

Omschrijving

Dit klassieke, luxe en volledig gemoderniseerde herenhuis met achterhuis is gelegen aan de rand van de prachtige, karakteristieke en beeldbepalende markt van Geertruidenberg.

Deze riante woning biedt onder andere een grote woonkamer, een sfeervolle en ruime woon-/eetkeuken, daarnaast 7 (slaap)kamers en 2 badkamers.

Achter de woning ligt een prachtige, zonnige tuin waarin een grote (volledig geïsoleerde) garage die, naast plaats aan twee auto's, een zee aan bergruimte biedt. De woning heeft een woonoppervlakte van 268 m² en een grote monumentale gewelfde kelder.

De staat is uitstekend; een instapklaar en bijzonder woonobject, van alle gemakken voorzien! Zo is er onder andere airconditioning aanwezig, een WTWsysteem, een alarmsysteem met camera's, een "slim" Homey-systeem etc. etc.

Het herenhuis is gelegen op loopafstand van winkels, horeca, basisscholen en diverse voorzieningen. Uitvalswegen zijn in de nabijheid gelegen en steden als Breda en Rotterdam zijn binnen zo'n 30 minuten bereikbaar.
BEGANE GROND
HAL/ENTREE
Mooie, authentieke hal/entree waarin meterkast (vernieuwde groepenkast met 14 groepen + aardlekschakelaars) en toiletruimte.

TOILET
Toiletruimte met wandcloset met inbouwreservoir en fonteintje.
Via één van de vele authentieke paneeldeuren heeft u toegang tot de riante living.

WOONKAMER
Riante L-vormige woonkamer met diverse inbouwkasten en mooie karakteristeke elementen, zoals een natuurstenen schouw met haard en een grote open wandkast (ca. 1800). De vloer is uitgevoerd met massief eikenhouten vloerdelen, daarnaast treft u in de woonkamer een prachtig balkenplafond.
Via een 3.5 meter hoge klassieke scheidingswand met paneeldeuren heeft u toegang tot een tussenportaal.

TUSSENPORTAAL
In het tussenportaal treft u een stalen spiltrap met vide tot aan de nok. Er is een uitsparing gemaakt voor een inpandige trap naar de multifunctionele kelder. Vanuit het tussenportaal voorts toegang tot:

WOON-/EETKEUKEN
Woon-/eetkeuken met sfeervolle inrichting, bestaand uit een arduin aanrechtblad met dubbele porseleinen spoelbak, Quooker met bruiswater, 90cm breed gasfornuis, dubbele oven, afzuigkap, stoomoven en koelkast. De maatwerkkeuken is in een hoekopstelling geplaatst en biedt een fantastisch uitzicht op de tuin. Het middengedeelte, de antieke kerkvloer van Arduin, biedt plaats aan een riante eettafel. Ook treft u in de keuken een authentieke kastenwand uit 1800 en een prachtig balkenplafond aan.

Achter de kastenwand vindt u een grote voorraadkast/bijkeuken, waarin o.a. de aansluitpunten ten behoeve van de wasapparatuur.

Het achterportaal verbindt het herenhuis met het achterhuis. Middels een loopdeur heeft u tevens toegang tot de tuin.
EERSTE VERDIEPING
OVERLOOP
Ruime overloop met dakramen, vide en mooie open trappartij. De overloop geeft een zeer ruimtelijk effect en daarmee verschillende gebruiksmogelijkheden.

SLAAPKAMER I
Voorslaapkamer (waarbij de originele kapconstructie in het zicht gebleven is) met een op maat gemaakte garderobekast.

MASTERBEDROOM/SLAAPKAMER II
Aan de achterzijde gesitueerde masterbedroom met vaste kast en fraai zicht op de ruime achtertuin.
Ook hier zijn de balken en kapconstructie in het zicht gebleven.

SLAAPKAMER III
Voorslaapkamer met de spanten fraai in het zicht.

BADKAMER I
Luxe badkamer met ligbad, inloopdouche met twee thermostaatkranen/douchekoppen, dubbele wastafel in een meubel en een wandcloset met inbouwreservoir. Het grote Velux dakraam zorgt voor veel daglichttoetreding in de ruimte.

Verdieping I is geheel voorzien van glad stucwerk als wandafwerking én grenen vloerdelen (met isolerende ondervloer).
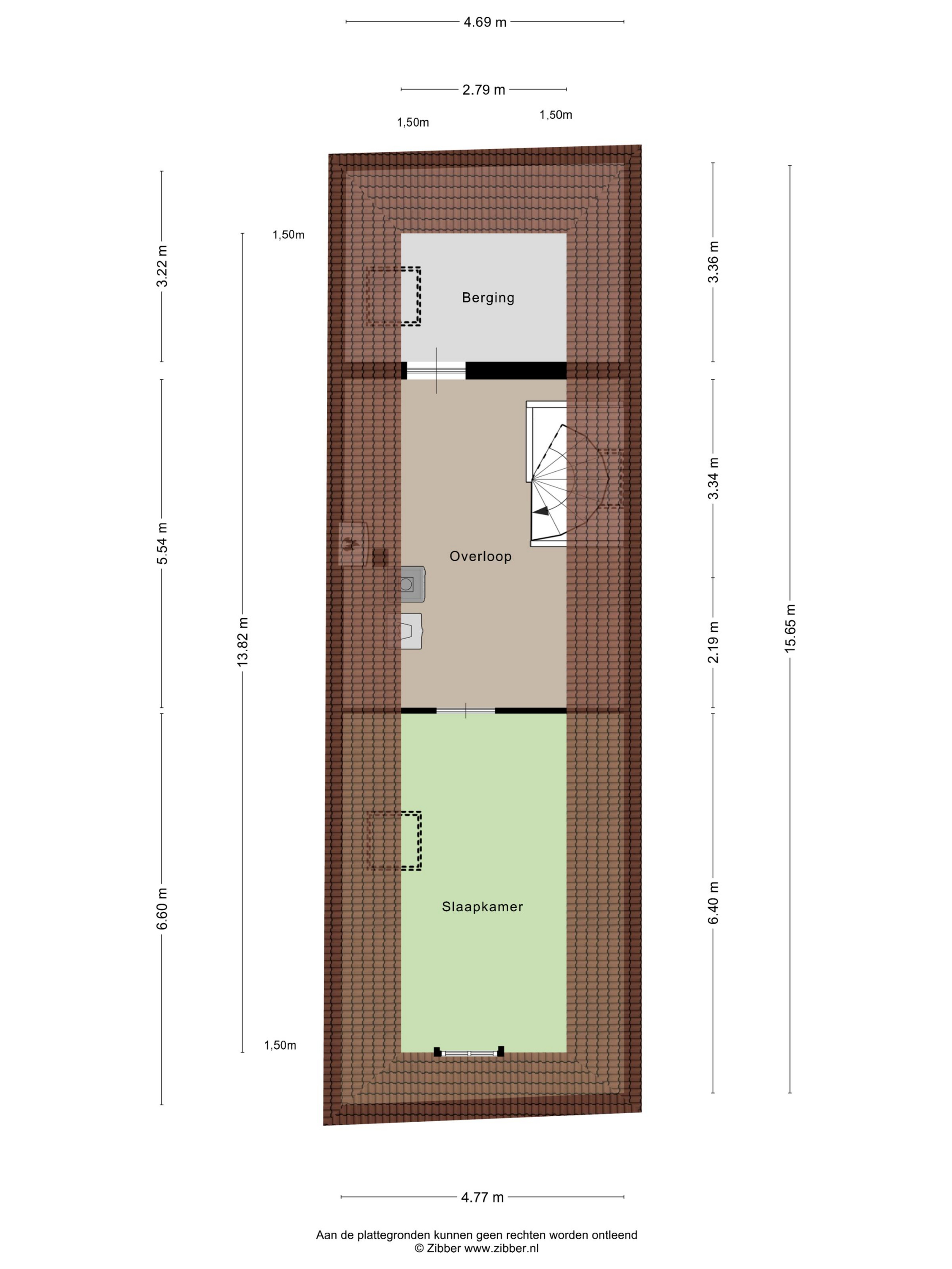
TWEEDE VERDIEPING
OVERLOOP
Overloop met fijne werkruimte (onder andere als was-/ strijkruimte te gebruiken), direct onder de imposante originele (1556!) kapconstructie.

De CV-installatie én het mechanisch ventillatiesysteem zijn op deze verdieping geplaatst, alsmede de aansluitpunten ten behoeve van de wasapparatuur.

SLAAPKAMER V
Voorslaapkamer met zicht op de prachtige, voor de woning gelegen, kerktoren.

BERGKAMER
Aan de achterzijde gesitueerde bergkamer met bergvliering en dakraam. Deze ruimte biedt de mogelijkheid tot het creëren van een extra slaapkamer.

Ook verdieping II is afgewerkt met stucwerk en houten vloerdelen.
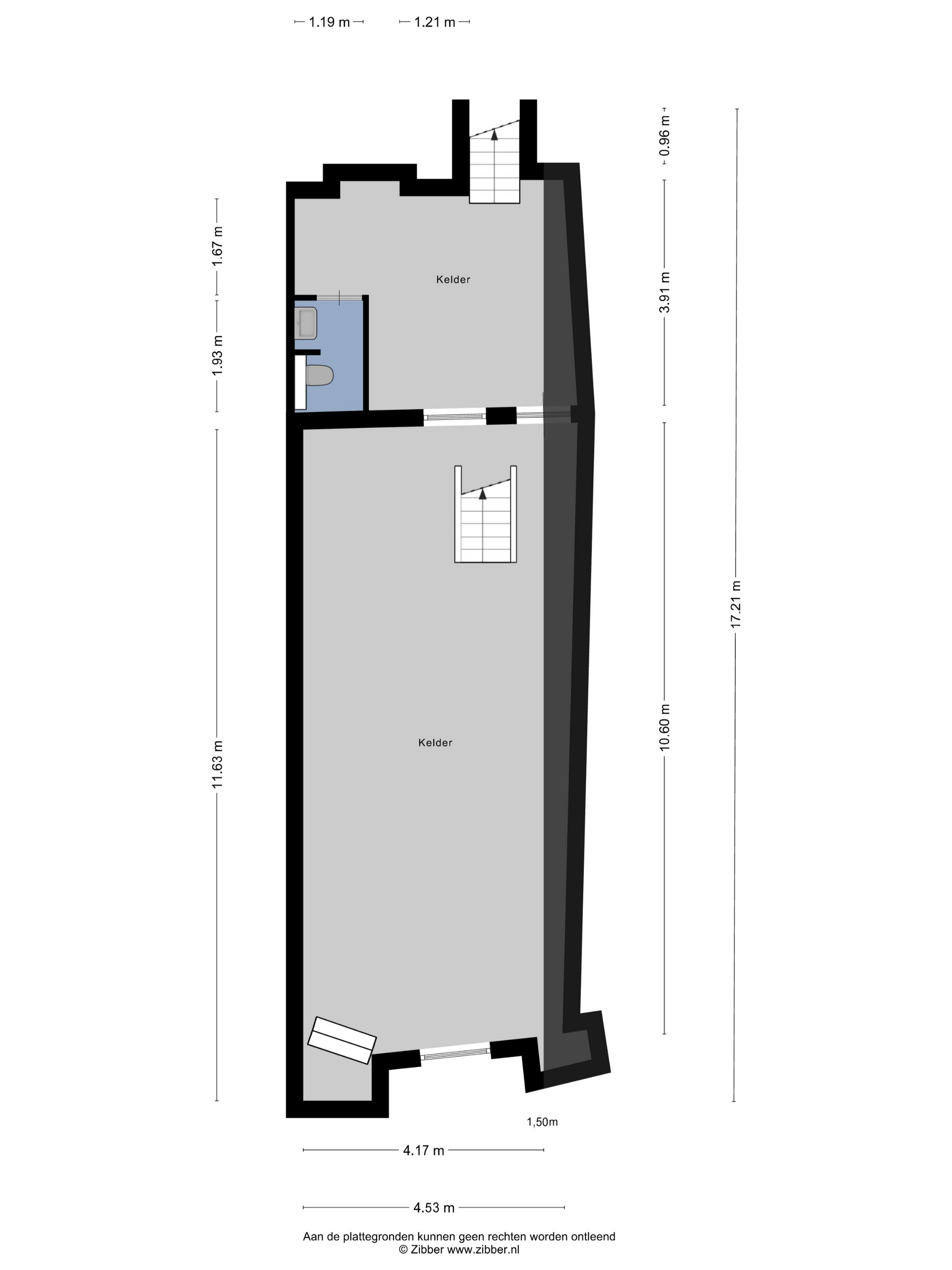
SOUTERRAIN
Fantastische gewelfde kelder met portaal (eigen entree!), een aparte voorraadkelder, toiletruimte, keukenblok met kraan en een sfeervolle bar. Deze ruimte is vanaf de straat en vanaf de tuin te bereiken.

De kelder is voorzien van een geïsoleerde gevlinderde betonvloer met vloerverwarming. Het gewelfde plafond en de authentieke waterput zorgen voor een zeer sfeervol en nostalgisch geheel.

Het souterrain biedt, mede doordat er een gedegen renovatie heeft plaatsgevonden, diverse gebruiksmogelijkheden; deze ruimte is o.a. geschikt voor workshops en trainingen, maar ook als hobbyruimte, gym of gewoon voor het organiseren van een gezellige borrel te gebruiken.
BEGANE GROND
ACHTERHUIS
Het achterhuis (met een Franse kap) ademt de oude sfeer door onder andere de bijzondere detaillering in het metselwerk en oude plavuizen.

Dit achterhuis, ideaal voor mantelzorg, kantoor aan huis of bijvoorbeeld een nog thuiswonende student, heeft eigen voorzieningen; een gezellige ruimtelijke woonkamer (tuingericht) en een slaap- en badkamer.

Het achterhuis (soldatenhuis) is oorspronkelijk gebouwd voor soldaten die kost en inwoning hadden binnen het gezin. Momenteel is het achterhuis een volwaardig onderdeel van de hoofdwoning met toch een zelfstandig karakter. De vloer is voorzien van grenen vloerdelen, er is een fraaie marmeren schouw aanwezig. De trap naar de bovenverdieping is weggewerkt achter een karakteristieke wand met kastdeuren. De openslaande deuren geven een mooi zicht op de tuin. In een diepe inbouwkast is o.a. de Remeha cv-combiketel geplaatst.
EERSTE VERDIEPING
ACHTERHUIS
SLAAPKAMER IV
Slaapkamer met grenen vloerdelen en glad gestucte wanden. Ook in deze kamer is de prachtige originele kapconstructie geheel in het zicht gebleven.

BADKAMER II
(Gasten)badkamer met douche, wandcloset met inbouwreservoir en een wastafel.
GARAGE
Volledig geïsoleerde garage met vaste trap met toegang tot de eerste verdieping en twee elektrische sectionaaldeuren, welke middels recht van overpad toegang bieden tot de straat. De mgarage biedt plaats aan twee auto’s en is voorzien van extra bergruimte en een laadpunt voor een elektrische auto. Via de garage heeft u toegang tot een achterom. De bovengelegen verdieping is volledig geïsoleerd en is ruim op stahoogte. Met het plaatsen van dakramen of een dakkapel ontstaan er diverse extra gebruiksmogelijkheden.
TUIN
Diepe, fraai (recent opnieuw) aangelegde tuin, gelegen op het zonnige zuidwesten, met o.a. twee terrassen en prachtige beplanting.

De terrassen bieden heerlijk zon- en schaduwplekjes, waar u wordt omringd door een weelde aan bloemen, planten en heesters. Een bijzonder sfeervolle tuin met een haast Provencaalse sfeer, mede door het zicht op de woning en monumentale kerktoren.
WAT U VERDER NOG MOET WETEN
• De woning is compleet gemoderniseerd en goed geïsoleerd, elektra- en wateraansluitingen alsmede de riolering zijn in 2005 volledig vervangen. De elektra-installatie is zeer uitgebreid en biedt in zowel de woning als in de garage krachtstroom;
• De kozijnen zijn vervangen met Win-Twin mkozijnen en Ruysdael glas (speciaal monumentenglas dat geluids- en warmtewerend is);
• De gehele woning is voorzien van gestucte mwanden;
• Alle authentieke elementen zijn bewaard gebleven of vervangen in stijl;
• De keukeninrichting en het sanitair zijn vernieuwd;
• De gehele woning is voorzien van luxe vloeren; resp. eikenhouten planken, grenen vloerdelen en een Arduinen kerkvloer;
• Het souterrain is volledig gemoderniseerd;
• Er is een waterontharder geplaatst;
• De woning is goed geïsoleerd, hierdoor heeft het object label A.
• De woning en het souterrain zijn voorzien van WTW balansventilatie voor optimaal comfort.

Kenmerken

Overdracht
Vraagprijs
€ 1.275.000 k.k.
Status
beschikbaar
Aanvaarding
in overleg
Bouw
Soort woonhuis
Herenhuis
Soort bouw
tussenwoning
Bouwjaar
1556
Energieklasse
A
Soort dak
zadeldak
Slaapkamers
5
Badkamers
2
Oppervlakten en inhoud
Woonoppervlakte
268 m2
Overige inpandige ruimte
49 m2
Gebouwgebonden buitenruimte
15 m2
Externe bergruimte
65 m2
Inhoud
1122 m3
Perceeloppervlakte
374 m2
faciliteiten
Mechanische ventilatie
Tv kabel
Airconditioning
Aan rustige weg
In centrum
In woonwijk
Beschutte ligging
Baerz & Co Property Brochure

Brochure

Informatie / bezichtigingsaanvraag

Video's

Foto's

Plattegronden