UITHOORN
Faunalaan 93 - 1422 ZH
Les Pays-Bas

John Korver profile image
John Korver
Real estate agent
€1,343,000 k.k.
Surface habitable
290m2
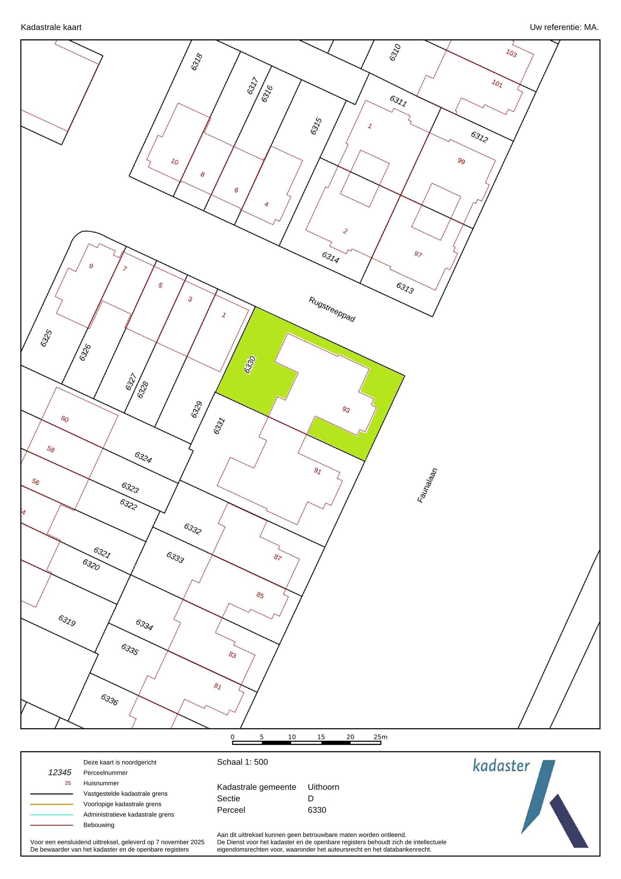
Superficie du terrain
445m2
Chambres
6

Description

La Villa Uithoorn offre un équilibre exceptionnel entre volumes généreux et art de vivre raffiné au sein du quartier résidentiel prisé de Legmeer-West. Dès votre arrivée, l’agencement de 290 m² accueille par la lumière, la confidentialité et une grande polyvalence. L’accès crée une ambiance sereine, avec une large allée pouvant accueillir plusieurs véhicules et une rue paisible qui valorise la tranquillité du lieu.

Dès l’entrée, le hall dévoile une utilisation ingénieuse de l’espace et des rangements discrets. Le séjour principal se distingue par sa clarté naturelle et sa fluidité entre intérieur et extérieur, notamment grâce aux portes-fenêtres ouvrant sur un vaste jardin baigné de soleil de 445 m². Différentes terrasses, un bassin d’eau et des recoins intimes invitent au repos et à la convivialité. La cuisine ouverte, élégamment conçue, propose un îlot central spacieux et des équipements de très haut niveau, pensés pour conjuguer fonctionnalité et partage. Une pièce indépendante multifonction, accessible par une entrée privée, offre la liberté d’un bureau, d’un atelier ou d’un espace forme, idéale pour ceux qui recherchent autonomie et inspiration créative.

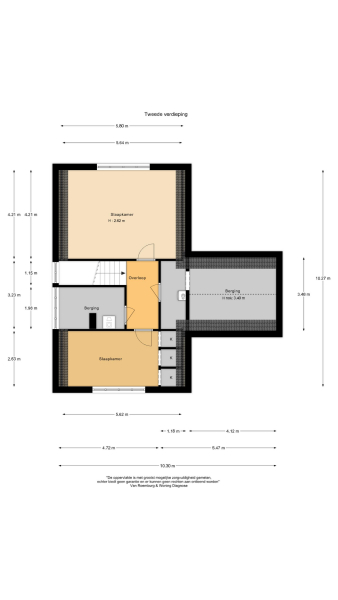
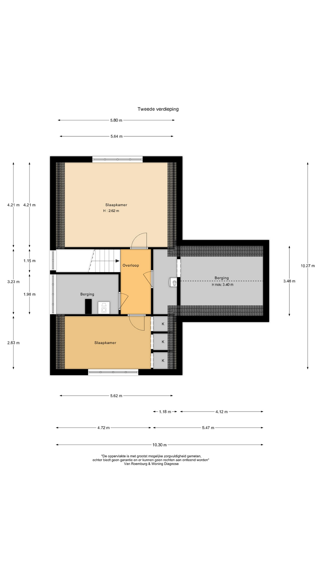
À l’étage, trois chambres entourent un palier apaisant, avec une salle de bains élégante et des toilettes supplémentaires pour garantir confort et intimité. Le second étage développe le potentiel de la maison avec deux chambres supplémentaires et de généreux espaces de rangement, répondant aux besoins des familles en évolution ou des collectionneurs.

Dans toute la villa, des matériaux tels que le parquet en chêne français avec chauffage au sol illustrent un luxe feutré. Le garage, doté d’une porte électrique enroulable, du chauffage et d’un espace de travail potentiel, s’intègre harmonieusement au logement. La performance énergétique de classe A comprend 18 panneaux solaires et une pompe à chaleur hybride, garantissant un mode de vie moderne et efficace.

La proximité immédiate du tram express vers Amsterdam, combinée à une large offre d’écoles, de parcs et de clubs sportifs, permet de conjuguer accessibilité urbaine et douceur de vivre d’Uithoorn. Cette villa incarne espace, expertise artisanale et une adresse où sérénité, connexions et quotidien facile se rejoignent.

Découvrez Uithoorn avec Baerz, votre conseiller et chasseur immobilier personnel de confiance

La complexité du marché d’Uithoorn – négociations pointues, biens off-market, réglementation évolutive – récompense les acheteurs qui sollicitent des conseillers experts. Ces professionnels apportent un éclairage déterminant, de la recherche du bien à la diligence requise. Grâce à leur accès discret et compréhension des besoins, ils assurent un avantage décisif à chaque étape.

Évitez les pièges courants

Les acheteurs internationaux perdent souvent un temps précieux à naviguer entre des annonces en ligne dupliquées, obsolètes ou trompeuses, d’autant que près de 30% des propriétés de luxe ne sont jamais mises sur le marché.
Les agents du vendeur représentent les intérêts du vendeur, pas les vôtres, et une simple demande d’information peut entraîner votre inscription comme “client” auprès d’une agence sans votre consentement.
Avec Baerz Property Finders & Advisors, vous évitez totalement ces écueils.
Nous agissons exclusivement en votre nom, en vous offrant une représentation indépendante, des conseils transparents et un accès à toutes les propriétés disponibles, y compris les opportunités privées et off-market que les autres ne voient jamais.

Curieux de savoir comment obtenir votre propre Conseiller Immobilier Personnel ? Contactez-nous pour découvrir comment nous pouvons défendre vos intérêts et vous ouvrir l’accès à l’ensemble du marché.

Caractéristiques

Panneaux solaires
Transfert de propriété
Prix demandé
€ 1.343.000 k.k.
Statut
verkocht onder voorbehoud
Acceptation
in overleg
Construction
Type de maison
Villa
Type de bâtiment
geschakelde woning
Période de construction
2009
Classe énergétique
A
Type de toit
samengesteld dak
Chambres
6
Salles de bains
1
Surfaces et volumes
Surface habitable
290 m2
Autre espace intérieur
22 m2
Volume en mètres cubes
1116 m3
Superficie du terrain
445 m2
Équipements
Mechanische ventilatie
Tv kabel
Rookkanaal
Dakraam
Zonnepanelen
Balansventilatie
Natuurlijke ventilatie
Aan rustige weg
In woonwijk
Baerz & Co Property Brochure

Brochure

Vidéos

Korver makelaars

Stationsweg 12
3641RG Mijdrecht

welkom@korvermakelaars.nl
+31 297 25 04 21

www.korvermakelaars.nl

Demande d'information / de visite

John Korver profile image
John Korver
Real estate agent