ALMEN
Lage Lochemseweg 31 a - 7218 PA
Les Pays-Bas

Jenne de Haan profile image
Jenne de Haan
Real Estate Agent
€2,445,000 v.o.n.
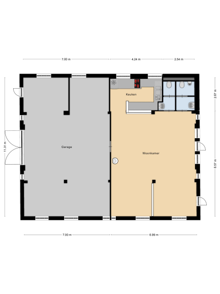
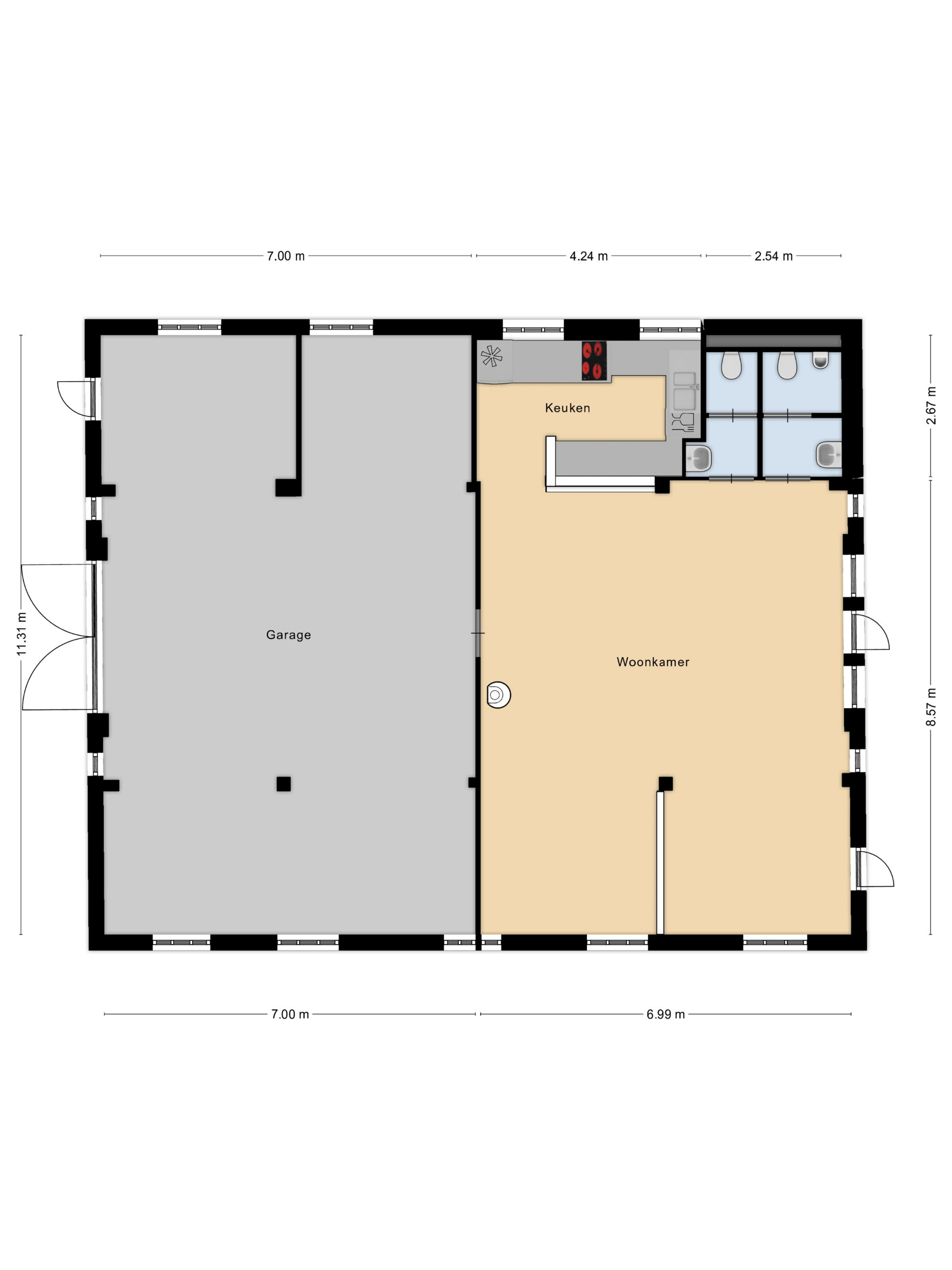
Surface habitable
438m2
Superficie du terrain
70635m2
Chambres
3

Description

Le domaine d’Almen, aux Pays-Bas, incarne une rencontre rare entre majesté historique et habitation raffinée, au bord des rives romantiques de la Berkel. La ferme principale, avec une surface habitable de 438 m² et un volume de 2 564 m³, est au cœur d’une propriété d’environ 70 635 m² entourée de forêts de chênes et de hêtres, de prairies couvertes de fleurs sauvages et d’un jardin d’ornement. Ce cadre témoigne de plusieurs siècles de patrimoine néerlandais – les archives mentionnent l’Erve Besselink dès 1382 – tandis que la résidence principale, édifiée en 1800, a été entièrement repensée et rénovée en 2011 pour répondre aux standards contemporains les plus exigeants.

À l’intérieur, la demeure marie le caractère historique noble à des matériaux actuels. Pierre travertin Vieux de Bourgogne, chêne huilé, élégants tissus de lin aux murs et parquets restaurés avec soin s’allient à des prestations modernes telles que climatisation, chauffage au sol et panneaux solaires. Les trois chambres comprennent une suite parentale sereine avec double douche à effet pluie, baignoire îlot et dressing avec portes en bois flammé. Les espaces de vie sont ouverts et lumineux, agrémentés de portes coulissantes reliant salles de musique, jardins et terrasses exposées à la lumière naturelle et à la vue sur la rivière.

La grange polyvalente du domaine peut accueillir un atelier privé, un espace professionnel ou une dépendance pour invités, tout en conservant les poutres d’origine et des matériaux récupérés. À côté de la cuisine, une terrasse ensoleillée surplombe vergers et massifs dessinés avec soin, tandis qu’une serre et un potager sur place permettent l’autosuffisance. Un hangar classique sert au stationnement des véhicules et sur la propriété, de nombreux emplacements assurent discrétion et aisance.

Au-delà du domaine, Almen propose un paysage poétique, des avenues majestueuses, des églises anciennes et un accès aisé à Zutphen et à la Randstad. Les rives de la Berkel invitent à la promenade, au canoë et à la contemplation champêtre. Protégé par la Loi sur la Beauté Naturelle de 1928, ce domaine d’Almen allie provenance, paysages et savoir-faire intemporel, offrant un niveau de confidentialité rare et une perspective privilégiée.

Découvrez Almen avec Baerz, votre conseiller et chasseur immobilier personnel de confiance

L’immobilier de prestige d’Almen requiert une expertise locale raffinée et un solide réseau. Les conseils avisés permettent d’accéder à des biens confidentiels, de mener les négociations en toute discrétion et d’assurer chaque étape du processus. Leur connaissance du contexte local garantit un accompagnement fluide et haut de gamme.

Évitez les pièges courants

Les acheteurs internationaux perdent souvent un temps précieux à naviguer entre des annonces en ligne dupliquées, obsolètes ou trompeuses, d’autant que près de 30% des propriétés de luxe ne sont jamais mises sur le marché.
Les agents du vendeur représentent les intérêts du vendeur, pas les vôtres, et une simple demande d’information peut entraîner votre inscription comme “client” auprès d’une agence sans votre consentement.
Avec Baerz Property Finders & Advisors, vous évitez totalement ces écueils.
Nous agissons exclusivement en votre nom, en vous offrant une représentation indépendante, des conseils transparents et un accès à toutes les propriétés disponibles, y compris les opportunités privées et off-market que les autres ne voient jamais.

Curieux de savoir comment obtenir votre propre Conseiller Immobilier Personnel ? Contactez-nous pour découvrir comment nous pouvons défendre vos intérêts et vous ouvrir l’accès à l’ensemble du marché.

Caractéristiques

Panneaux solaires
Climatisation
Transfert de propriété
Prix demandé
€ 2.445.000 v.o.n.
Statut
beschikbaar
Acceptation
in overleg
Construction
Type de maison
Landgoed
Type de bâtiment
vrijstaande woning
Période de construction
1890
Classe énergétique
C
Type de toit
samengesteld dak
Chambres
3
Salles de bains
2
Surfaces et volumes
Surface habitable
438 m2
Autre espace intérieur
253 m2
Espace de stockage externe
94 m2
Volume en mètres cubes
2564 m3
Superficie du terrain
70635 m2
Équipements
Buitenzonwering
Airconditioning
Rookkanaal
Dakraam
Zonnepanelen
Aan rustige weg
Vrij uitzicht
Buiten bebouwde kom
Aan vaarwater
Landelijk gelegen
Baerz & Co Property Brochure

Brochure

Vidéos

Panoramas 360

360°
360 Panorama - Lage Lochemseweg 31 a
360°
360 Panorama - Lage Lochemseweg 31 a
360°
360 Panorama - Lage Lochemseweg 31 a
360°
360 Panorama - Lage Lochemseweg 31 a
360°
360 Panorama - Lage Lochemseweg 31 a
360°
360 Panorama - Lage Lochemseweg 31 a
360°
360 Panorama - Lage Lochemseweg 31 a
360°
360 Panorama - Lage Lochemseweg 31 a

de Haan Schippers Makelaars

Larenseweg 53
7241 CM Lochem

dehaan@dehaanschippers.nl
+31 573 25 82 58

www.dehaanschippers.nl

Demande d'information / de visite

Jenne de Haan profile image
Jenne de Haan
Real Estate Agent