VENLO
Negen-novemberweg 27 - 5916 LD
Países Bajos

Don Willems profile image
Don Willems
Makelaar
€839,000 k.k.
Área de estar
227m2
Tamaño del terreno
754m2
Dormitorios
6

Descripción

Esta casa de campo en Venlo redefine la vida sostenible, fusionando un diseño vanguardista con serenidad. Al acceder a los 227 m² interiores, el enfoque principal, casa de campo Venlo, se plasma en una comodidad sobria y preparada para el futuro. La vivienda ostenta una etiqueta energética A++, respaldada por 16 paneles solares, una bomba de calor híbrida y un aislamiento integral, lo que se traduce en eficiencia y facilidad con costes energéticos de solo 160 € al mes.

El amplio espacio principal, de 62 m², está bañado por la luz de una ventana salediza y cuenta con chimenea, ventana de techo y puertas correderas que se abren directamente a un jardín paisajístico y privado sobre una parcela de 754 m². La cocina adyacente y el lavadero añaden lujo funcional, mientras que los toldos automáticos contribuyen a un ambiente agradable. Prácticamente toda la planta baja dispone de calefacción y refrigeración por suelo radiante. La suite principal en este nivel, de 16 m², se complementa con baño privado, garantizando privacidad y accesibilidad.

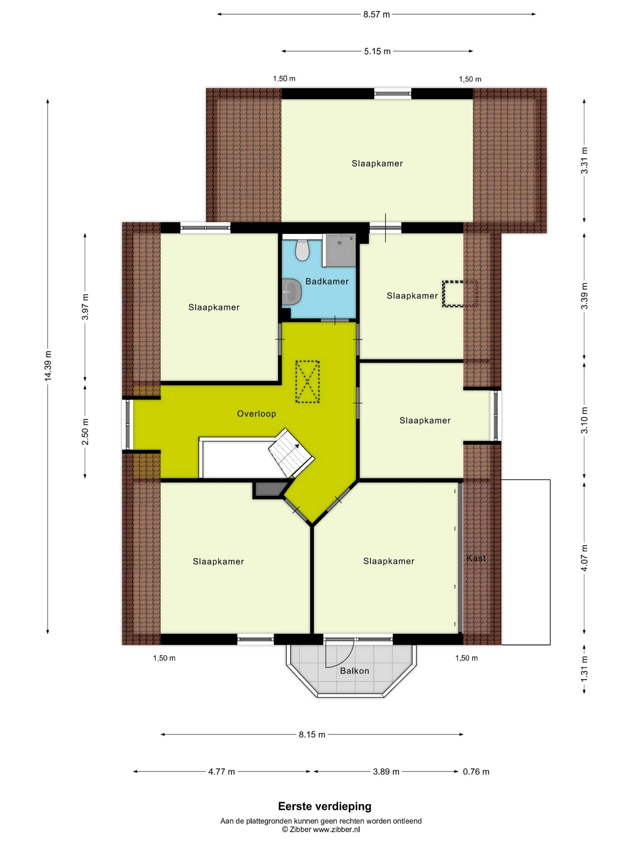
Cinco dormitorios adicionales y un segundo baño se distribuyen en la primera planta; una de las habitaciones da acceso a un posible área de bienestar y otra abre sus puertas a un balcón. Un sótano, una buhardilla y un garaje de 21 m² climatizado, con puerta seccional y acceso al jardín, ofrecen almacenamiento y funcionalidad versátiles. Fuera, varias zonas de estar entre árboles maduros y parterres crean un enclave de calma y verde ideal para la vida familiar tranquila o las reuniones al aire libre.

Situada en una tranquila zona fronteriza entre Países Bajos y Alemania y cerca de la reserva natural Groote Heide, a pocos pasos de instalaciones deportivas, esta propiedad combina conexión y desconexión. A solo diez minutos del centro de Venlo y de las principales rutas hacia Eindhoven y Alemania, la residencia está pensada para quienes valoran la paz y la accesibilidad. Una oportunidad poco frecuente para quienes buscan una casa de campo espaciosa, sostenible y cómoda en Venlo.

Explora Venlo con Baerz, tu asesor y buscador personal de propiedades de confianza

En operaciones premium, es esencial conocer el inventario, la normativa urbanística y los futuros desarrollos. Los asesores aportan acceso exclusivo a inmuebles no publicados y negociaciones discretas, anticipando tendencias y asegurando las mejores viviendas o condiciones de inversión.

Evite errores comunes

Los compradores internacionales a menudo desperdician tiempo valioso navegando por anuncios duplicados, desactualizados o engañosos, especialmente porque casi el 30% de las propiedades de lujo nunca aparecen en el mercado.
Los agentes del vendedor representan los intereses del vendedor, no los suyos, y simplemente solicitar información sobre una propiedad puede hacer que las agencias lo registren como su “cliente” sin su consentimiento.
Con Baerz Property Finders & Advisors, evita completamente estos problemas.
Actuamos únicamente en su nombre, ofreciendo representación independiente, orientación transparente y acceso a todas las propiedades disponibles, incluidas oportunidades privadas y fuera de mercado que otros nunca ven.

¿Le gustaría saber cómo asegurar su propio Asesor Personal de Propiedades? Contáctenos para descubrir cómo podemos representar sus intereses y abrirle el mercado completo.

Características

Paneles solares
Alarm system
Transferencia de propiedad
Precio de Venta
€ 839.000 k.k.
Estado
verkocht onder voorbehoud
Aceptación
in overleg
Construcción
Tipo de casa
Landhuis
Tipo de edificio
vrijstaande woning
Período de construcción
1989
Calificación energética
A++
Tipo de techo
zadeldak
Dormitorios
6
Baños
2
Superficies y Volumen
Área de estar
227 m2
Otro espacio interior
70 m2
Espacio exterior adjunto al edificio
8 m2
Volumen en metros cúbicos
1100 m3
Tamaño del terreno
754 m2
Instalaciones
Mechanische ventilatie
Alarminstallatie
Tv kabel
Buitenzonwering
Schuifpui
Dakraam
Zonnepanelen
Aan bosrand
In woonwijk
Baerz & Co Property Brochure

Folleto

Vídeos

Planos

VeTeBe

Grotestraat 84a
5931 CX Tegelen

info@vetebe.nl
+31 77 3262600

www.vetebe.nl

Solicitud de información / Visita

Don Willems profile image
Don Willems
Makelaar