STAVOREN
Koeweg 42 - 8715 EN
Países Bajos

Ellen Schoneveld profile image
Ellen Schoneveld
Real Estate Agent
€875,000 k.k.
Área de estar
245m2
Tamaño del terreno
3265m2
Dormitorios
5

Descripción

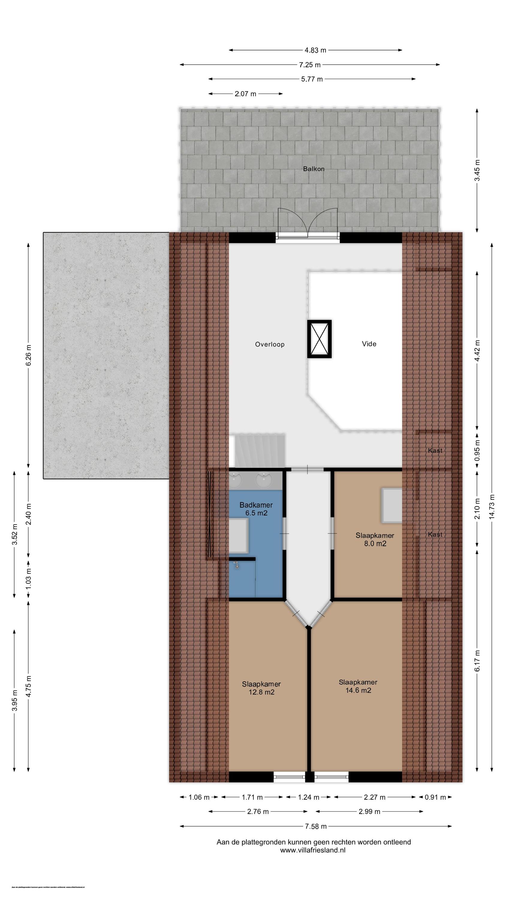
Villa Stavoren ofrece una perspectiva cautivadora de la vida en el norte de los Países Bajos. Esta villa, situada en una parcela vallada de 3.265 m² junto al IJsselmeer y adyacente a un puerto deportivo, armoniza privacidad, un entorno verde y acceso directo a las vías navegables abiertas de Frisia. El interior de 245 m², completamente renovado, destaca por su calidad duradera, con cuatro dormitorios, dos baños y una cocina de lujo con despensa. Cada rincón de la vivienda, bañado por la luz de grandes ventanales y una entreplanta, está orientado para disfrutar del sosiego del entorno y de los cambiantes cielos frisones. Una estufa de leña, suelos cálidos de madera con calefacción por suelo radiante, y la transición natural a la veranda y la terraza refuerzan la sensación de confort y privacidad.

Adaptada para la vida multigeneracional, la planta baja alberga una amplia suite principal con vestidor y baño privado. En la planta superior, tres dormitorios adicionales se complementan con un espacioso baño y una terraza solárium, que brinda una perspectiva privada para contemplar los amaneceres y atardeceres sobre las aguas bordeadas de juncos.

La casa de invitados, construida recientemente y totalmente aislada, puede destinarse a estudio o despacho en casa, e incluye cocina americana, baño y amplios ventanales orientados al suroeste que ofrecen impresionantes vistas panorámicas de la naturaleza. El garaje doble cuenta con taller, instalaciones y una planta superior para almacenamiento flexible o actividades creativas; el espacio de aparcamiento para unos nueve vehículos completa la oferta.

El jardín, de diseño arquitectónico y mantenido por un robot cortacésped, presenta una vegetación lúdica: frutales, setos y canales. Un acceso pavimentado y el portón de entrada anuncian la discreta elegancia de la propiedad. Tanto la casa principal como la de invitados disponen de terrazas orientadas al sol, prolongando la vida al exterior desde la primavera hasta el atardecer. La villa incorpora marcos de ventanas de PVC con mosquiteras, internet de fibra óptica de alta velocidad y está situada cerca del histórico pueblo de Stavoren y la célebre ruta Elfstedentocht. Los servicios locales, el entorno natural y los enlaces directos a los centros regionales permiten un estilo de vida apacible y dinámico junto al agua.

Para quienes buscan una villa de lujo en venta en Stavoren que combine elegantemente privacidad, vistas panorámicas y una arquitectura atemporal, esta propiedad ofrece valor perdurable y una auténtica sensación de pertenencia.

Explora Stavoren con Baerz, tu asesor y buscador personal de propiedades de confianza

Operaciones Discretas GuiadasEl mercado se caracteriza por la escasez y la preferencia por transacciones privadas. Asesores dedicados aportan valor exclusivo al abrir el acceso a propiedades únicas, guiar las negociaciones con redes locales y asegurar privacidad, liquidez y solidez patrimonial a largo plazo.

Evite errores comunes

Los compradores internacionales a menudo desperdician tiempo valioso navegando por anuncios duplicados, desactualizados o engañosos, especialmente porque casi el 30% de las propiedades de lujo nunca aparecen en el mercado.
Los agentes del vendedor representan los intereses del vendedor, no los suyos, y simplemente solicitar información sobre una propiedad puede hacer que las agencias lo registren como su “cliente” sin su consentimiento.
Con Baerz Property Finders & Advisors, evita completamente estos problemas.
Actuamos únicamente en su nombre, ofreciendo representación independiente, orientación transparente y acceso a todas las propiedades disponibles, incluidas oportunidades privadas y fuera de mercado que otros nunca ven.

¿Le gustaría saber cómo asegurar su propio Asesor Personal de Propiedades? Contáctenos para descubrir cómo podemos representar sus intereses y abrirle el mercado completo.

Características

Transferencia de propiedad
Precio de Venta
€ 875.000 k.k.
Estado
beschikbaar
Aceptación
in overleg
Construcción
Tipo de casa
Villa
Tipo de edificio
vrijstaande woning
Período de construcción
1978
Calificación energética
C
Tipo de techo
zadeldak
Dormitorios
5
Baños
3
Superficies y Volumen
Área de estar
245 m2
Otro espacio interior
0 m2
Espacio exterior adjunto al edificio
66 m2
Espacio de almacenamiento externo
73 m2
Volumen en metros cúbicos
1011 m3
Tamaño del terreno
3265 m2
Instalaciones
Tv kabel
Rookkanaal
Dakraam
Glasvezel kabel
Natuurlijke ventilatie
Aan water
Aan rustige weg
Vrij uitzicht
Beschutte ligging
Buiten bebouwde kom
Aan vaarwater
In bosrijke omgeving
Landelijk gelegen
Baerz & Co Property Brochure

Folleto

Vídeos

Villa Friesland Makelaardij

Lange Marktstraat 1
8911 AD Leeuwarden

info@villafriesland.nl
+31 (0)58 - 23 006 23

www.villafriesland.nl

Solicitud de información / Visita

Ellen Schoneveld profile image
Ellen Schoneveld
Real Estate Agent