AMSTERDAM
Govert Flinckstraat 264 H - 1073 CE
Países Bajos

Eran Hausel profile image
Eran Hausel
Real estate agent
€1,100,000 k.k.
Área de estar
175m2
Tamaño del terreno
108m2
Dormitorios
5

Descripción

El apartamento Amsterdam se sitúa en la Govert Flinckstraat, en el vibrante barrio De Pijp, y ofrece una rara composición de dos residencias independientes, cada una con entrada y número de casa propios. Esta propiedad versátil, que abarca 175 m² distribuidos en cuatro plantas, presenta un gran potencial tanto para familias como para inversores interesados en el centro de Ámsterdam con carácter genuino. Su condición de propiedad plena e indivisa permite flexibilidad de adaptación: desde crear una espaciosa vivienda familiar hasta transformarla en dos apartamentos, de acuerdo con los permisos correspondientes.

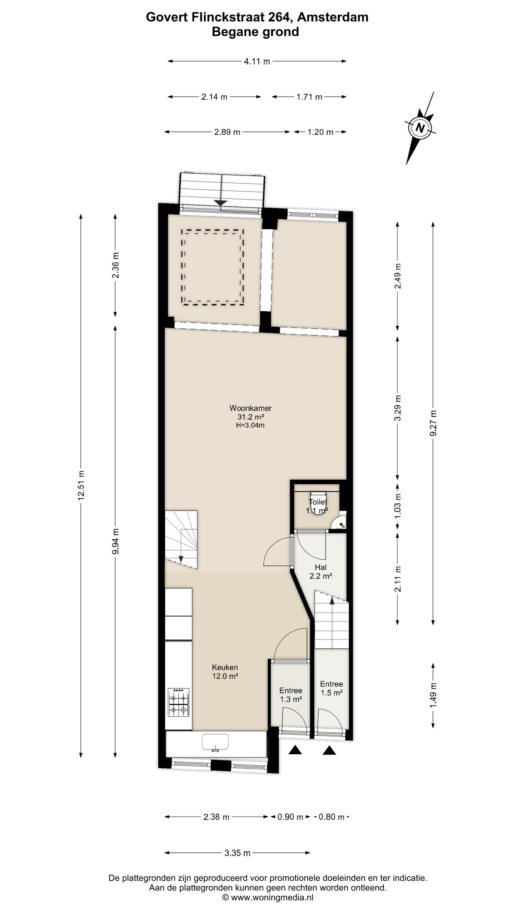
En la planta baja, una amplia zona de estar se realza gracias a una altura de techo de más de tres metros, claraboya y puertas francesas que se abren a un jardín orientado al sur de aproximadamente 49 m². La cocina abierta al frente enmarca vistas a la calle e incluye electrodomésticos como un grifo Howat 3-en-1 de agua hirviendo, placa de cinco fuegos y amplias soluciones de almacenamiento. La primera planta alberga tres dormitorios, un baño completo con bañera y ducha a ras de suelo, además de una zona de lavandería independiente.

La segunda planta es autónoma y se accede por una entrada privada, con espacios de salón y comedor diseñados para maximizar la luz. Una cocina independiente y una estancia dedicada como despacho u oficina completan este nivel. La tercera planta, reconocible por su singular estructura de tejado, ventanas de buhardilla y tragaluces, acoge dos dormitorios espaciosos y un baño, con el principal ofreciendo acceso a un balcón orientado al sur de aproximadamente 5 m².

Situado a pocos pasos del Mercado Albert Cuyp y del Sarphatipark, rodeado de cafés, boutiques y servicios diarios, el apartamento ofrece acceso inmediato al ritmo cultural y gastronómico de Ámsterdam. Conexiones de transporte clave, desde el metro Noord/Zuid hasta tranvías y autobuses, están a corta distancia; el aeropuerto de Schiphol se alcanza en 15 minutos en coche. Clase energética D, calefacción central y la opción de dos permisos de estacionamiento complementan la vida contemporánea. El apartamento promete una base discreta en un entorno urbano dinámico.

Explora Ámsterdam con Baerz, tu asesor y buscador personal de propiedades de confianza

Navegar en el mercado de lujo de Ámsterdam exige un profundo conocimiento local, discreción y habilidad negociadora. Los mejores asesores ofrecen acceso a listados privados, aclaran las complejidades legales y detectan oportunidades en un contexto donde rara vez afloran al público. Los equipos consultores realizan auditorías exhaustivas y representación personalizada, fortaleciendo su posición en negociaciones, garantizando transacciones impecables y protegiendo su privacidad en cada etapa.

Evite errores comunes

Los compradores internacionales a menudo desperdician tiempo valioso navegando por anuncios duplicados, desactualizados o engañosos, especialmente porque casi el 30% de las propiedades de lujo nunca aparecen en el mercado.
Los agentes del vendedor representan los intereses del vendedor, no los suyos, y simplemente solicitar información sobre una propiedad puede hacer que las agencias lo registren como su “cliente” sin su consentimiento.
Con Baerz Property Finders & Advisors, evita completamente estos problemas.
Actuamos únicamente en su nombre, ofreciendo representación independiente, orientación transparente y acceso a todas las propiedades disponibles, incluidas oportunidades privadas y fuera de mercado que otros nunca ven.

¿Le gustaría saber cómo asegurar su propio Asesor Personal de Propiedades? Contáctenos para descubrir cómo podemos representar sus intereses y abrirle el mercado completo.

Características

Transferencia de propiedad
Precio de Venta
€ 1.100.000 k.k.
Estado
verkocht onder voorbehoud
Aceptación
in overleg
Construcción
Tipo de casa
Eengezinswoning
Tipo de edificio
tussenwoning
Período de construcción
1885
Calificación energética
D
Tipo de techo
mansarde dak
Dormitorios
5
Baños
2
Superficies y Volumen
Área de estar
175 m2
Otro espacio interior
0 m2
Espacio exterior adjunto al edificio
5 m2
Volumen en metros cúbicos
611 m3
Tamaño del terreno
108 m2
Instalaciones
Tv kabel
Natuurlijke ventilatie
In centrum
In woonwijk
Baerz & Co Property Brochure

Folleto

Vídeos

Heeren Makelaars

Stadionweg 75
1077 SE Amsterdam

info@heerenmakelaars.nl
+31 204702255

www.heerenmakelaars.nl

Solicitud de información / Visita

Eran Hausel profile image
Eran Hausel
Real estate agent