VOORHOUT
Jacoba Van Beierenweg 136 a - 2215 KX
Netherlands

Ingrid Wijngaards profile image
Ingrid Wijngaards
Real Estate Agent
€1,175,000 k.k.
Living Area
422m2
Plot Size
726m2
Bedrooms
5

Description

Come home to a large villa with endless possibilities, a place where space, tranquility, nature, and unobstructed views come together.
• 422m² of living space
• Complete privacy and freedom
• With long driveway and private parking spaces
• Double occupancy possible
• Five spacious bedrooms

Built in 1975, living area 422m², plot area 726m², volume 1387m³, storage room 7m²

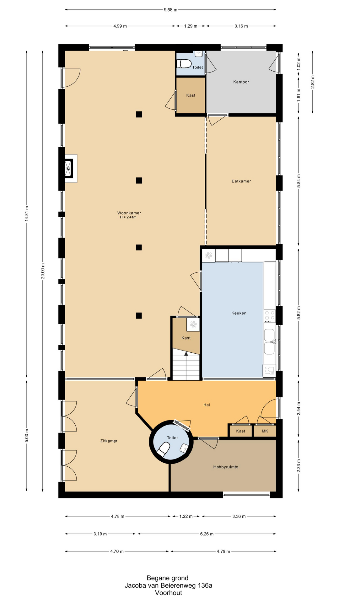
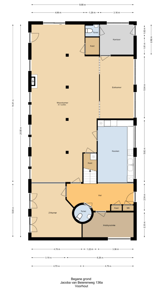
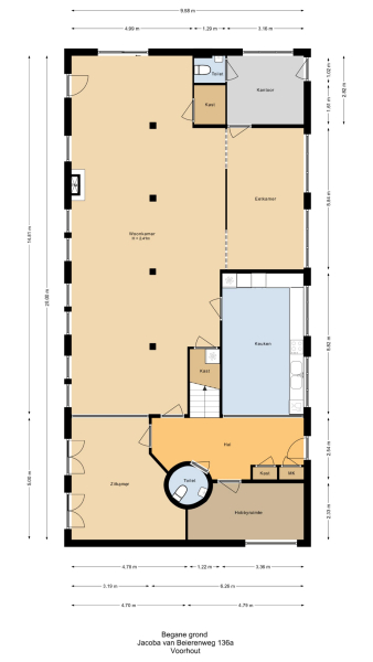
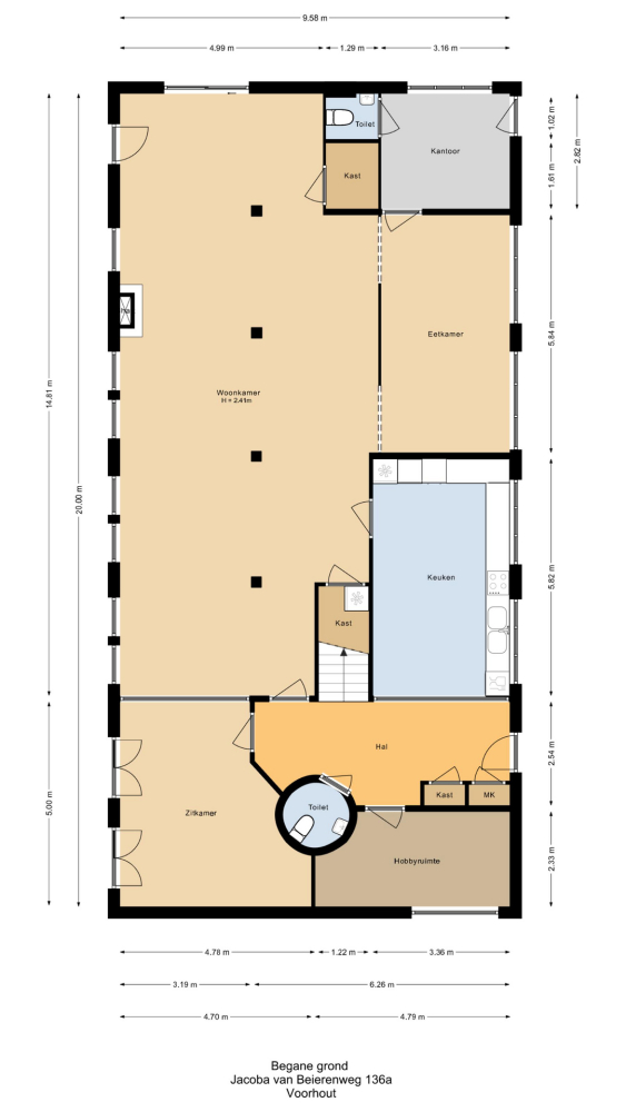
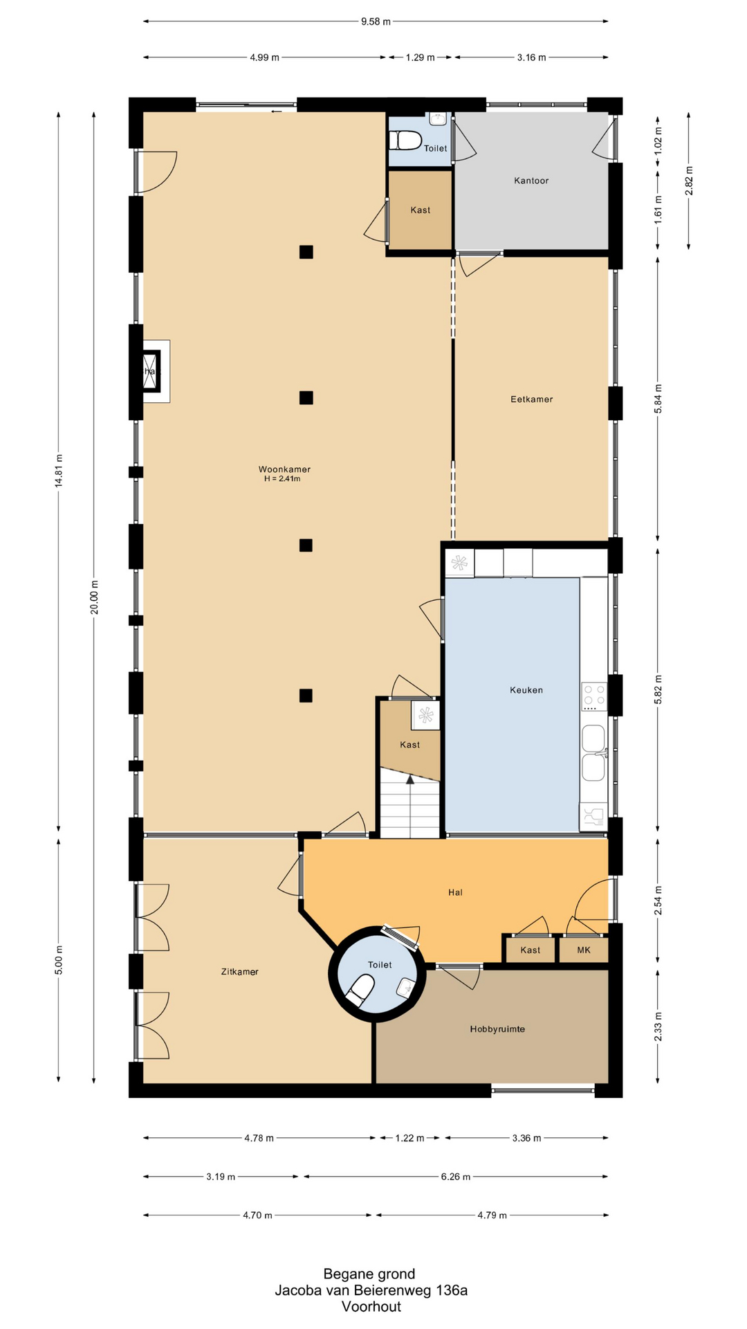
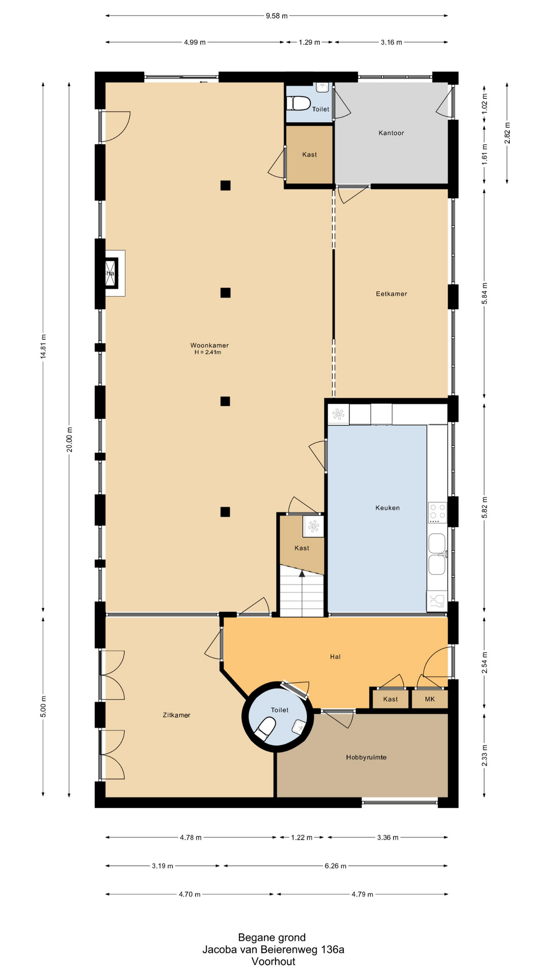
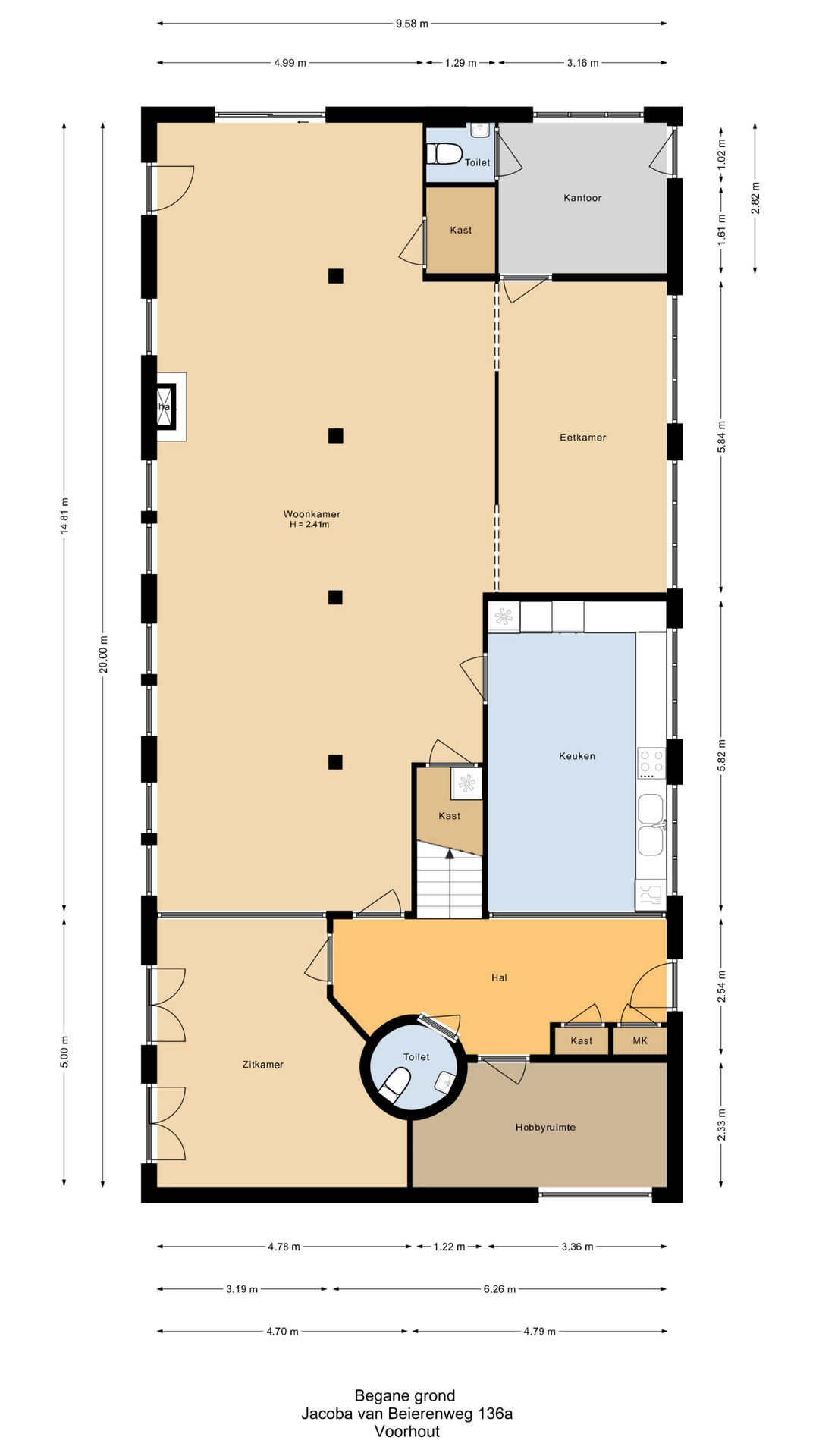
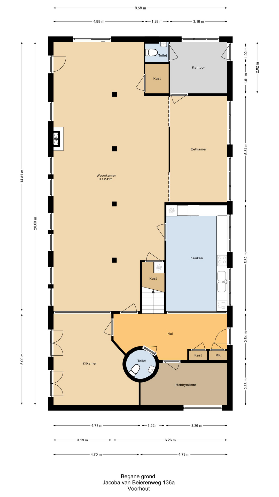
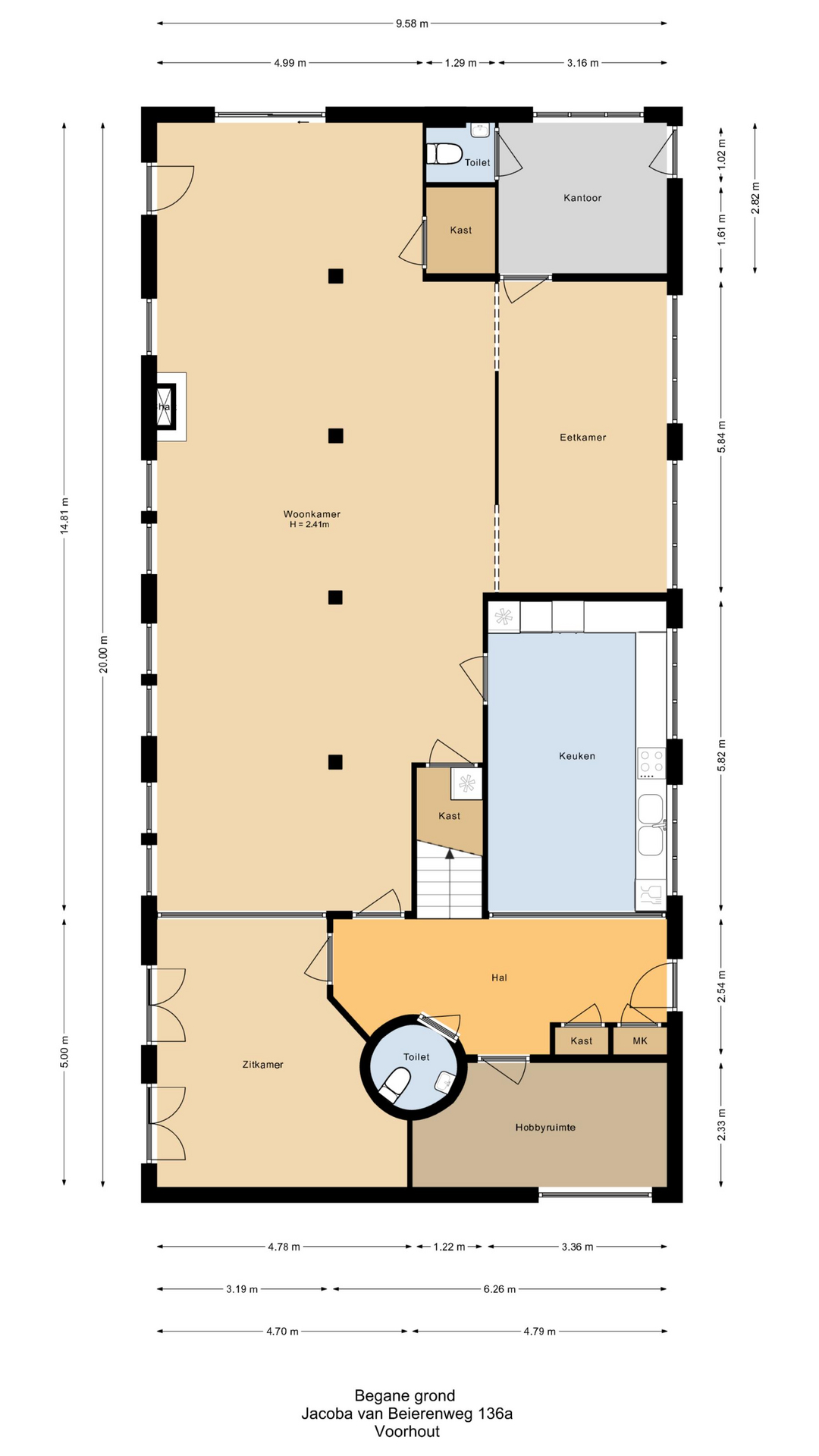
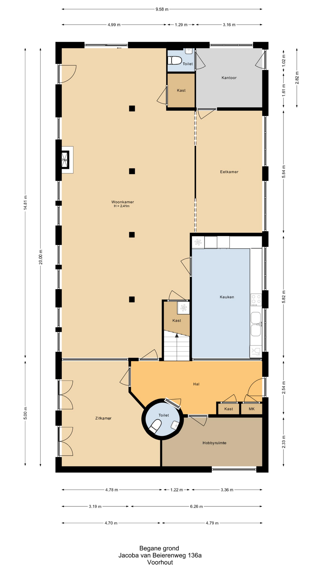
Ground floor;
Upon entering through the spacious entrance hall with cloakroom, toilet, and built-in cupboards, you enter the spacious living room with fireplace and several sitting areas.
Thanks to the large windows, you can enjoy plenty of natural light and a beautiful view.
Adjacent is a separate hobby room and a TV room with a view of the garden. The spacious kitchen is equipped with all necessary appliances. From the kitchen, you have a view of both the courtyard and the meadows.

There is also a separate dining room. At the front and rear of the house are spaces that are ideal for a home office or practice, each with its own entrance. There is also a second toilet here.
The ground floor is finished with attractive parquet flooring and authentic abbey tiles.

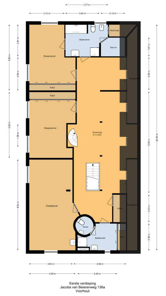
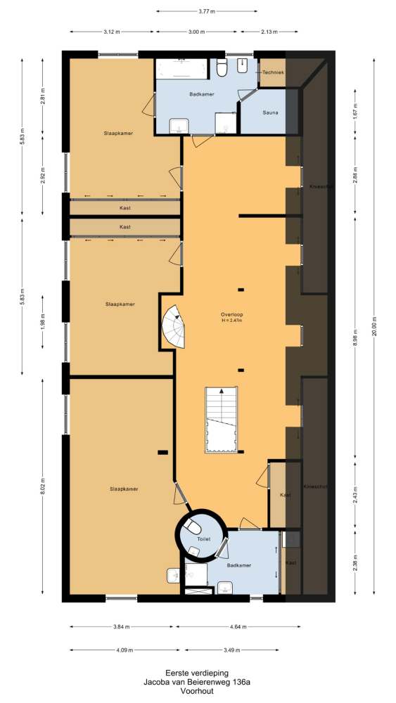
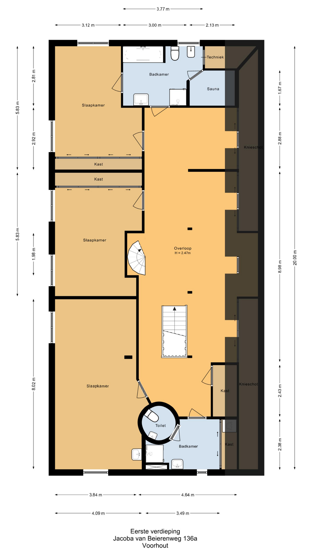
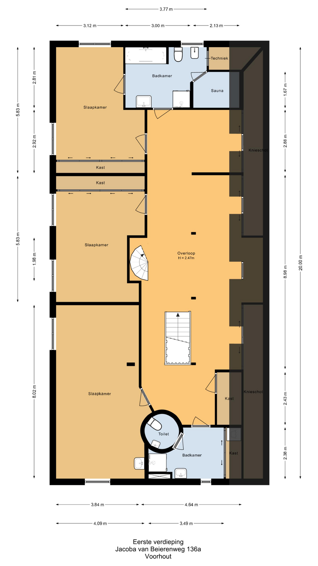
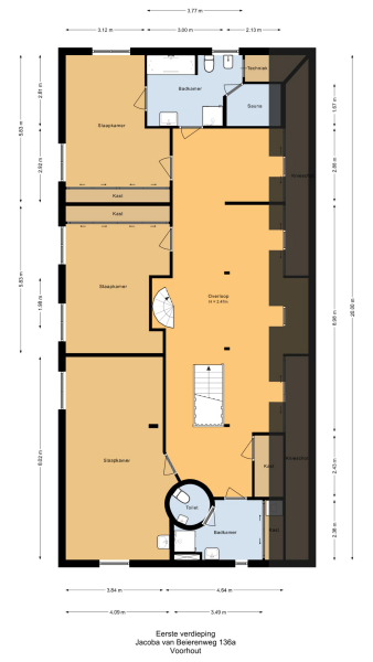
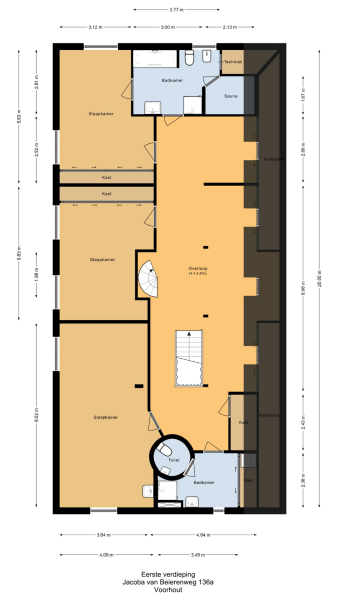
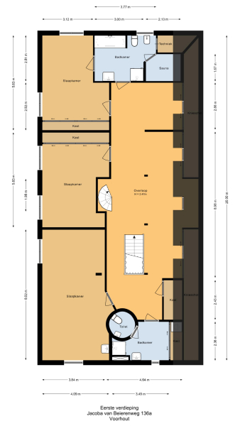
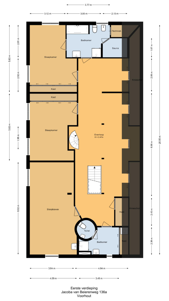
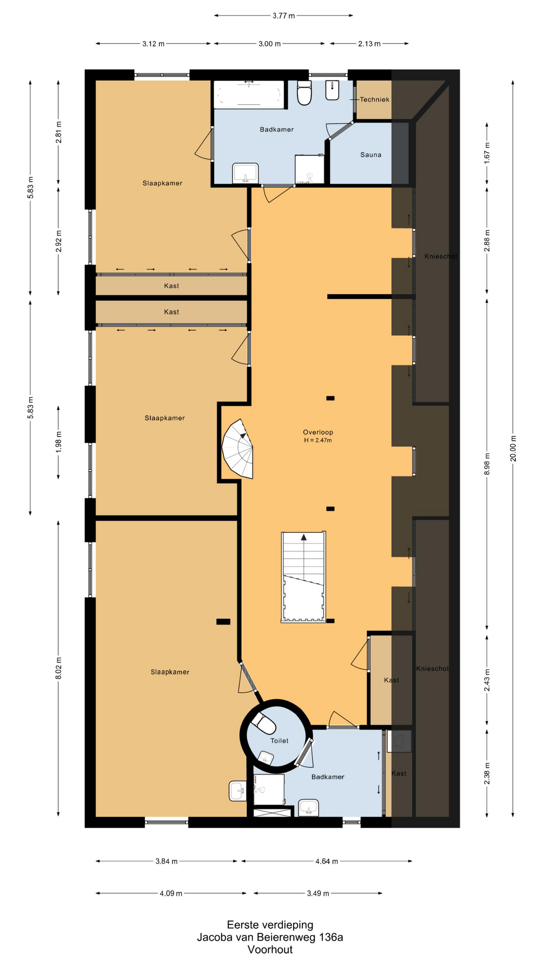
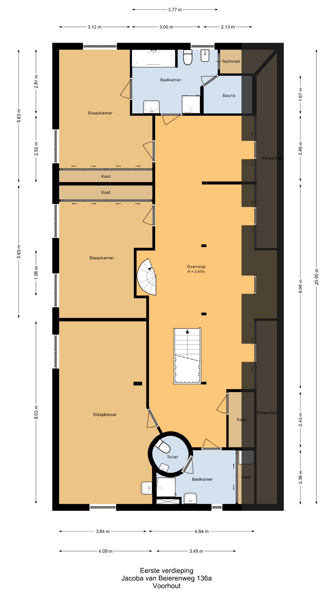
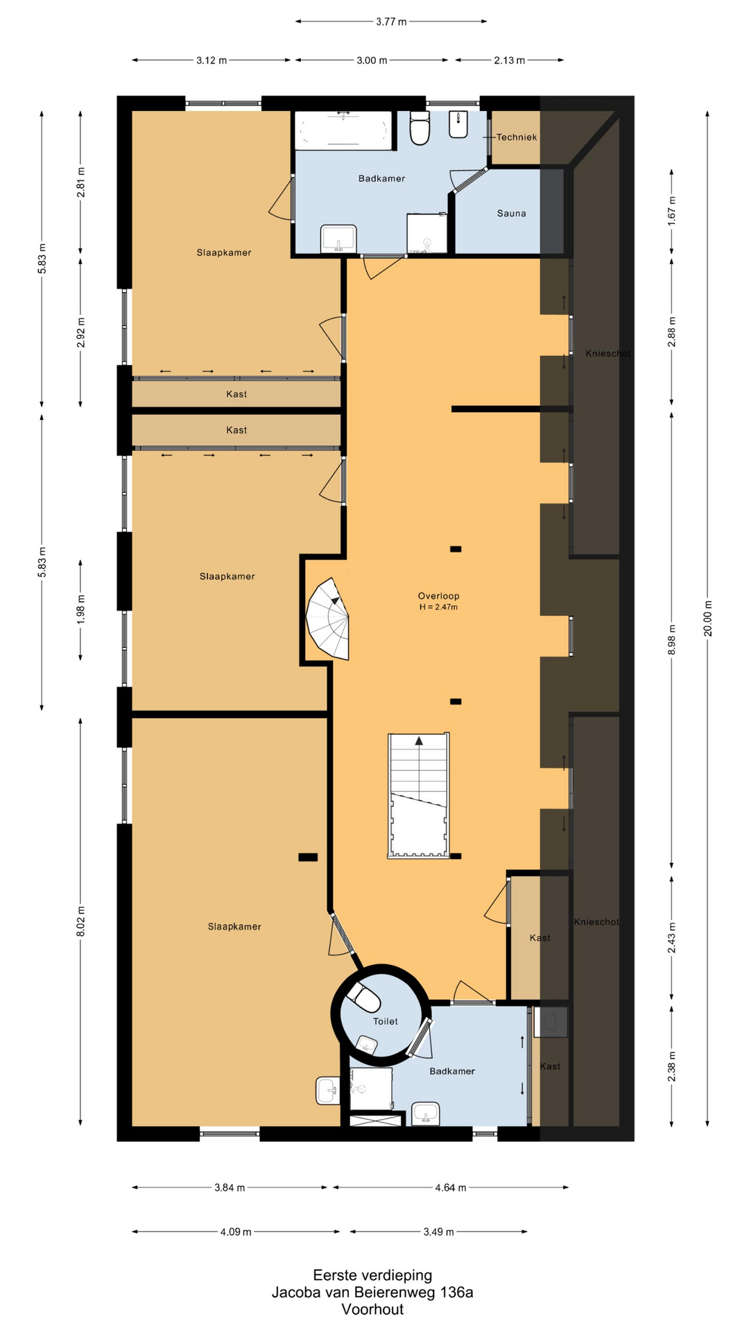
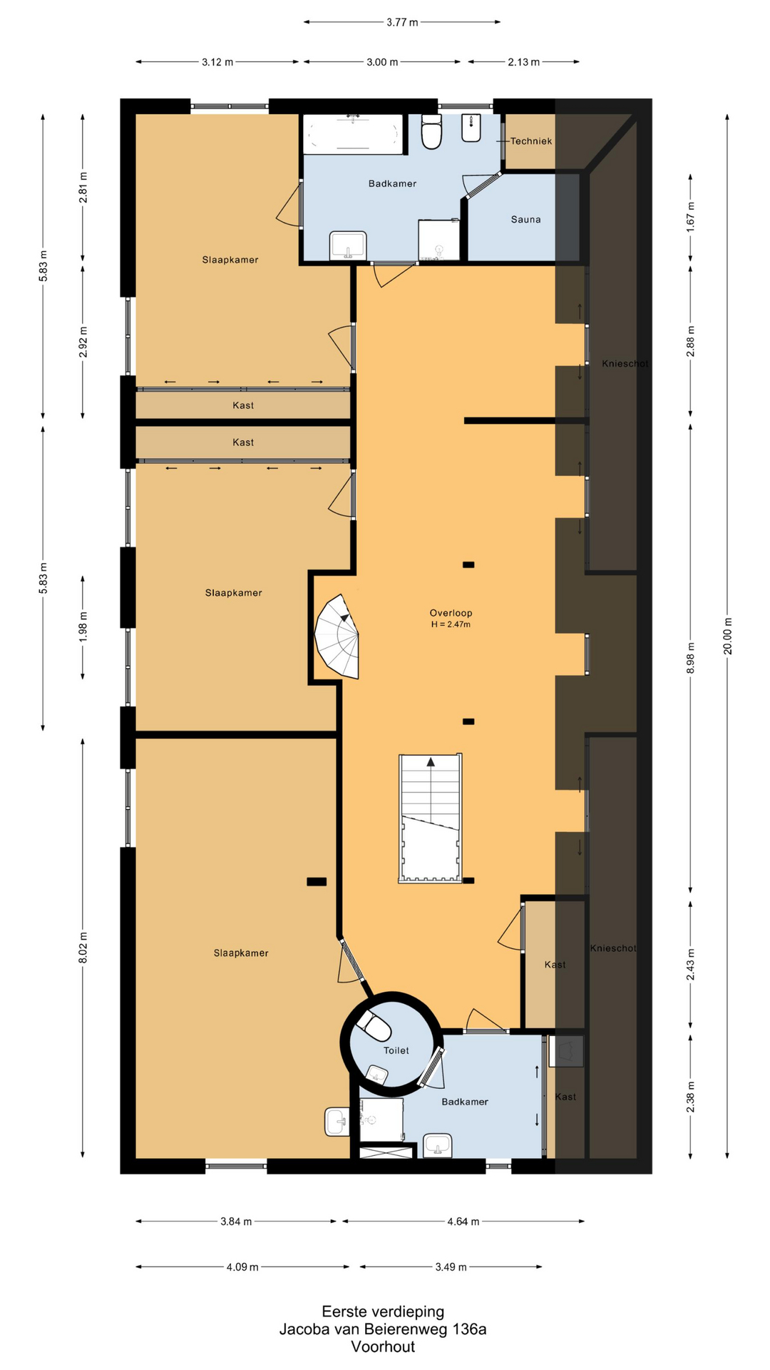
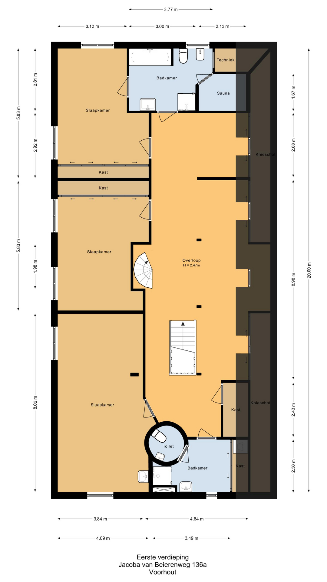
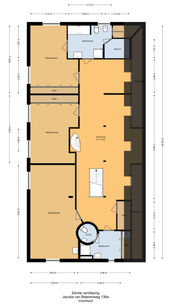
First floor;
The staircase in the hall leads to the spacious landing on the first floor. Here you will find three spacious bedrooms and two bathrooms.
The bathroom at the rear has a small sauna. The second bathroom is equipped with a walk-in shower, connections for washing appliances, and a separate toilet.
The bedrooms are light and spacious, one of which has air conditioning. If desired, the rooms can be divided to create additional bedrooms. The landing also offers space for an extra room or workspace.

2nd floor;
The spiral staircase leads to the second floor. Here are two additional bedrooms, ideal as guest rooms or a home office. There is also plenty of storage space.

Garden;
The house is surrounded by a spacious garden with both sunny and shady spots. Enjoy the peace and privacy here, or organize cozy summer evenings by the brick barbecue. A separate storage room offers space for garden equipment.
Parking is available on site, with space for several cars.

Possibilities:
Thanks to its construction, the house is relatively easy to adapt or renovate. In the past, the property was used partly as a home and partly as an office, making it ideal for dual occupancy or a combination of living and working.

The villa is located in picturesque Voorhout, in the heart of the Bollenstreek region. Here you can enjoy a peaceful and free lifestyle, with beautiful views over the meadows, yet close to all amenities. The village is easily accessible by bike and has a train station in the center.

Special features:
- large living room with lots of light
- secluded but close to the village
- suitable for solar panels
- air conditioning in the bedroom (April 2024)
- possibility for home business
- fiber optic available
- two central heating boilers (2021 + May 2024)
- Sauna available + 4 toilets
- Train station in the center
Call the Wilbrink & v.d. Vlugt office for an appointment and discover the endless possibilities of your new home for yourself. Rick Broekhof will be happy to show you this property!

Features

Air conditioning
Transfer of ownership
Asking Price
€ 1.175.000 k.k.
Status
beschikbaar
Acceptance
in overleg
Construction
Kind of house
Villa
Building type
vrijstaande woning
Construction period
1975
Energy rating
C
Roof type
zadeldak
Bedrooms
5
Bathrooms
2
Surface Areas And Volume
Living Area
422 m2
Other indoor space
0 m2
External storage space
7 m2
Volume in cubic meters
1387 m3
Plot Size
726 m2
Facilities
Mechanische ventilatie
Tv kabel
Airconditioning
Rookkanaal
Sauna
Glasvezel kabel
Natuurlijke ventilatie
Vrij uitzicht
Beschutte ligging
Landelijk gelegen
Baerz & Co Property Brochure

Brochure

Videos

Floor Plans

Landheeren Makelaardij

Kerklaan 37
7311AC Apeldoorn

ingrid@landheeren.nl
+31 555 42 42 01

www.landheeren.nl

Information / Viewing request

Ingrid Wijngaards profile image
Ingrid Wijngaards
Real Estate Agent

Buying a Luxury Property in Voorhout

Voorhout offers a refined community, integrating understated luxury, scenic landscapes, and privileged proximity to key Dutch destinations. Its real estate services and international orientation make it an appealing address for discerning residents.