VEENENDAAL
Kerkewijk 169 - 3904 JC
Netherlands

Wistik Zonnenberg profile image
Wistik Zonnenberg
Register Makelaar Taxateur/ Eigenaar
Price on request
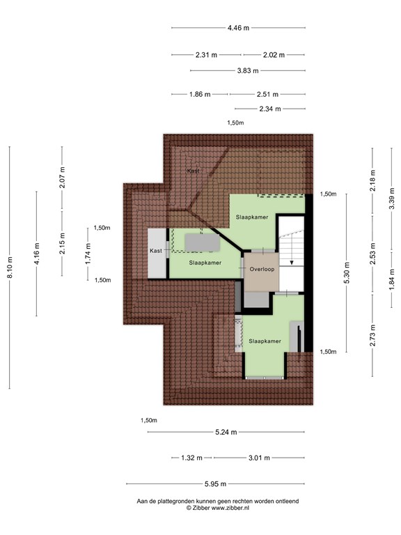
Living Area
169m2
Plot Size
660m2
Bedrooms
6

Description

Semi-detached house Veenendaal presents a rare fusion of spacious family living and local heritage, set along Kerkewijk, one of the town’s most storied avenues. With 169 m² of interior space and six bedrooms across three floors, this 1926 municipal monument honors its interwar roots while embracing modern sustainability. Eleven solar panels, a Nefit Trendline system ready for heat pump integration, and air conditioning throughout indicate a resolute focus on future-proof comfort.

Inside, the rhythm of original terrazzo floors meets contemporary luminosity. The living area features expansive windows and a refined gas fireplace, leading to a dining room poised for gatherings. The kitchen draws on high-specification details including a Miele steam oven and induction cooktop, while an adjacent utility room and cellar ensure practical ease. Upstairs, light and volume continue in well-proportioned bedrooms, designed with storage in mind, while a serene bathroom completes the private spaces.

Outdoors, a southeast-facing garden stretches nearly 45 meters in depth, incorporating multiple terraces, landscaped zones, and a veranda fitted for seasonal living. Original architectural flourishes, including the Ora et Labora relief and the property’s designation as a municipal monument since 2010, anchor the home’s sense of place. The location grants swift access to Veenendaal’s cultural life as well as the forests and meadows of Utrechtse Heuvelrug.

This luxury semi-detached house for sale in Veenendaal offers private driveway parking for three vehicles, insulated construction, and discreet comfort. It balances a deep connection to history with present-day amenities—inviting a pace of life that is both connected and quietly refined.

Explore Veenendaal with Baerz, Your Trusted Personal Property Finder & Advisor

Discerning buyers benefit from tailored guidance when approaching Veenendaal’s nuanced market. Local experts offer privileged access to discreet listings and circle-of-trust opportunities, navigating regulatory details and uncovering homes that rarely reach public markets. Sophisticated negotiation and deep regional insight ensure each transaction aligns with personal and investment objectives, while minimizing surprises.

Special Features

Solar panels
Garage

Features

Transfer of ownership
Price on application
Status
Available
Acceptance
In Concert
Reference
08089
Construction
Kind of house
Single Family House
Building type
Semi Detached House One Roof
Construction period
1926
Energy rating
C
Roof type
front gable
Bedrooms
6
Bathrooms
1
Surface Areas And Volume
Living Area
169 m2
Other indoor space
9 m2
Exterior space attached to the buildinge
29 m2
External storage space
42 m2
Volume in cubic meters
629 m3
Plot Size
660 m2
Facilities
Airco
Cable Tv
Garage
Garden
Internetconnection
Outdoorawnings
Phoneline
Skylight
Solarpanels
Storageroom
Ventilation
Baerz & Co Property Brochure

Brochure

Videos

Floor Plans

Zonnenberg Makelaardij

Kerkewijk 108
3904 JG Veenendaal

info@zonnenbergmakelaardij.nl
+31 318 559600

www.zonnenbergmakelaardij.nl

Information / Viewing request

Wistik Zonnenberg profile image
Wistik Zonnenberg
Register Makelaar Taxateur/ Eigenaar