LEIDEN
Nieuwe Rijn 98 - 2312 JM
Netherlands

Ingrid Wijngaards profile image
Ingrid Wijngaards
Real Estate Agent
€1,350,000 k.k.
Living Area
181m2
Plot Size
136m2
Bedrooms
3

Description

Unique and very charming monumental top-floor apartment with a large roof terrace in the historic heart of Leiden

This beautiful and surprising canal house is situated on the Nieuwe Rijn, in the vibrant heart of Leiden. A unique place to live with plenty of space and character. And all just a stone's throw from everything that makes city living so appealing: charming shops, the weekly market, terraces, restaurants, museums, and theaters.

This classic property (Rijksmonument) offers a living area of ??no less than 181 m² plus a roof terrace of approximately 75 m² and combines historic allure with contemporary comfort. The house is well-maintained and largely equipped with double glazing and roof insulation, ensuring a pleasant living environment year-round. A building inspection report is available.

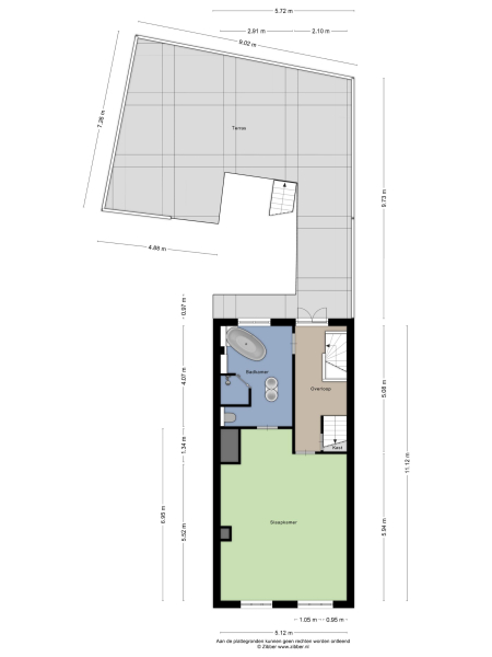
What also makes this property unique is the remarkable combination of a stately, classic façade on the canal side (three windows wide, facing south) and a surprisingly spacious rear garden of over nine meters. On the first floor, at the heart of the house, lies a colorful courtyard garden, and a dozen steps up, a spacious and sunny roof terrace with plenty of privacy and several seating areas.
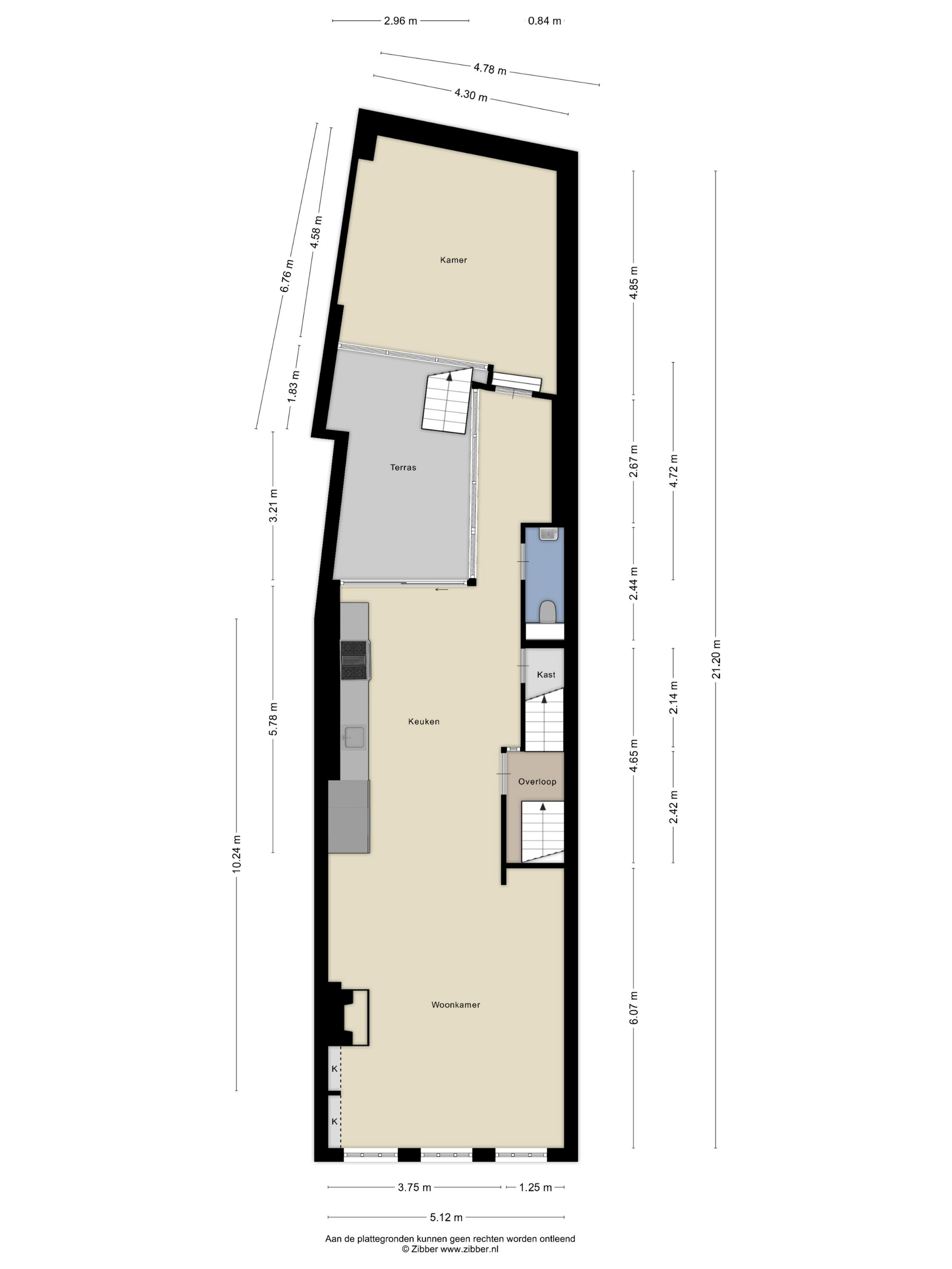
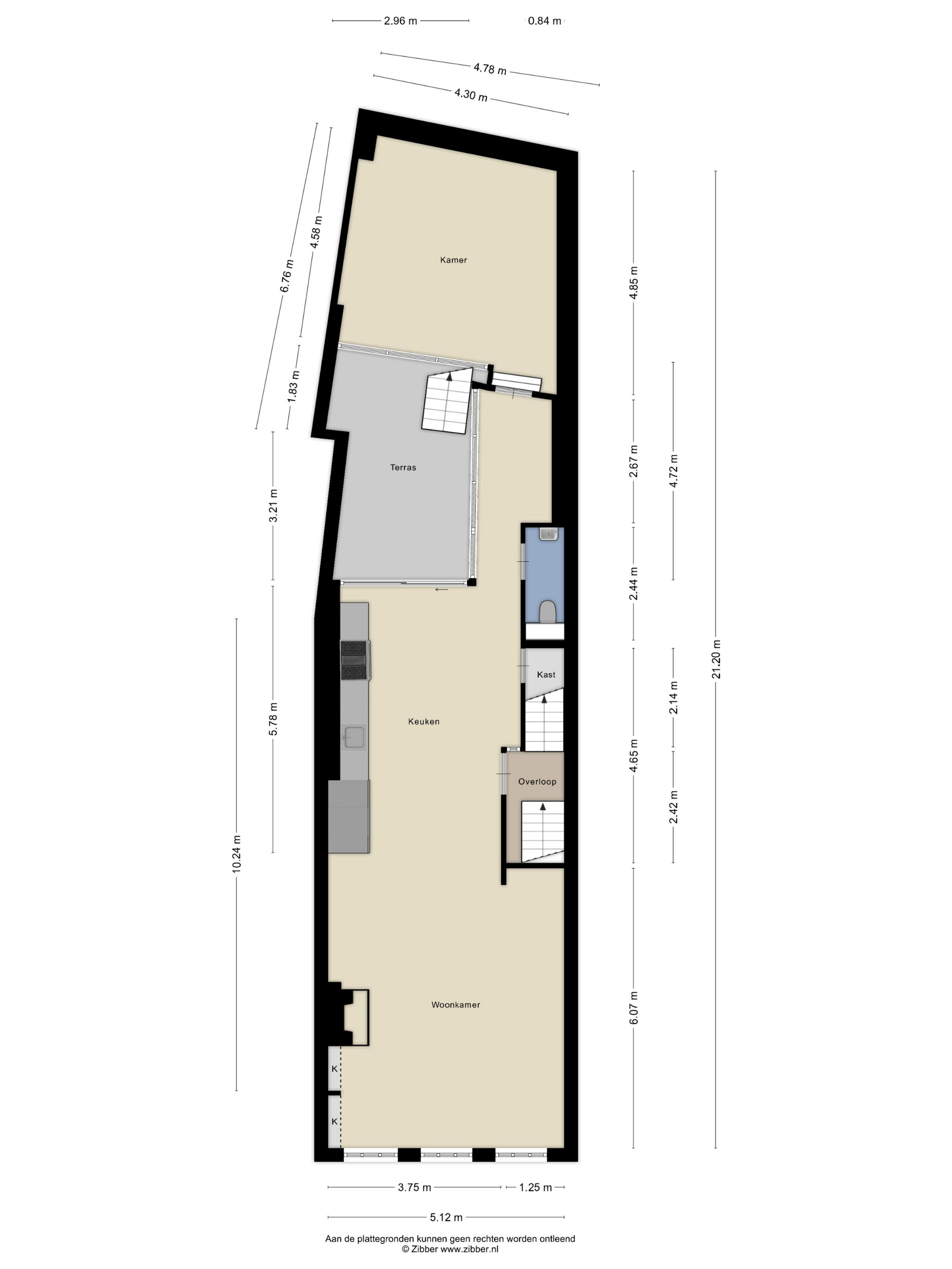
LAYOUT

Ground floor:
Entrance, landing, stairs to the first floor.

First floor:
Charming and bright living room with an inviting fireplace and beautiful canal views. Open to the spacious kitchen/diner, equipped with all the usual appliances. Sliding doors provide access to the green, sheltered courtyard garden; an oasis of tranquility in the heart of the city. Separate toilet with a hand basin. From the landing, access to a second, charming multifunctional (living) room.

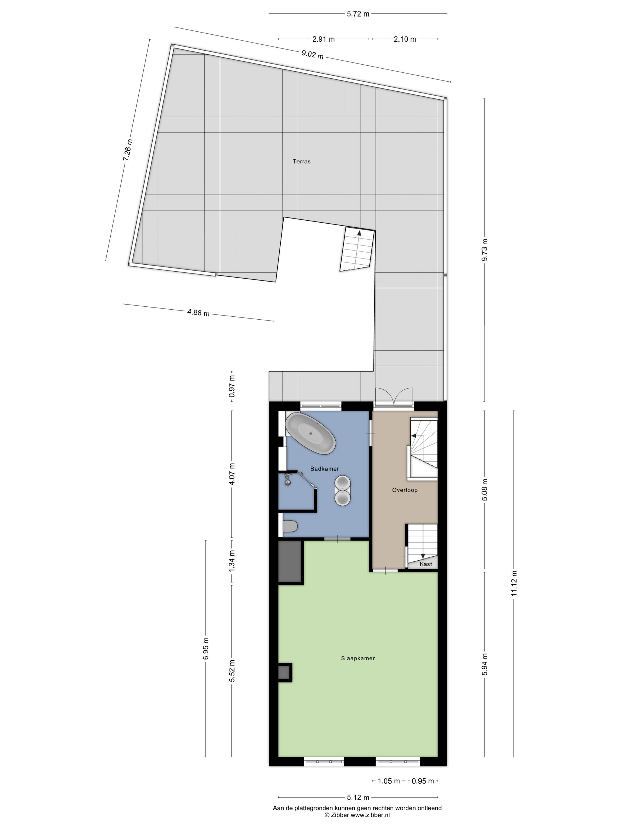
Second floor:
Very spacious master bedroom with en-suite bathroom featuring a bathtub with Jacuzzi, double shower, toilet, and double sink. French doors open onto the large roof terrace, spread over several levels: a sunny and private space with various seating options.

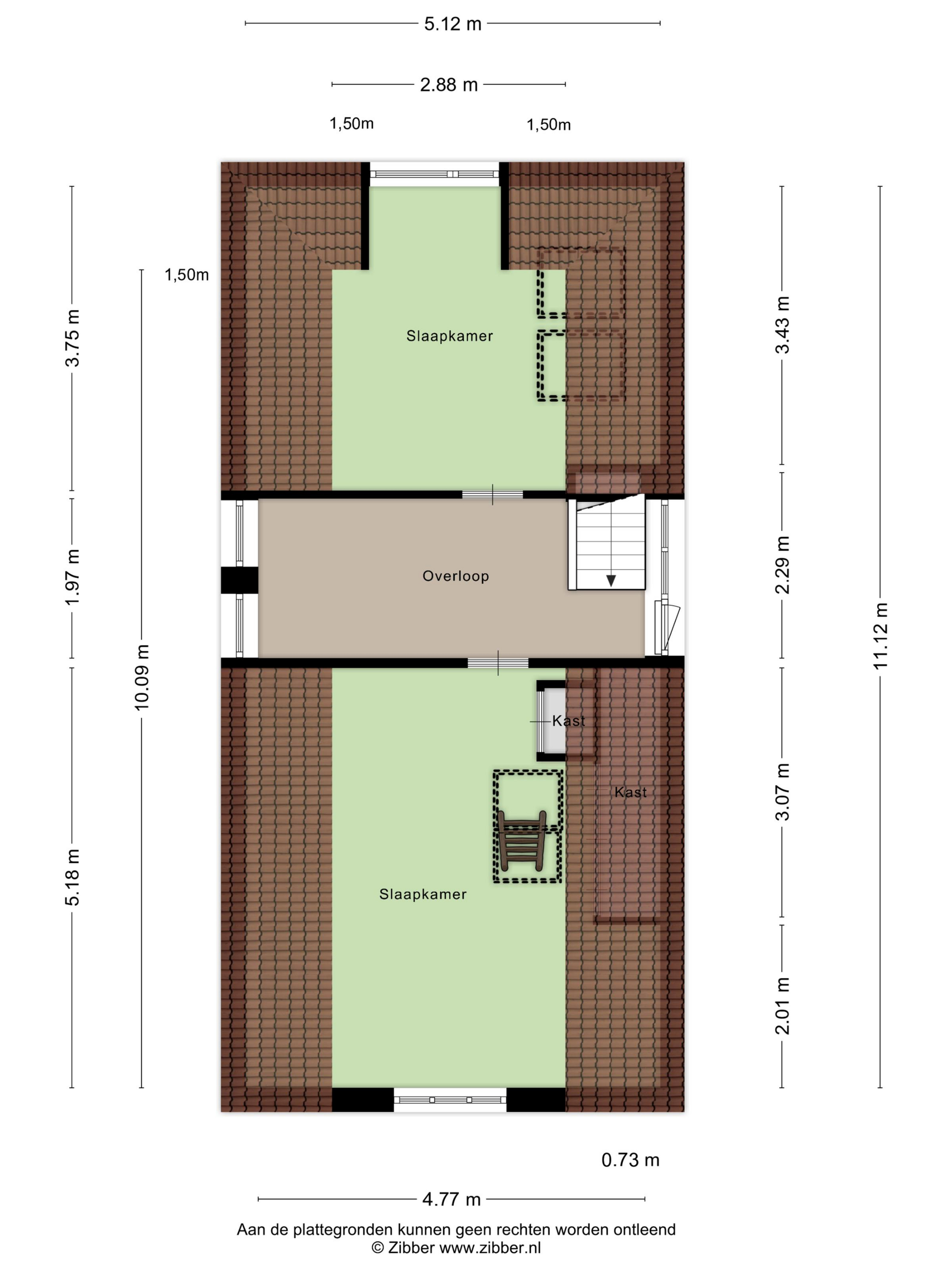
Third floor:
Landing with access to a charming bedroom under the roof at the front, complete with a sleeping loft. At the rear is another spacious bedroom with a dormer window. The landing is large enough to accommodate a second bathroom, if desired.
All in all, an exceptional opportunity for those seeking space, style, and urban vibrancy in one of Leiden's most beautiful locations.

Would you like to view this property or receive more information? Contact us for a personal tour.

Features

Transfer of ownership
Asking Price
€ 1.350.000 k.k.
Status
beschikbaar
Acceptance
in overleg
Construction
Kind of house
Bovenwoning
Building type
dubbel bovenhuis
Construction period
1750
Roof type
samengesteld dak
Bedrooms
3
Bathrooms
1
Surface Areas And Volume
Living Area
181 m2
Other indoor space
0 m2
Exterior space attached to the buildinge
75 m2
Volume in cubic meters
650 m3
Plot Size
136 m2
Facilities
Mechanische ventilatie
Schuifpui
Aan water
In centrum
Vrij uitzicht
Aan vaarwater
Baerz & Co Property Brochure

Brochure

Videos

Floor Plans

Landheeren Makelaardij

Kerklaan 37
7311AC Apeldoorn

ingrid@landheeren.nl
+31 555 42 42 01

www.landheeren.nl

Information / Viewing request

Ingrid Wijngaards profile image
Ingrid Wijngaards
Real Estate Agent

Buying a Luxury Property in Leiden

Leiden offers exceptional heritage, dynamic culture, and curated services, creating an appealing environment for international residents. With refined homes, vibrant academia, and discreet luxury, this canal city delivers a sophisticated lifestyle for a discerning, global community.