HOOFDDORP
Statendam 4 - 2134 WX
Netherlands

Ingrid Wijngaards profile image
Ingrid Wijngaards
Real Estate Agent
€1,690,000 k.k.
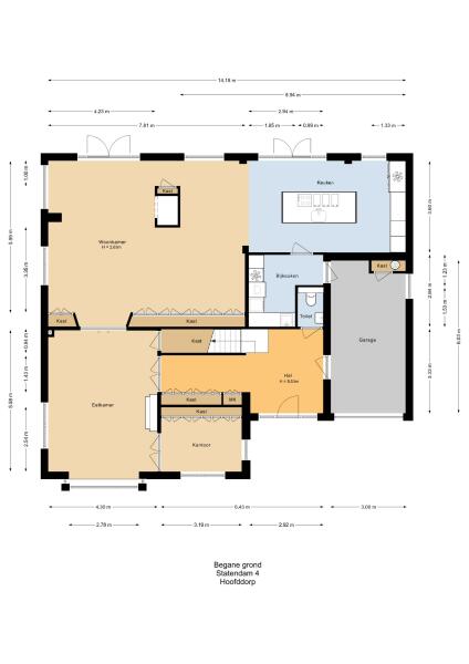
Living Area
306m2
Plot Size
780m2
Bedrooms
6

Description

This detached villa Hoofddorp offers 306 m² of well-conceived living space on a generous 780 m² plot, quietly situated on an island in Den Hout. The property presents a harmonious balance of privacy and accessibility, within easy reach of Schiphol Airport, the Zuidas business district, The Hague, and central Amsterdam. Built in 2003 using traditional methods and enduring materials, the villa stands as a refined family home with six bedrooms and two bathrooms, complemented by a contemporary energy class A rating.

Enter through a private driveway with a double garage, greeted by an inviting front garden. The rear of the house reveals a series of landscaped terraces, a partially covered veranda with patio heating, and a detached, insulated garden shed with running water and heating—ideal for remote work or creative pursuits.

Inside, rooms are generously scaled, filled with light through large windows, and appointed for functional elegance: a SieMatic kitchen with cooking island, a living room warmed by a gas fireplace and built-in storage, and a utility room accessible from both kitchen and garage. The first floor includes four bright bedrooms, access to a roof terrace, and two sophisticated bathrooms—one with a sauna, the other with contemporary amenities. The attic provides versatile additional space and a private bedroom. Multiple international and English-language schools are nearby, and everyday needs are attended to with an installed alarm system, charging station for electric cars, and modern central heating.

This luxury villa for sale in Hoofddorp offers enduring comfort and seamless indoor-outdoor living, lending itself to both restful privacy and sophisticated family life.

Features

Alarm system
Transfer of ownership
Asking Price
€ 1.690.000 k.k.
Status
beschikbaar
Acceptance
in overleg
Construction
Kind of house
Villa
Building type
vrijstaande woning
Construction period
2003
Energy rating
A
Roof type
zadeldak
Bedrooms
6
Bathrooms
2
Surface Areas And Volume
Living Area
306 m2
Other indoor space
18 m2
Exterior space attached to the buildinge
28 m2
External storage space
15 m2
Volume in cubic meters
1185 m3
Plot Size
780 m2
Facilities
Alarminstallatie
Rookkanaal
Sauna
Aan rustige weg
In woonwijk
Baerz & Co Property Brochure

Brochure

Videos

360 Panoramas

360°
360 Panorama - Statendam 4
360°
360 Panorama - Statendam 4
360°
360 Panorama - Statendam 4
360°
360 Panorama - Statendam 4
360°
360 Panorama - Statendam 4
360°
360 Panorama - Statendam 4
360°
360 Panorama - Statendam 4
360°
360 Panorama - Statendam 4
360°
360 Panorama - Statendam 4
360°
360 Panorama - Statendam 4
360°
360 Panorama - Statendam 4
360°
360 Panorama - Statendam 4
360°
360 Panorama - Statendam 4

Floor Plans

Landheeren Makelaardij

Kerklaan 37
7311AC Apeldoorn

ingrid@landheeren.nl
+31 555 42 42 01

www.landheeren.nl

Information / Viewing request

Ingrid Wijngaards profile image
Ingrid Wijngaards
Real Estate Agent

Buying a Luxury Property in Hoofddorp

Hoofddorp offers a harmonious blend of cosmopolitan amenities, tranquil neighborhoods, and strong international connections, attracting residents who value both global perspective and refined daily living.