HARLINGEN
Franekereind 15 - 8861 AA
Netherlands

Ingrid Wijngaards profile image
Ingrid Wijngaards
Real Estate Agent
€775,000 k.k.
Living Area
469m2
Plot Size
210m2
Bedrooms
5

Description

Monumental multifunctional residence ideal for a gallery, a studio, a practice or BB.

Along one of the oldest canals in the historic heart of Harlingen stands this impressive listed National Monument known locally as “Het Tempelhuys”. Rising proudly above the surrounding rooftops it continues to breathe the maritime spirit of this vibrant harbour town. In summer the Franekereind becomes a charming stage where residents, travellers, seafarers and enthusiasts of the Wadden Sea meet.
This deep canal house with two full residential floors a lodge hall, chapel, cellar and a striking attic loft beneath an exposed timber frame is an architectural icon. It tells a story reaching back to the seventeenth century a history of trade, prosperity, spirituality and culture. The ornate rocaille style entrance door, the mullioned windows, the sculpted façade stones with frieze and the carved stoop posts are tangible reminders of its rich past. The picturesque streetscape with benches in front of the historic façades forms the perfect setting for life at the Franekereind; convivial, stylish, atmospheric and within walking distance of all amenities.

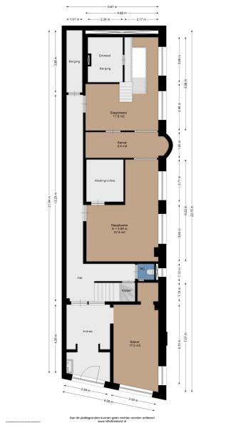
GROUND FLOOR
Behind the monumental front door unfolds a stately hall with marble floor and vestibule. The long corridor provides access to three generous rooms an internal storage space and the original wide staircase.
The front room currently used as a gallery shop enjoys a beautiful view of the canal through its corner windows.
The middle room arranged as a bedroom features an ensuite dressing room, washbasin and tall windows allowing for a remarkable play of light.
The rear room now a practice space is playfully arranged with a mezzanine and a treatment room below. From here there is access to the chapel, a transitional space with an original decorative niche in the side wall.
The internal storage room is equipped with electricity. Thanks to the presence of two vertical stacks there is potential to create a bathroom on this floor. The rooms are heated by radiators.

FIRST FLOOR
The monumental staircase leads to a generous landing on the first floor. At the front lies the atmospheric living kitchen with canal view and ample space for a large dining table and seating area.
On the opposite side is the impressive lodge hall a lofty vaulted space with large windows and a podium. A versatile place perfectly suited for gatherings, music or yoga studio, workspace, gallery or additional living space. This lodge hall is heated by a closed hot air system the remaining living areas by radiators.

SECOND FLOOR
A fixed staircase leads to the second floor. Here is a charming studio apartment with complete kitchen box bed and views over the Franekereind. Directly next to the apartment is the bathroom with washbasin and shower the toilet is separate.
Also on this floor is a large multifunctional space with technical installations laundry setup ample storage and a playful view into the lofty lodge hall. Heating by radiators.

THIRD FLOOR
An impressive centuries old wooden staircase leads to the full attic level of 106 m2 with a ceiling height of 2.17 m where the original trusses and heavy beams remain beautifully exposed. The old cabin offers a phenomenal view over Harlingen and to the rear is a more modern roof window. This level has excellent potential for transformation into a loft style living space.

ATTIC
Above the third attic floor is an additional attic under the ridge with standing height. The roof is in good condition and largely renovated.

CELLAR
Below the ground floor is a dry spacious cellar of 20 m2 with a height of 1.50 m.

HIGHLIGHTS
- atmospheric central location all amenities within walking distance
- ideal for living and working office, gallery, studio hall, practice or B&B
- Iconic Monument with exceptional possibilities
- approximately 470 m2 of living space
- parking permits (5) directly in front of the property
- Amsterdam reachable within the hour

HARLINGEN
Harlingen also known as the little Amsterdam of Friesland with more than six hundred monuments is one of the most beautiful harbour towns of the North. Living here means life by the Wadden Sea surrounded by unique nature close to the islands and with all facilities within reach atmospheric restaurants shops schools medical services and a train station.
The city has a rich history dating back to the thirteenth century. The nautical atmosphere is still tangible in the characteristic harbour area where in summer a lively dynamic unfolds of tourists seafarers and Wadden enthusiasts. Thanks to its location above the Afsluitdijk Amsterdam is reachable within an hour.

DISCLAIMER
This information has been compiled with care and is partly based on data from the seller and third parties. Although we aim for the most accurate representation no rights can be derived from its content including texts appendices floor plans and measurements. Surfaces have been measured according to NEN 2580 and deviations may occur. This offer is non binding and intended as an invitation to make an offer. For properties older than 25 years standard age and asbestos clauses will be included in the purchase agreement.

Features

Transfer of ownership
Asking Price
€ 775.000 k.k.
Status
beschikbaar
Acceptance
in overleg
Construction
Kind of house
Grachtenpand
Building type
halfvrijstaande woning
Construction period
1651
Roof type
schilddak
Bedrooms
5
Bathrooms
0
Surface Areas And Volume
Living Area
469 m2
Other indoor space
22 m2
Volume in cubic meters
2041 m3
Plot Size
210 m2
Facilities
Rookkanaal
Dakraam
Natuurlijke ventilatie
Aan water
Aan rustige weg
In centrum
Baerz & Co Property Brochure

Brochure

Videos

Floor Plans

Landheeren Makelaardij

Kerklaan 37
7311AC Apeldoorn

ingrid@landheeren.nl
+31 555 42 42 01

www.landheeren.nl

Information / Viewing request

Ingrid Wijngaards profile image
Ingrid Wijngaards
Real Estate Agent

Buying a Luxury Property in Harlingen

Harlingen offers distinguished buyers a harmonious blend of heritage living, cultural charm, and waterfront elegance. The community values privacy and personal service, with international appeal grounded in authenticity and sophisticated lifestyle opportunities.