BERGSCHENHOEK
Oltmansstraat 17 - 2662 AA
Netherlands

Ingrid Wijngaards profile image
Ingrid Wijngaards
Real Estate Agent
€998,000 k.k.
Living Area
174m2
Plot Size
635m2
Bedrooms
4

Description

Living at Oltmansstraat 17 means living at a higher level, where light, space and tranquility come together in a truly unique way.

This spacious, gas-free home offers approximately 174 m² of living space and is situated on a beautiful 635 m² plot directly bordering the water. The extended living room forms the heart of the house and creates an impressive sense of openness and comfort thanks to its large windows, underfloor heating and sliding doors leading to the garden. Indoor and outdoor living blend seamlessly here. The separate, recently renovated kitchen features modern built-in appliances and a cozy seating area, making it perfect for both everyday use and enjoyable moments with family and friends. With four bedrooms, a practical attic floor and a high level of privacy, this home is perfectly suited for comfortable family living.

The sunny west-facing backyard is beautifully landscaped and includes multiple terraces, a stylish covered seating area and a wooden deck by the canal — an ideal place to relax well into the evening. At the front of the property, there is private parking for three cars on the driveway, as well as direct access to the garage.

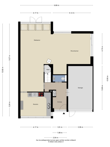
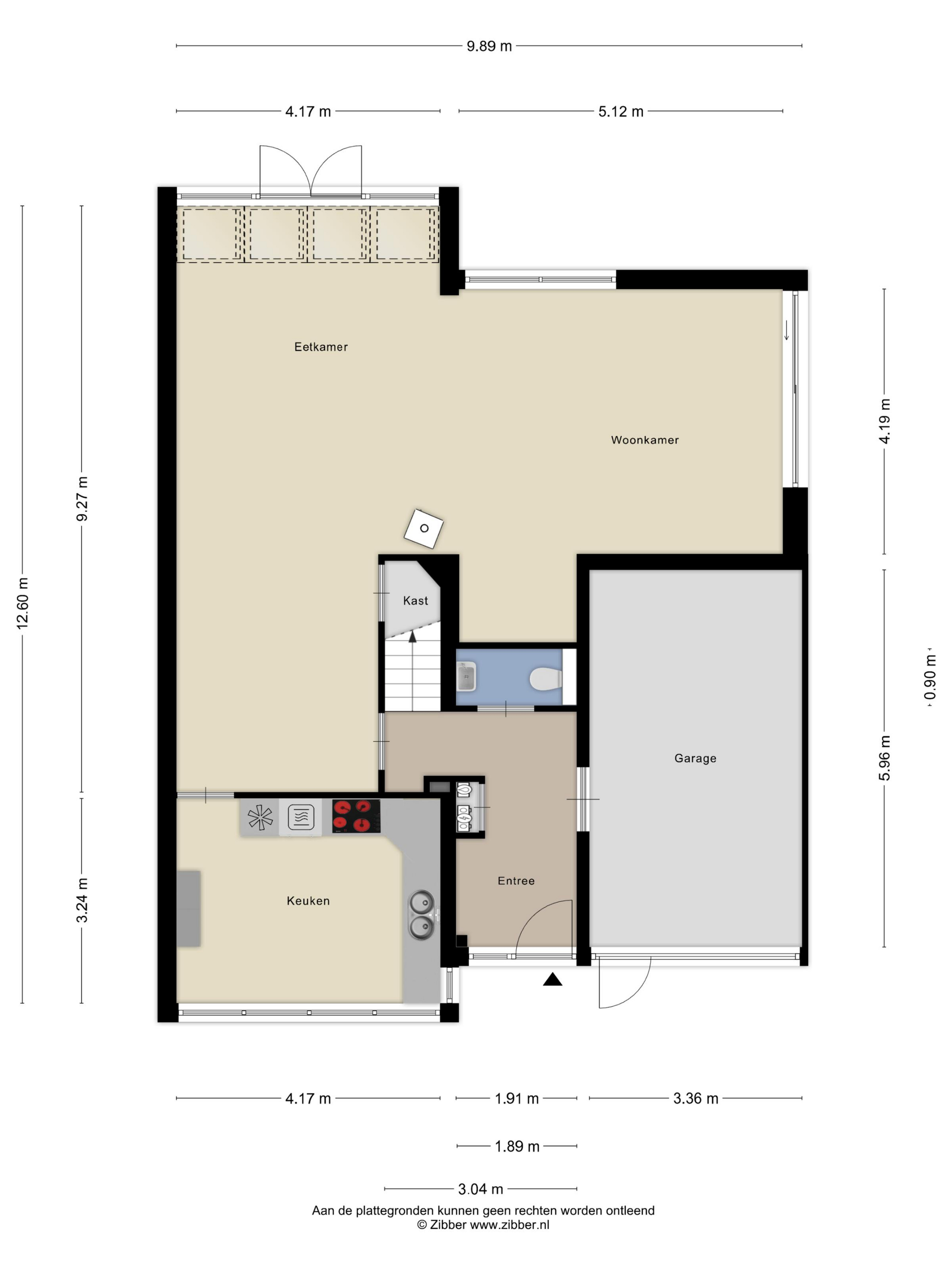
Layout

Ground floor:

Spacious entrance hall with toilet and meter cupboard

Extended, bright living room with underfloor heating, tiled flooring, French doors and sliding doors to the garden

Separate L-shaped kitchen equipped with an induction hob, dishwasher, double sink, extractor hood, oven and fridge-freezer combination

First floor:

Landing with separate toilet

Two spacious bedrooms, each with a French balcony

Modern bathroom with bathtub, shower, washbasin unit, underfloor heating and designer radiator

Second floor:

Two bright bedrooms, both with French balconies

Small washbasin and connections for washing machine and dryer

Additional lockable storage room, ideal for storage, suitcases, seasonal items or hobbies

Location:
The property is located in a quiet, car-free residential courtyard with no through traffic, making it ideal for those seeking peace and for families.
Schools, shops, childcare facilities, sports clubs, restaurants and the center of Bergschenhoek are all within walking distance.
Recreational area Rottemeren, nature reserves and various sports and play facilities are easily accessible by bicycle.
Thanks to the new connection to the A16 and nearby main roads (N209, A13, A12 and A20), cities such as Rotterdam, The Hague, Delft and Zoetermeer can be reached within a short time.
Here you enjoy a peaceful living environment while still benefiting from the convenience of the Randstad metropolitan area.

Key features:
* Built in 2001
* Living area approx. 174 m²
*Plot size approx. 635 m²

Spacious living room with underfloor heating

Sunny west-facing garden directly on the water

Four bedrooms plus additional attic storage area

Modern bathroom and extra toilet on the first floor

Washbasin and laundry connections on the attic floor

Private driveway for three cars plus garage

Quiet, car-free residential courtyard

Schools, shops and public transport within walking distance

Delivery in consultation

This is a home you don’t just have to see — you have to feel it. We would be delighted to let you experience how light, space and views come together here. Welcome to Oltmansstraat 17.

All information provided should be regarded as an invitation to make an offer or enter into negotiations. No rights can be derived from this property description.

Additional Information

All information provided must be regarded as an invitation to make an offer or to enter negotiations. The texts and impressions are intended to give a good impression of the property. The utmost care has been taken with the content; nevertheless, all information is expressly subject to change. No rights can be derived from this property information.

Purchase agreement legally binding only after signature:
An oral agreement between the private seller and the private buyer is not legally binding. In other words: there is no sale. A purchase is only legally valid once both the private seller and the private buyer have signed the purchase agreement. This follows from Article 7:2 of the Dutch Civil Code. A confirmation of the oral agreement by e-mail or a draft purchase agreement sent is not considered a "signed purchase agreement."

Measurement Instruction Disclaimer:
The property has been measured in accordance with the industry-wide Measurement Instruction (BBMI). The Measurement Instruction is intended to apply a more uniform method of measuring to provide an indication of the usable surface area. The Measurement Instruction does not completely exclude differences in measurement results, for example, due to interpretation differences, rounding, or limitations during the measurement process.

Features

Transfer of ownership
Asking Price
€ 998.000 k.k.
Status
beschikbaar
Acceptance
in overleg
Construction
Kind of house
Eengezinswoning
Building type
geschakelde woning
Construction period
2001
Energy rating
A
Roof type
lessenaardak
Bedrooms
4
Bathrooms
1
Surface Areas And Volume
Living Area
174 m2
Other indoor space
20 m2
External storage space
2 m2
Volume in cubic meters
685 m3
Plot Size
635 m2
Facilities
Mechanische ventilatie
Rolluiken
Buitenzonwering
Frans balkon
Glasvezel kabel
Aan water
In woonwijk
Beschutte ligging
Baerz & Co Property Brochure

Brochure

Videos

Floor Plans

Landheeren Makelaardij

Kerklaan 37
7311AC Apeldoorn

ingrid@landheeren.nl
+31 555 42 42 01

www.landheeren.nl

Information / Viewing request

Ingrid Wijngaards profile image
Ingrid Wijngaards
Real Estate Agent

Buying a Luxury Property in Bergschenhoek

Bergschenhoek offers a refined community with tailored services, verdant landscapes, and internationally minded sensibilities, presenting an ideal setting for those pursuing sophisticated living and enduring value.