BARCHEM
Hardermaat 12 - 7244 PZ
Netherlands

Ingrid Wijngaards profile image
Ingrid Wijngaards
Real Estate Agent
€1,595,000 k.k.
Living Area
256m2
Plot Size
20110m2
Bedrooms
3

Description

Living (+working) without energy costs

Extraordinary outdoors – Elegant, contemporary and highly energy-neutral farmhouse with multifunctional outbuilding (288 m²) consisting of office/storage/hobby space, carport and a unique fruit and nut orchard with phenomenal views.

Stunning, sweeping views of the surrounding Achterhoek bocage landscape, with the Lochemse Berg as a backdrop and the exceptionally beautiful 42-hectare Hagenbeek nature reserve directly adjacent; this is one of the most beautiful spots in the Achterhoek. Here you will find peace and space, and experience the seasons and the countryside.

And we haven't even mentioned the house yet... A beautiful, fully modernised farmhouse with 256 m² of living space, room for you and your loved ones, but also for working from home and for your hobbies.

A farmhouse with zero energy consumption, or less
This magnificent farmhouse took on its current form in 2016, when the farm, which was built in 1924, was completely renovated. The emphasis was on sustainability: the exterior was fully insulated with polystyrene blocks, the house was fitted with new HR+++ glass all around, a water-water heat pump was installed (which exchanges and extracts heat at a depth of 75 metres), the interior floor was fitted with a robust cast floor – ideal in combination with underfloor heating – and a total of 110 (no, this is not a typo) solar panels were installed on the roofs. Under the bonnet, this house is all state-of-the-art technical ingenuity. Even the colour palette – the exterior is whitewashed with grey woodwork and beaded edging – contributes to the energy-efficient character of the house, because while the white facades reflect sunlight, the grey absorbs heat. Not only does this house have zero energy consumption, it also generates a considerable amount of energy! A home battery is therefore an excellent addition here.

In terms of finish, top quality was chosen with as many natural and traditional materials as possible: wood, metal, ceramic tiles, Ciré concrete... No corners were cut. The result is a delightful family home, with plenty of space and living comfort. Yet the house feels like a cosy home, warm and with cosy corners everywhere to sit and enjoy the surroundings. In the living room, there is even room for a hanging chair.

The house
The interior combines cheerful contemporary style, with sleek walls, a sophisticated colour palette and Dutch Design, with a nod to the past in the form of charming details such as a 1950s desk, classic Lloyd Loom chairs and a Willem III Biedermeier cabinet. And it all comes together effortlessly, like a very happy marriage.

The spacious hall with Portuguese tiles offers a generous welcome. The hall provides access to the technical room, the stairs to the upper floors and the living areas on the ground floor. The former barn is now a delightful living room and the old barn doors have been replaced by large windows. The Bulle-Jan (FreeFlow, A++) wood-burning stove provides cosy warmth.

The kitchen is custom-made by Scheffer Keukens Zelhem and is nothing short of impressive; with a thick composite worktop, robust solid oak fronts and all modern built-in appliances – from induction hob to Quooker – it is a wonderful place to indulge your inner chef. The old fireplace still has a sturdy Nordic Fire wood-burning stove, which provides the kitchen with extra atmosphere and warmth.

Next to the kitchen is a spacious bedroom/study, which can easily be divided or used for lifetime living.

The toilet room is equipped with a urinal and Mera Geberit shower toilet.

The former milk room is now the machine room (technical room) with all modern gadgets, including the heat recovery unit, water softener, washing machine connection, etc.

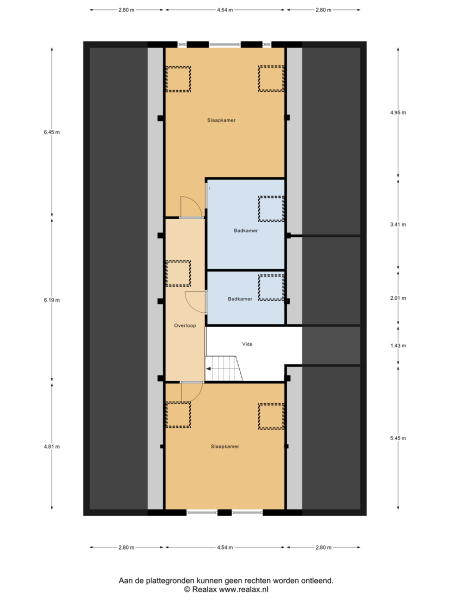
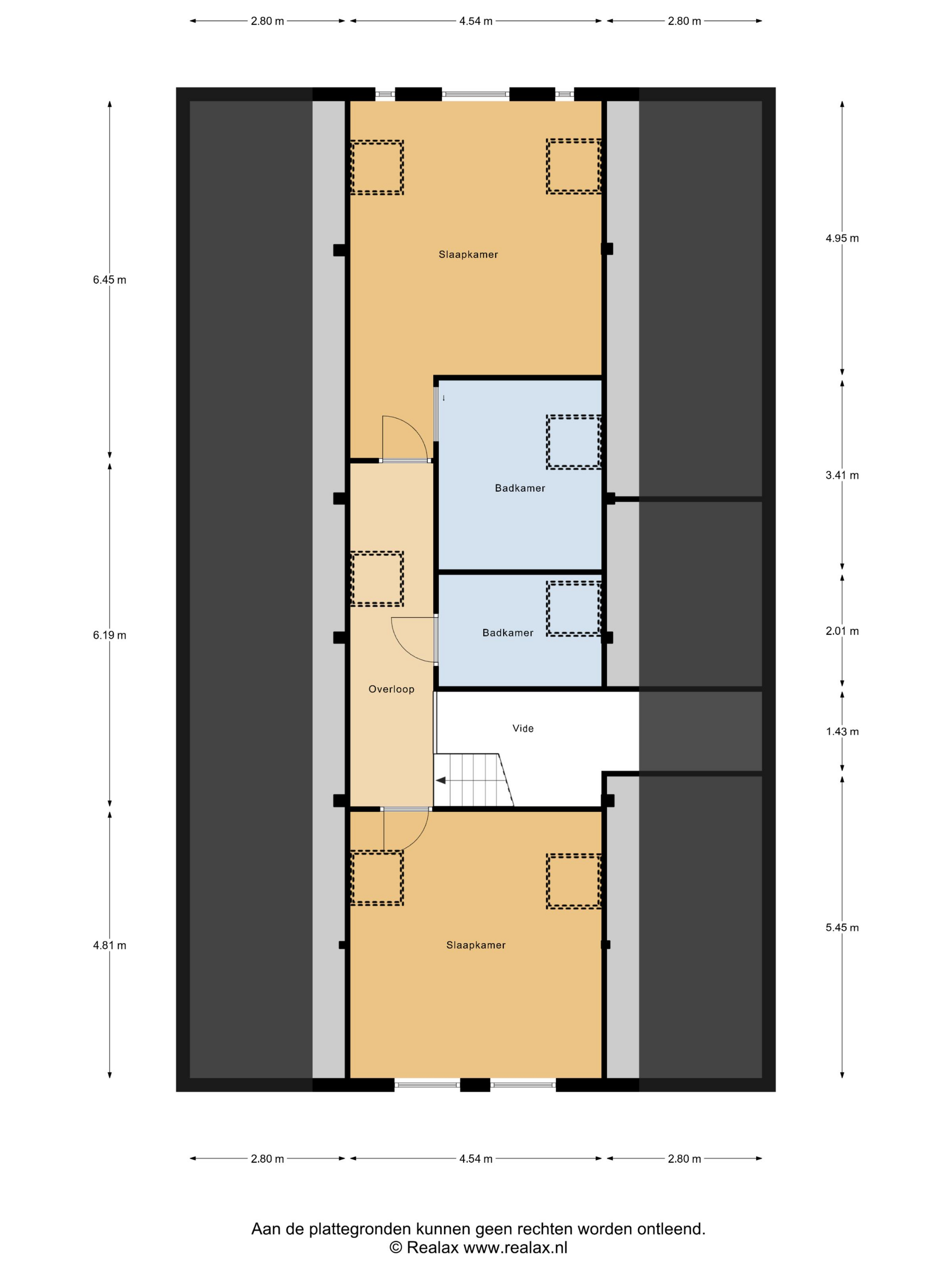
Upstairs is a spacious landing with plenty of storage space and two lovely bedrooms, also with plenty of storage space and each with its own bathroom. The walls with concrete Ciré give the rooms a chic and contemporary look. Both bathrooms have a spacious walk-in shower, toilets with Wisa non-touch flushing system and washbasin (Grohe Sphinx).

The multifunctional annex
Perhaps you have your own business, maybe with staff, and you want to work from home. That's possible! There is a more than spacious U-shaped annexe consisting of an office with presentation room (approx. 84 m²), toilet, pantry with close-in boiler, and a workshop (90 m²) where you can get straight to work. Like the main house, the entire building is equipped with fibre optic Cat6 Ethernet cables.
Adjacent to this is a carport/car shed (12 m by 5 m). In addition, the U-shape is filled with a double lockable garage (46 m²) and an adjoining second large storage/parking space (approx. 62 m²). The paved outdoor area provides parking space for at least six cars with a 22kW charging station (currently available to the public).

Outdoor space based on bio/ecological design
The garden is a true fairy tale; over 2 hectares in size and full of surprises. On cool evenings and mornings, the white witches, who play a starring role in Achterhoek folklore, flit between the trees and shrubs of the food forest. Roe deer, hares, squirrels, hedgehogs and all kinds of birds – from woodpeckers to owls – feel at home here. The roe deer like to come and take a drink at the water feature or enjoy the peace and quiet while grazing. The garden is based on a bio/ecological design, climate resistance and a great deal of diversity. There is a large pond of approximately 300 m² and 2 m deep, surrounded by a bee/butterfly paradise.

Fruit and nut orchard
The unique orchard contains a wide variety of fruits and nuts. Young fruit and nut orchard of approx. 1.2 hectares based on row cultivation, including kiwi, persimmon and approx. 55 nut varieties: walnut, pecan, hazelnut, chestnut, almond, pistachio, pine nuts, partly grafted with 6 varieties of truffle (summer, autumn, black, white, Burgundy & Brumale). In addition to the “usual suspects”, such as pears, apples, cherries, walnuts, hazelnuts and plums, we also find exotic fruits such as kiwis and even a banana tree. And everything grows and flourishes beautifully!

There is also space for small livestock and/or chickens around the old orchard, with a chicken coop in the shape of a haystack and a large run. Next to the large pond, there is also a spacious vegetable garden, with plenty of room to grow your own vegetables and (cut) flowers.

Barchem, between Vorden, Lochem and Ruurlo
Living in Barchem is simply enjoyable. This cosy village, located in the middle of the Achterhoek region, is situated between several nature reserves, making it particularly popular with tourists. Whether on foot – with or without a dog – by bicycle or on horseback, nature is truly the biggest attraction here. Barchem is increasingly promoting itself as a walking village, with the Four Day Walking Event as the absolute highlight.

It is an accessible village with a rich community life, and every year the Barchem Festivities attract a diverse audience from near and far. There is an excellent primary school, a baker, a shop where you can get everything you need and a gym. The church organises both services and cultural events; there is something for everyone. Do you want the convenience and amenities of the city? Then places like Lochem, Vorden and Ruurlo are a ten-minute drive away, and the A1 motorway is fifteen minutes away. Everything is close at hand!

In short
Are you looking for the pause button in life? This Achterhoek paradise is a wonderful place to unwind and find a new rhythm. We would be delighted to show it to you!

General:
Year of construction: Farm originally built in 1924, but completely renovated and modernised in 2016 and, above all, made sustainable. Outbuildings from 2017.
Maintenance: Excellent
Insulation: Optimally insulated, roof insulation RC value 9, wall + floor insulation RC value 6.5, triple glazing, skylights with Solas sun screens
Heating: Vaillant FlexoTherm Exclusive 117/4 (main heating)
Nordic-Fire Cottage central heating wood-burning stove 9.5kW (7.3 kW on central heating and 2.2 kW space) (linked to underfloor heating in house & office)
The office area has an additional heat pump (Innova 10 Hp monobloc) for rapid heating/cooling
Hot water: Vaillant aquaFlow Exclusiv 500 litre storage buffer and Quooker
Location: In the beautiful bocage landscape in the triangle of Lochem, Vorden and Ruurlo
Intended use: Residential with the possibility of a home-based business
Annex: Multifunctional annex consisting of an office/reception area, workspace, storage space, sports/storage room and a 12-metre-wide carport/garage.
Parking: Six paved parking spaces.
Sustainability: 110 solar panels (31kW). Heat pumps, hot fill pipes for washing machines and dishwashers.
Electricity: The plot has a main connection of 3*35Amp.
All sheds have 3*16A high-voltage power
Security: Two Acti and Ring camera security systems in the home and office. Separate ATS Nederland burglar alarm system in the office/garages.
Water source: Groundwater pump (10m3/h) on site, equipped with a remote-controlled sprinkler system in the back garden (nut orchard). There are several connection points at the front of the garden. There is a fire hydrant at the driveway.

Living area: 256 m²
Building-related outdoor space: 60 m²
External storage space: 288 m²
Other indoor space: 162 m² of attic space in the annex
Plot size: 20,110 m²
Energy label for the house: Energy class A++++ (EPC -0.23)
Energy label for the office: Energy class A++++ (EPC -1.58)
Acceptance: In consultation

This property has two energy labels with a negative EPC(!)

Features

Solar panels
Transfer of ownership
Asking Price
€ 1.595.000 k.k.
Status
beschikbaar
Acceptance
in overleg
Construction
Kind of house
Woonboerderij
Building type
vrijstaande woning
Construction period
1924
Energy rating
A++++
Roof type
zadeldak
Bedrooms
3
Bathrooms
2
Surface Areas And Volume
Living Area
256 m2
Other indoor space
162 m2
Exterior space attached to the buildinge
60 m2
External storage space
288 m2
Volume in cubic meters
1008 m3
Plot Size
20110 m2
Facilities
Mechanische ventilatie
Dakraam
Zonnepanelen
Natuurlijke ventilatie
Aan rustige weg
Open ligging
Buiten bebouwde kom
Landelijk gelegen
Baerz & Co Property Brochure

Brochure

Videos

Floor Plans

Landheeren Makelaardij

Kerklaan 37
7311AC Apeldoorn

ingrid@landheeren.nl
+31 555 42 42 01

www.landheeren.nl

Information / Viewing request

Ingrid Wijngaards profile image
Ingrid Wijngaards
Real Estate Agent

Buying a Luxury Property in Barchem

Barchem offers a discreet, nature-infused lifestyle supported by refined properties, premium local services, and a close-knit yet internationally minded community. Residents enjoy enduring Dutch tradition, privacy, and effortless access to regional culture and amenities.