APELDOORN
Deventerstraat 492 - 7325 XW
Netherlands

Gonda van Raaij profile image
Gonda van Raaij
Real Estate Agent
€725,000 k.k.
Living Area
157m2
Plot Size
292m2
Bedrooms
4

Description

Statige twee-onder-één-kapwoning met jaren ’30 allure en modern wooncomfort

Op zoek naar ruimte, comfort en stijl? Deze robuuste twee-onder-één-kapwoning met garage, eigen oprit en een zonnige tuin op het zuidwesten heeft alles in huis om jarenlang woonplezier te bieden. De woning combineert de klassieke charme van de jaren ’30 met eigentijdse luxe en is bovendien instapklaar.

Wonen met allure
De lichte woonkamer met karakteristieke erker en stijlvolle gashaard vormt het hart van het huis. Dankzij de royale opzet en de vele raampartijen is dit een aangename plek om samen te zijn. Vanuit de woonkamer loopt u door naar de ruime woonkeuken (ca. 26 m²), waar plaats is voor een grote eettafel. De keuken is voorzien van diverse inbouwapparatuur en heeft openslaande deuren naar de tuin – ideaal om binnen en buiten naadloos met elkaar te verbinden.

Buitenleven
De onderhoudsvriendelijke achtertuin is fraai aangelegd met terrastegels, groen en sfeervolle verlichting. Door de ligging op het zuidwesten geniet u hier van de zon van ’s ochtends vroeg tot in de avond. De royale garage zorgt voor veel praktische ruimte – en de oprit biedt plek voor meerdere auto’s.

Slapen en ontspannen
Op de eerste verdieping bevinden zich drie slaapkamers, en een badkamer. De tweede verdieping is een open, royale ruimte met veel indelingsmogelijkheden: ideaal voor het realiseren van een vierde of zelfs vijfde slaapkamer, een werkkamer of een speelruimte voor de kinderen.

Duurzaam en comfortabel
De woning is uitstekend onderhouden en biedt modern wooncomfort. Dankzij de volledige isolatie en de aanwezigheid van zonnecollectoren is de woning energiezuinig en toekomstbestendig. De HR-combiketel is in 2023 vervangen, wat extra zekerheid en comfort biedt. Dit alles resulteert in een gunstig energielabel A.

Ligging
De woning is gelegen aan de rand van de jonge wijk Tussen de Eiken. Een groene en kindvriendelijke omgeving met speelgelegenheden, sportfaciliteiten en scholen in de buurt. Op korte afstand vindt u winkelcentrum Het Fort, het treinstation en een goede aansluiting op de A1 en A50. Het centrum van Apeldoorn met theaters, bioscoop en horeca ligt binnen handbereik.

Indeling

Begane grond
Via de lange oprit bereikt u de entree van de woning. In de hal bevinden zich de meterkast, de trapopgang en een modern toilet met fonteintje. De sfeervolle woonkamer aan de voorzijde is een lichte en uitnodigende ruimte, mede dankzij de karakteristieke erker en de sfeervolle gashaard die veel warmte en gezelligheid toevoegt. De hardstenen vloer met vloerverwarming loopt door over de gehele begane grond en zorgt voor een luxe uitstraling en aangenaam comfort.
Aan de achterzijde bevindt zich de royale woonkeuken van circa 26 m². De keuken is in een praktische L-opstelling geplaatst en voorzien van diverse inbouwapparatuur, waaronder een vaatwasser, inductiekookplaat, koelkast en vrieskast. De ruime opzet biedt volop plek voor een grote eettafel, waardoor dit de ideale plek is om met het hele gezin of met vrienden samen te komen. Dankzij de twee openslaande deuren is er een directe verbinding met de zonnige achtertuin.

Eerste verdieping
De overloop, voorzien van een zijraam, geeft toegang tot drie slaapkamers en de badkamer. De ouderslaapkamer aan de voorzijde is royaal bemeten en biedt ruimte aan een tweepersoonsbed én een grote garderobekast. Ook de tweede slaapkamer bevindt zich aan de voorzijde en is momenteel in gebruik als kantoor, maar kan eenvoudig weer dienstdoen als slaapkamer. De derde slaapkamer aan de achterzijde kijkt uit op de tuin.
De moderne badkamer is volledig betegeld en uitgerust met een douchecabine, wastafelmeubel en een tweede toilet. Dankzij het openslaande venster en de mechanische ventilatie is er altijd voldoende daglicht en frisse lucht.

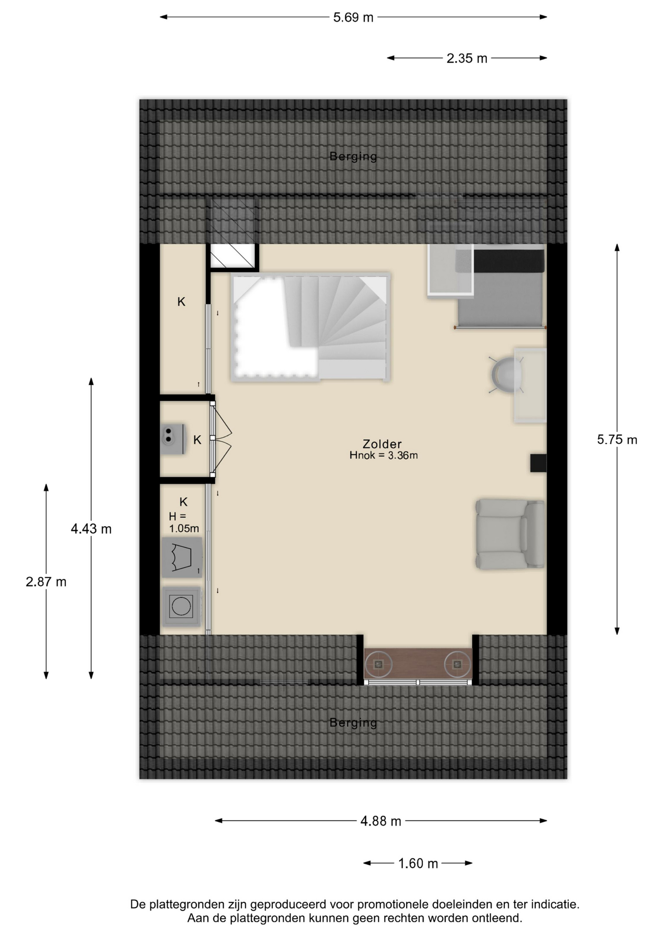
Tweede verdieping
Een vaste trap leidt naar de ruime tweede verdieping. Dit is nu één grote open ruimte met een royale nokhoogte, wat een zee aan mogelijkheden biedt. Hier kunnen met gemak een vierde en zelfs vijfde slaapkamer worden gerealiseerd, of bijvoorbeeld een royale werk- of hobbyruimte. Achter de knieschotten is veel bergruimte aanwezig en in de inbouwkasten bevinden zich de aansluitingen voor de wasmachine en droger, evenals de cv-installatie.

Buiten
De achtertuin is fraai en onderhoudsvriendelijk aangelegd met bestrating, beplanting in grote potten en groene erfafscheiding. De tuin is zowel via de woonkeuken als via de oprit toegankelijk. De ruime stenen garage met houten openslaande deuren is voorzien van elektriciteit en biedt volop ruimte voor fietsen, gereedschap of hobby’s. De oprit voor de garage biedt plaats aan meerdere auto’s.
________________________________________
Stijlvol wonen met ruimte en comfort! Deze instapklare twee-onder-één-kapwoning met erker, garage en zonnige tuin combineert de charme van de jaren ’30 met eigentijds gemak.

Bent u benieuwd naar deze prachtige woning? Maak dan snel een afspraak voor een bezichtiging en ervaar zelf de ruimte en sfeer!

Features

Transfer of ownership
Asking Price
€ 725.000 k.k.
Status
beschikbaar
Acceptance
in overleg
Construction
Kind of house
Herenhuis
Building type
twee onder een kapwoning
Construction period
2006
Energy rating
A
Roof type
dwarskap
Bedrooms
4
Bathrooms
1
Surface Areas And Volume
Living Area
157 m2
Other indoor space
0 m2
External storage space
20 m2
Volume in cubic meters
557 m3
Plot Size
292 m2
Facilities
Mechanische ventilatie
Rookkanaal
Dakraam
Natuurlijke ventilatie
Aan drukke weg
In woonwijk
Vrij uitzicht
Baerz & Co Property Brochure

Brochure

Videos

Floor Plans

Landheeren Makelaardij

Kerklaan 37
7311AC Apeldoorn

gonda@landheeren.nl
+31 555 42 42 01

www.landheeren.nl

Information / Viewing request

Gonda van Raaij profile image
Gonda van Raaij
Real Estate Agent

Buying a Luxury Property in Apeldoorn

Apeldoorn blends heritage, verdant landscapes, and a refined social scene. Its exclusive properties, excellent amenities, and international connections appeal to high-net-worth buyers prioritizing privacy, sophistication, and enduring value.