Ons kantoor is lid van Baerz & Co Luxury Homes; een internationaal platform dat exclusieve woningmakelaars met elkaar verbindt. Neem contact op met ons secretariaat voor meer informatie over het landelijke aanbod, waarvan u hieronder een selectie kunt bekijken.

Bovenwoning for sale in AMSTERDAM

AMSTERDAM Nieuwe Spiegelstraat 26 B - 1017 DG The Netherlands


Steijn Schothorst profile image
Steijn Schothorst
Real Estate Agent
+316 53436695
info@heerenmakelaars.nl

Heeren Makelaars
Stadionweg 75
1077 SE Amsterdam
NETHERLANDS
+31 0204702255
www.heerenmakelaars.nl
info@heerenmakelaars.nl

Living area
168m2
Plot size
N/A
Bedrooms
3

Description

In an iconic building with a rich history, we are pleased to offer this turnkey apartment for sale!
Situated on the third floor, the property measures approx. 168 m² and boasts breathtaking panoramic views. It features three bedrooms, two bathrooms and a wonderfully sunny roof terrace. The apartment is highly energy-efficient with an A+ energy label. Moreover, it is located on freehold land – so no leasehold applies!

Location & Accessibility

Located on the corner of the Keizersgracht and Nieuwe Spiegelstraat, this apartment captures the essence of refined living in Amsterdam. From your home you can enjoy views over one of the most picturesque stretches of canal, with the Rijksmuseum only a three-minute walk away. The neighbourhood offers a unique blend of art, culture and trendy dining. Stroll past galleries, boutiques and lively cafés, while the Vondelpark is close by for green relaxation. Thanks to excellent accessibility and various parking options, this location combines the charm of the canal belt with optimal comfort.

Layout

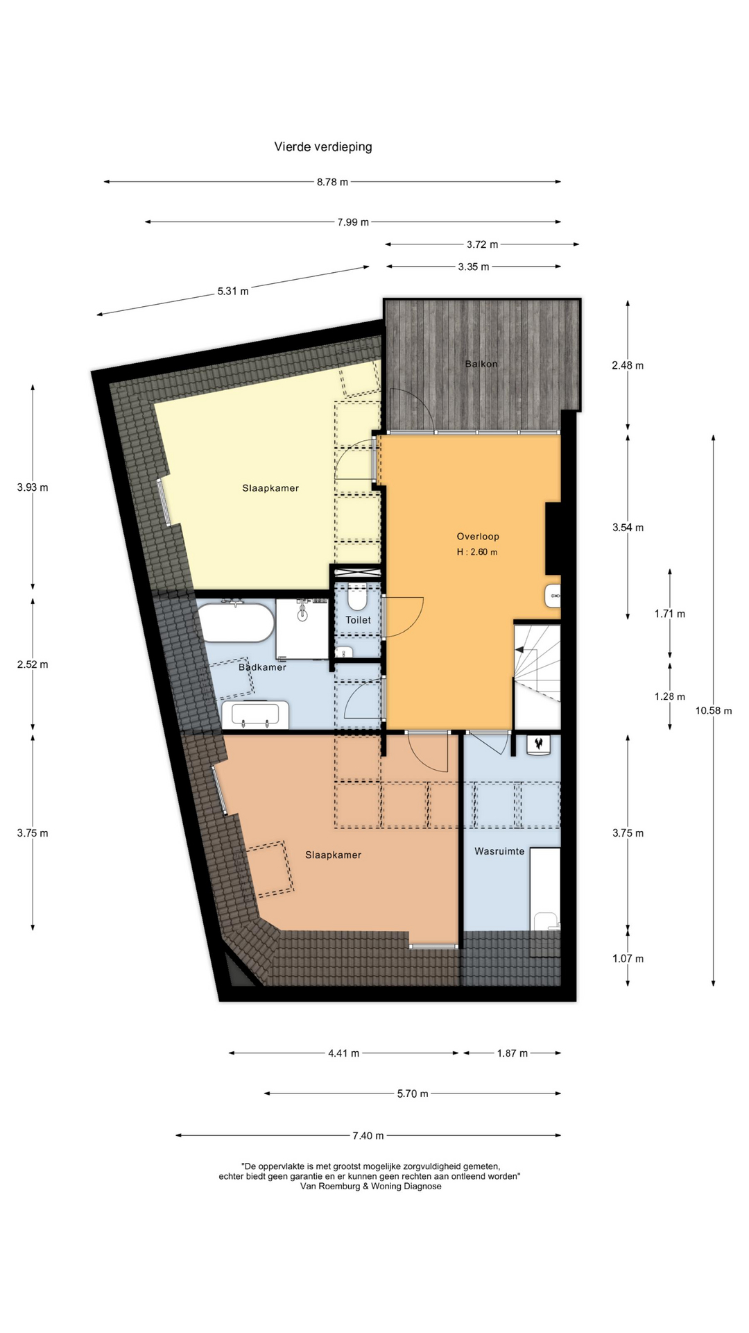
The apartment has been fully renovated to the highest standards, using rare, premium materials such as natural stone. The practical layout includes a spacious living room with ceilings reaching 3.44 metres, a modern open-plan kitchen with integrated appliances, and a private bedroom with en-suite bathroom on the lower level. Large windows flood the space with natural light, allowing the carefully designed interior to shine and enhancing the historic surroundings.

The upper floor comprises two generously sized bedrooms, one of which has access to a balcony, a second luxury bathroom, and a separate laundry room. A separate toilet on both levels provides added convenience. The southwest-facing terrace and balcony offer serene views of Amsterdam’s iconic landmarks and create a harmonious connection between indoor and outdoor living.

Situated on freehold land, this rare gem combines modern comfort, functionality and stunning design. A truly unique residence in the heart of Amsterdam.

Key Features

- Apartment right of approx. 168 m² (measured in accordance with NEN2580)
- Fully renovated with premium materials, including new windows and roof
-Air conditioning and underfloor heating throughout the apartment
- Three well-sized bedrooms
- Roof terrace of approx. 9 m² with stunning views of the Rijksmuseum
- Equipped with a video intercom system
- Project notary: Hartman LMH
- Purchase agreement: in accordance with the Ring Amsterdam model, including non-occupancy and age clauses
- Bedrooms equipped with air conditioning system
- Two modern bathrooms
- Prime location
- Energy label A+
- Freehold property (no leasehold)
- Owners’ Association (VvE) in formation
- Completion by mutual agreement, early transfer possible
- Project website: www.spiegelenkeizer.nl
- This project is offered in co-sale with Max de Makelaer Amsterdam

This information has been compiled with the utmost care. However, we do not accept any liability for any incompleteness, inaccuracies or otherwise, nor for the consequences thereof. All stated dimensions and surfaces are indicative. The buyer has a duty to carry out their own investigation into all matters of importance to them. With regard to this property, the estate agent acts as advisor to the seller. We recommend that you engage a qualified (NVM) estate agent to guide you through the purchase process. If you have specific requirements for the property, we advise you to make these known to your purchasing agent in good time and to (have them) carry out independent investigation. If you do not engage a qualified representative, you are deemed under the law to be sufficiently expert to oversee all matters that may be of importance. The NVM conditions apply.

Features

Transfer of ownership
price
€ 2.000.000 k.k.
Status
onder bod
Acceptance
in overleg
Construction
Kind of house
Bovenwoning
Building type
appartement
Construction period
1962
Roof type
plat dak
Bedrooms
3
Bathrooms
2
Surface Areas And Volume
Living area
168 m2
Other indoor space
0 m2
Exterior space attached to the building
9 m2
Volume in cubic meters
631 m3
facilities
Mechanische ventilatie
Tv kabel
Airconditioning
Schuifpui
Dakraam
Glasvezel kabel
Natuurlijke ventilatie
Aan water
In centrum
Vrij uitzicht
Aan vaarwater
Baerz & Co Property Brochure

Brochure

Information / Viewing request

Videos

Photos

Floor Plans