Krijn Taconiskade 21, Amsterdam
Call now to schedule a private viewing or request a brochure for this stunning waterfront apartment in ‘Jonas’ — an award-winning, prestigious, and sustainable building in the harbor of IJburg!
‘Jonas’ is a truly impressive building. Not just because of its iconic design by Orange Architects, but also due to the outstanding level of facilities and services available to residents and owners. Think five-star hotel standards. And the new owner of Krijn Taconiskade 21? They’re in for a real treat. This apartment is breathtaking in every detail — beautifully designed, immaculately finished, and ideally located on the ground floor with a spacious west-facing terrace. It even comes with direct access to open water, your own jetty and mooring, and a private parking space available for separate purchase.
From the moment you step inside, a sense of serene calm washes over you. Your eyes are drawn from the luxurious kitchen to the lofty living area, bathed in daylight through nearly 4-meter-high windows. Pour yourself a fine wine from the climate-controlled wine cabinet and unwind on the terrace, which enjoys sun late into the evening.
The kitchen offers far more than just a wine cooler. Custom-built wooden cabinetry frames the sleek kitchen equipped with a Quooker tap, BORA induction cooktop, and premium AEG appliances including a combination steam oven, fridge-freezer, and dishwasher. The timeless marble countertop adds a touch of elegance. The kitchen flows seamlessly into the living area, with the poured concrete floor — complete with underfloor heating and cooling — continuing throughout. The custom staircase, featuring a cinewall and electric fireplace, acts as a central design feature.
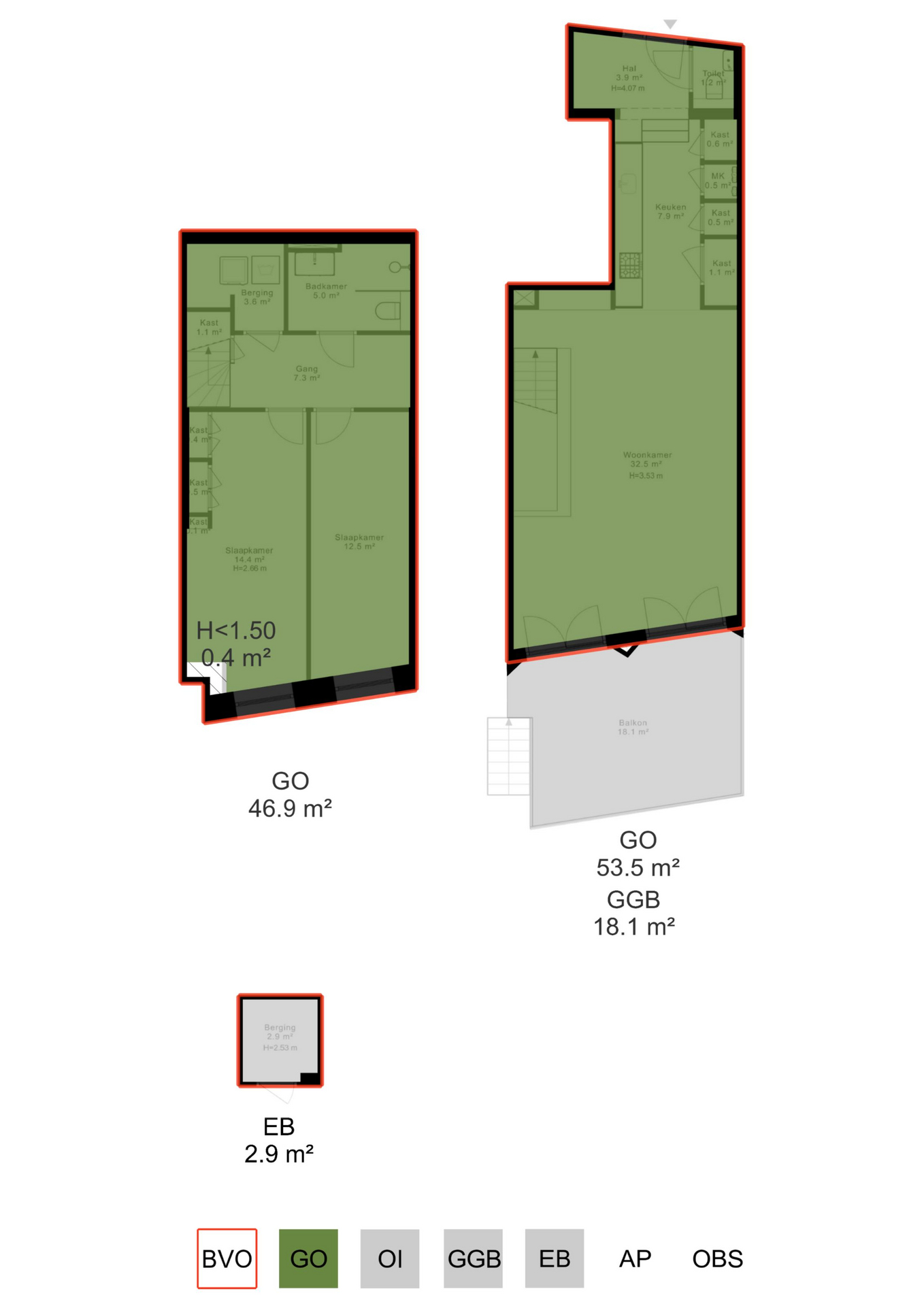
Ground Floor Layout:
Entrance hall, guest toilet, high-end kitchen with built-in appliances, waterfront living area with access to the terrace, jetty, and mooring. The entire floor features built-in lighting based on a well-designed lighting plan. From the living room, stairs lead to the lower level.
Lower Level Layout:
Spacious central hallway, utility room with washer/dryer setup in custom-built cabinetry (both AEG machines available for takeover), master bedroom with a high-end custom wardrobe by De Maatfabriek, second bedroom/guest room, modern bathroom with walk-in shower, second toilet, and washbasin. This level is ideal for sleeping or working, with ample natural light and windows that open in both bedrooms.
Location — The Jonas Building at IJburg Harbor:
Jonas is situated in the vibrant harbor of IJburg, a maritime hotspot with various gyms and eateries in the surrounding buildings. The expansive Blijburg beach is within walking distance.
IJburg borders the scenic Diemerpark — a nature reserve perfect for running, walking, skating, and cycling (with beautiful routes to Muiden and Weesp). The park also includes a beach, tennis courts, football and hockey clubs.
IJburg is a family-friendly area with numerous playgrounds, daycare centers, and both primary and secondary schools. Daily shopping is convenient with a nearby shopping center that includes artisan stores, a large Albert Heijn, HEMA, cozy restaurants, and trendy cafés. The Maxis Shopping Center (with AH XL and more) is a short bike ride away.
Tram line 26 takes you to Central Station in under 15 minutes. By car, major highways like A10, A1, A2, A9, and Schiphol International Airport are easily accessible.
Jonas offers much more than a place to live – it's a lifestyle:
• Package services: MyPup | My Pick-Up Point (ground floor)
• Communal living room with on-site community manager during office hours — great for working (with Wi-Fi), printing, and scanning
• Free cinema room
• Coffee Mamma
• Poke Maniacs
• Lunchroom (opening soon)
• Indoor walkway connecting the 1st to the 5th floor
• Guest hotel rooms: De Beloega (1st floor) & De Bultrug (2nd floor) available to rent (€75 per day)
• Wellness space offering weekly yoga & meditation classes (at an additional cost)
• Meeting room (Het Kantoor) on the 3rd floor (free for residents)
• Lounge on the 4th floor (free for residents)
• Beach bar on the 6th floor (available to rent / €75 per day)
• Bicycle storage with tire cleaning brushes (basement)
• Motorcycle parking
• Exclusive Hely vehicle hub for residents
• Digital Livvin App for communication (residents only)
Private tours of both the apartment and the Jonas building can be arranged through our office.