ENSCHEDE
Heeckerenlaan 6 - 7531 HX
Niederlande

Bert Kock profile image
Bert Kock
Real Estate Agent
€1,350,000 k.k.
Wohnfläche
354m2
Grundstücksgröße
2603m2
Schlafzimmer
5

Beschreibung

Die Villa Enschede steht für stilvolles Wohnen auf einem 2.603 m² großen Grundstück am Rande eines ruhigen, von Bäumen gesäumten Viertels. Diese Villa in Enschede vereint architektonische Raffinesse mit täglichem Komfort und bietet 354 m² Wohnfläche, die Privatsphäre und gemeinsames Leben gleichermaßen unterstützt. Das Wohnerlebnis der Villa Enschede entfaltet sich elegant mit fünf Schlafzimmern und drei vollwertigen Bädern – ideal für Familien oder Mehrgenerationenhaushalte, die Flexibilität und Wohnen auf einer Ebene wünschen.

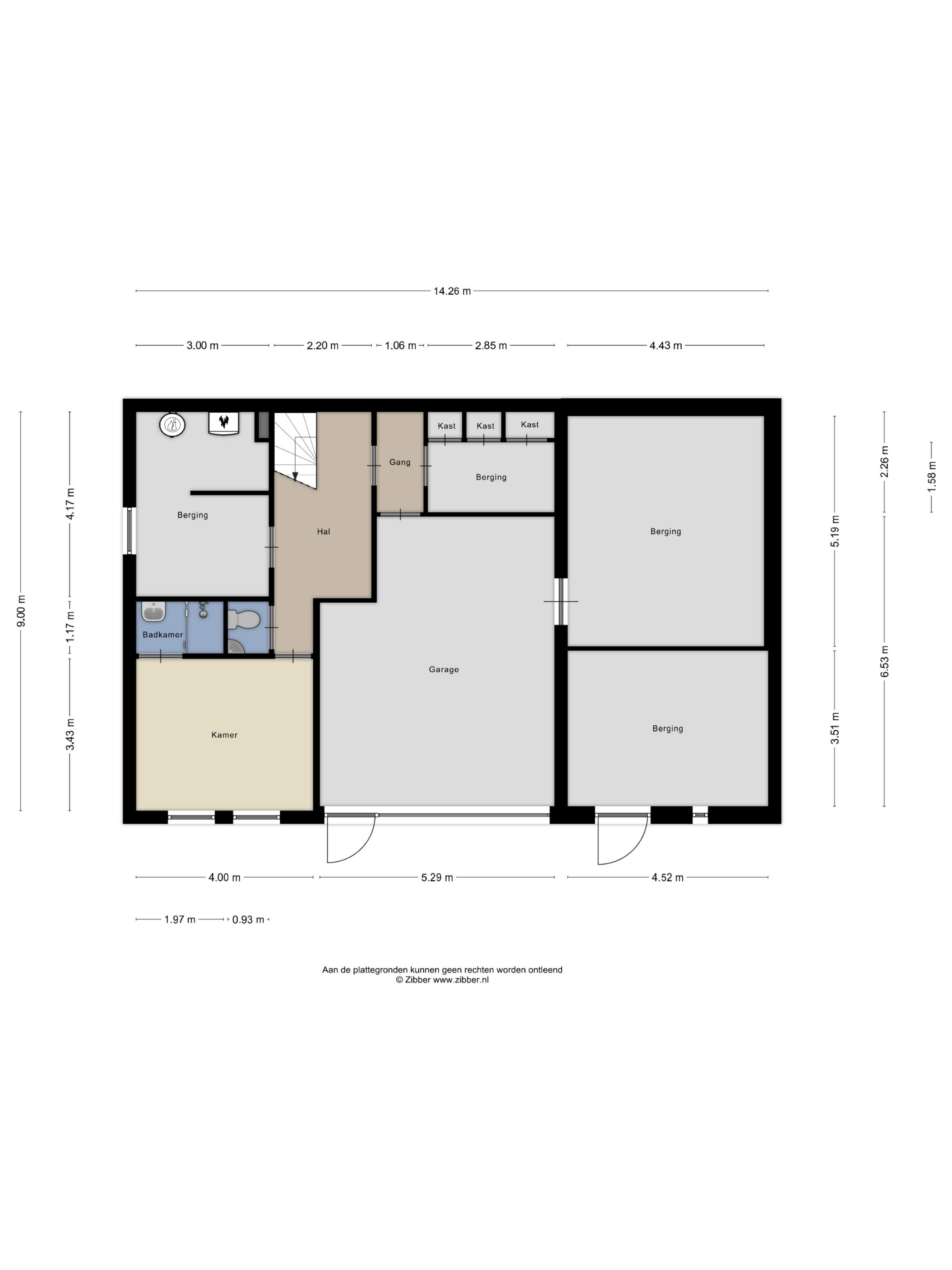
Der großzügige Wohn- und Essbereich in L-Form verfügt über einen Kamin mit klassischem Kaminsims, der nahtlos in eine vollständig ausgestattete Küche übergeht. Die Schlafsuiten sind direkt mit dem angelegten Garten verbunden, in dem eine überdachte Terrasse und ein Teich zum Verweilen einladen. Im Untergeschoss befinden sich Schlafzimmer, ein Bad, ein Weinkeller und Hauswirtschaftsräume; die geräumige Garage ist rückseitig zugänglich. Die Zimmer im Obergeschoss bieten weiteres Potenzial für Schlafräume oder individuelle Rückzugsorte.

Zwischen Lonneker und Enschede gelegen, bietet diese Villa schnellen Zugang zu Oldenzaal, Hengelo, erstklassigen Schulen, Sportvereinen und Spazierwegen. Fortschrittliche Dämmung, Alarmsystem und Energieklasse D gewährleisten Komfort und Sicherheit. Die Villa Enschede verbindet Privatsphäre, Gelassenheit und optimale Erreichbarkeit in einer seltenen, hervorragenden Lage.

Entdecken Sie Enschede mit Baerz, Ihrem vertrauenswürdigen persönlichen Immobilienfinder & Berater

Kompetente Vertretung ist im gehobenen Markt von Enschede entscheidend. Die begehrtesten Immobilien werden oft diskret und früh vermittelt. Vertrauenswürdige Berater verschaffen Zugang zu exklusiven Objekten, begleiten Verhandlungen mit lokaler Expertise und sorgen für erstklassige Sorgfalt und Abwicklung. Käufer und Investoren profitieren von langjährigen Beziehungen zu Bauträgern, Juristen und Eigentümern.

Vermeiden Sie häufige Fallstricke

Internationale Käufer verschwenden oft wertvolle Zeit mit doppelten, veralteten oder irreführenden Online-Angeboten, insbesondere da fast 30% der Luxusimmobilien nie auf dem öffentlichen Markt erscheinen. Verkäufermakler vertreten die Interessen des Verkäufers, nicht die des Käufers. Selbst die Anfrage nach Informationen zu einer Immobilie kann dazu führen, dass ein Verkäufermakler Sie ohne Ihre Zustimmung als seinen „Kunden“ registriert.
Mit Baerz Property Finders & Advisors vermeiden Sie all diese Fallstricke vollständig. Wir arbeiten ausschließlich in Ihrem Auftrag, bieten unabhängige Vertretung, klare Beratung und Zugang zu allen verfügbaren Immobilien, einschließlich Off-Market-Möglichkeiten, die andere nie zu sehen bekommen.

Interessiert an einem Personal Property Advisor?

Wir zeigen Ihnen alle verfügbaren Häuser an einem Ort. Kontaktieren Sie uns gerne, um zu erfahren, wie wir Ihre Bedürfnisse erfüllen und Ihre Interessen exklusiv schützen können.

Merkmale

Alarmsystem
Eigentumsübertragung
Verkaufspreis
€ 1.350.000 k.k.
Status
beschikbaar
Annahme
in overleg
Bau
Art des Hauses
Villa
Gebäudetyp
vrijstaande woning
Bauzeitraum
1967
Energieeffizienzklasse
D
Dachtyp
schilddak
Schlafzimmer
5
Badezimmer
3
Oberflächen und Volumen
Wohnfläche
354 m2
Anderer Innenbereich
73 m2
Außenbereich am Gebäude angebaut
82 m2
Volumen in Kubikmetern
1587 m3
Grundstücksgröße
2603 m2
Einrichtungen
Alarminstallatie
Baerz & Co Property Brochure

Broschüre

Videos

Grundrisse

KockvanBenthem Makelaars

Bisschopstraat 18
7571 CZ Oldenzaal

bk@kvbm.nl
+31 541 52 20 22

www.kvbm.nl

Information / Besichtigungsanfrage

Bert Kock profile image
Bert Kock
Real Estate Agent

Kauf einer Luxusimmobilie in Enschede

Enschede begrüßt internationale Bewohner in einer dynamischen und kultivierten Gemeinschaft. Ausgewählte Wohnimmobilien verbinden Privatsphäre, Design und umfassende Services und profitieren von internationaler Anbindung sowie einem kreativen, lokalen Geist.