DORDRECHT
Buiten Walevest 124 - 3311 AD
هولندا

Johan Oosterlee profile image
Johan Oosterlee
Director/owner
€895,000 k.k.
منطقة المعيشة
202m2
حجم الأرض
N/A
غرف النوم
3

الوصف

شقة دوردريخت تمنحك إحساساً بالعيش الراقي، مع مساحة 202 م² موزعة على مستويين فسيحين في واحد من أكثر المواقع تميزاً على الواجهة النهرية للمدينة. تقع هذه الشقة عند مدخل Nieuwe Haven، وتجمع بتناغم بين الطراز المعماري التاريخي واللمسات العصرية الراقية. بمدخل خاص بالطابق الأرضي وتراس على السطح بمساحة 68 م²، تعد هذه الشقة معلماً بلديًا محمياً ضمن منطقة تاريخية.

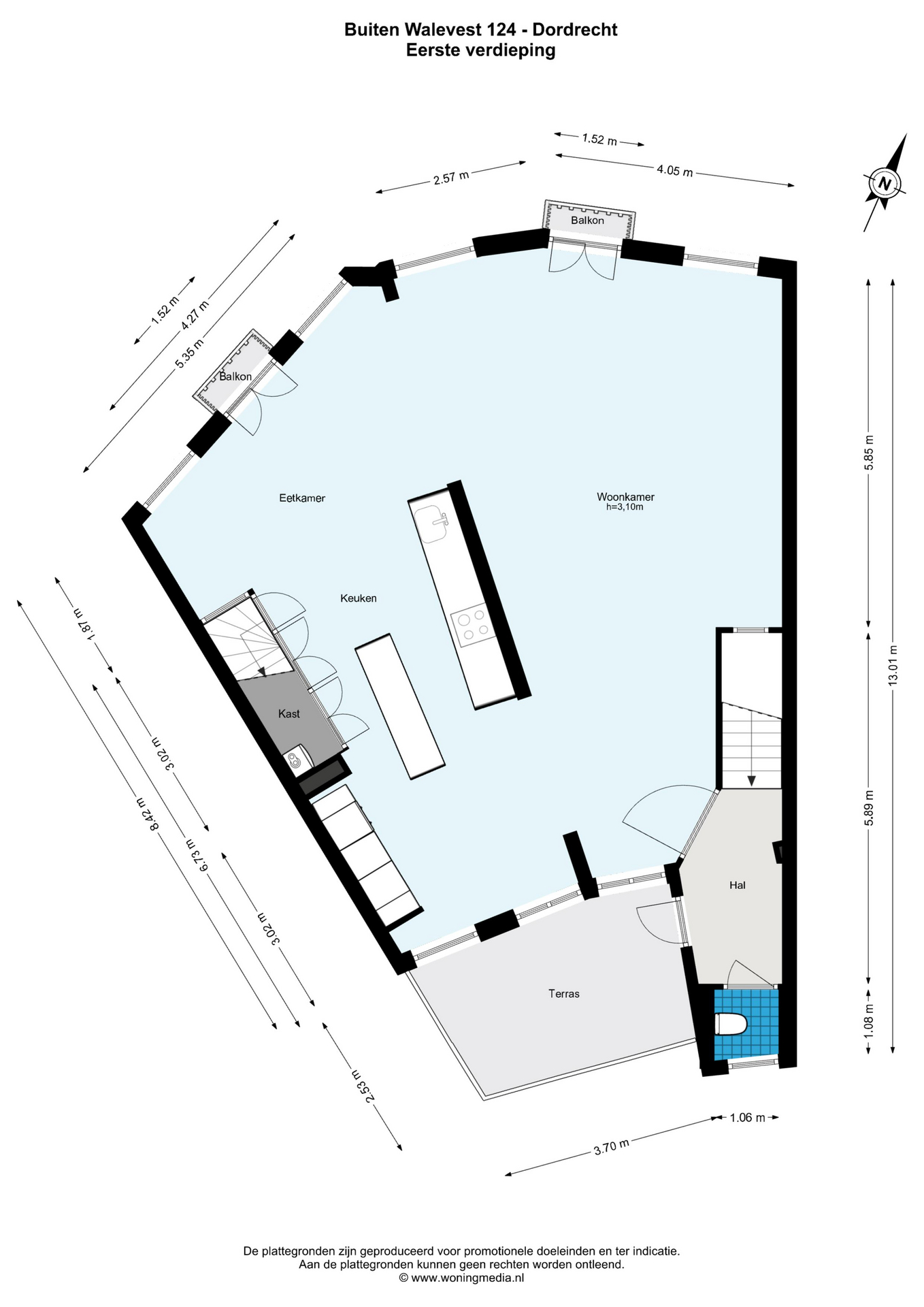
يقدم الطابق الأول مساحة استقبال ومعيشة مفتوحة تُقدر بحوالي 90 م²، حيث يضفي الضوء والإطلالات على نهر Oude Maas أجواءً من الرقي والهدوء. يضم المطبخ المفتوح تجهيزات عالية الجودة وصنبور مياه ساخنة من Quooker، وهو متصل بسلاسة بتراس هادئ مواجه للشرق بمساحة 9 م²، مثالي لضوء الصباح وإطلالات المدينة. تفتح الأبواب الفرنسية إلى شرفتين توفران بانوراما للنهر دون عوائق.

في الأعلى، تستمر الفخامة مع ثلاث غرف نوم وغرفتي ملابس وحمام يغمره الضوء الطبيعي، مع حوض استحمام ودش منفصل. تطل غرفة النوم الرئيسية على النهر وتتميز بجهاز تكييف هواء للراحة طوال العام. كما يوجد مرحاض منفصل ومساحة خدمات واسعة في هذا الطابق.

ويتوج المنزل بتراس فريد على السطح بمساحة 68 م² يتيح التمتع بأفق المدينة التاريخي ومشاهد الحياة على ضفاف النهر في كل الاتجاهات. يتميز هذا العقار بسقف معزول وجُدد حديثاً، وتصنيف طاقة A، وزجاج مزدوج، ولمسات أنيقة متقنة في كل أرجائه. تقدم هذه الشقة التقاءً نادراً بين الإرث التاريخي، والإضاءة الطبيعية، والسهولة المعاصرة على ضفاف مدينة دوردريخت.

استكشف Dordrecht مع Baerz، مستشارك الموثوق للعثور على العقارات الشخصية

تتسم سوق العقارات في دوردريخت بندرة المقتنيات التراثية والحفاظ الدقيق على العروض المميزة. يوفر الشريك المحلي المطلع قيمة عالية، عبر منح الوصول للعقارات السرية والتفاوض بسلاسة وتخطي تعقيدات الترميم أو اللوائح القانونية. يحمي المستشارون المتمرسون مصالحكم في كافة المراحل لضمان رحلة شراء سهلة وخاصة.

تجنب المزالق الشائعة

غالبًا ما يهدر المشترون الدوليون وقتًا ثمينًا أثناء التنقل بين القوائم المكررة أو القديمة أو المضللة عبر الإنترنت، خاصةً أن ما يقرب من 30% من العقارات الفاخرة لا تظهر في السوق على الإطلاق.
يمثل وكلاء البائعين مصالح البائع وليس مصالحك، وحتى مجرد الاستفسار عن عقار قد يؤدي إلى تسجيلك كـ "عميل" لديهم دون موافقتك.
مع Baerz Property Finders & Advisors، يمكنك تجنب هذه المزالق تمامًا.
نحن نعمل حصريًا نيابة عنك، ونقدم لك تمثيلاً مستقلاً، وإرشادًا شفافًا، وإمكانية الوصول إلى كل عقار متاح، بما في ذلك الفرص الخاصة وغير المطروحة في السوق والتي لا يراها الآخرون أبدًا.

هل ترغب في معرفة كيفية الحصول على مستشار عقاري شخصي؟ اتصل بنا لتتعرف على كيفية تمثيل مصالحك وفتح السوق بالكامل أمامك.

الميزات

تكييف الهواء
نقل الملكية
السعر المطلوب
€ 895.000 k.k.
الحالة
beschikbaar
القبول
in overleg
البناء
نوع المنزل
Bovenwoning
نوع المبنى
appartement
فترة البناء
1901
تقييم الطاقة
A
نوع السقف
plat dak
غرف النوم
3
الحمامات
1
المساحات السطحية والحجم
منطقة المعيشة
202 m2
مساحة داخلية أخرى
0 m2
المساحة الخارجية الملحقة بالمبنى
80 m2
الحجم بالأمتار المكعبة
684 m3
المرافق
Airconditioning
Aan water
In centrum
Vrij uitzicht
Aan vaarwater
Baerz & Co Property Brochure

كتيب

فيديوهات

مخططات الطوابق

OZP Makelaars

Vissersdijk Beneden 25
3319 GW Dordrecht

oosterlee@ozp-makelaars.nl
+31 786351753

www.ozp-makelaars.nl

طلب معلومات / مشاهدة

Johan Oosterlee profile image
Johan Oosterlee
Director/owner